Выберите улицу
Применить Сбросить
Выберите район
Применить
Выберите услуги
Выберите метро
Выберите микрорайон

Продается просторная 4-комнатная квартира в центре Минска, ул.Кропоткина 61 (МК "Фарфоровый").

105 просмотров за все время, 5 с мобильных сегодня 0, неделя 10, месяц 46 Добавлено - 30.03.2026
229 900 $  
цена действительна ТОЛЬКО при ссылке на hata.by
Подписаться на изменение цены
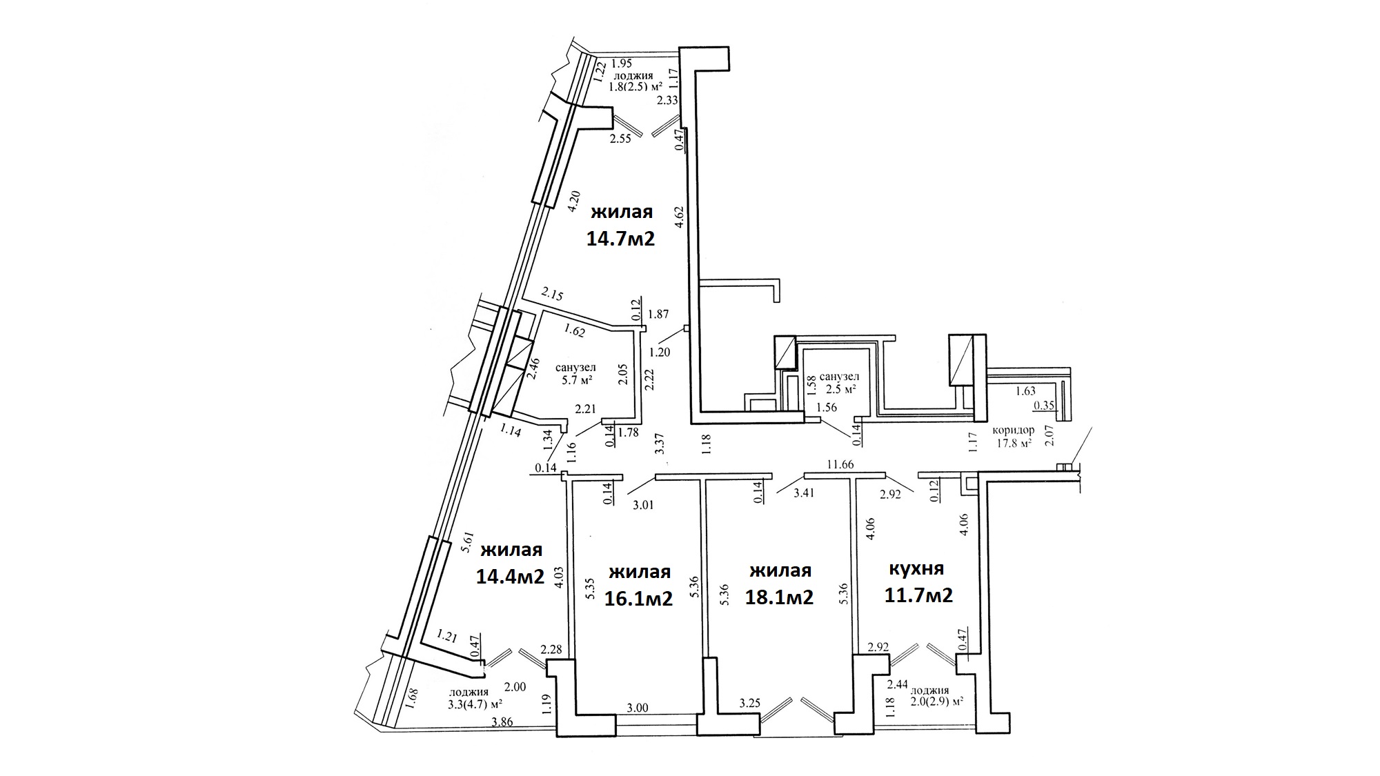
Площадь108.1 м2 (4 комнаты)
Агентство недвижимости Риэлтерский Дом
Почта
rd-odo@mail.ru
Телефон
+375 (44) 552-50-70
+375 (29) 552-50-70
Описание
ВИДЕО О КРАРТИРЕ МОЖНО ПОСМОТРЕТЬ ПО ССЫЛКЕ НИЖЕ

https://www.youtube.com/watch?v=E7wTBbga6kY&list=PLQvLg3zGvuxiM0QiLhDGEtZXDF9-uTY5n&index=1

Продается просторная 4-комнатная квартира в центре Минска, ул.Кропоткина 61 (МК "Фарфоровый").

Современная планировка. Общая площадь составляет 101.0м2 (по СНБ 108.1м2). Жилая площадь 63.3м2 состоит из 4 изолированных комнат, выходящих на разные стороны дома). Просторная кухня 11.7м2. В квартире есть большой коридор, 2 санузла, три застекленные лоджии, в одной из комнат французский балкон, высота потолков 2.84м. Жилое помещение расположено на 2 этаже 15 этажного дома 2023 года постройки. Дом построен по индивидуальному проекту из монолитного каркаса с заполнением газосиликатными блоками.

В квартире установлены двухкамерные стеклопакеты REHAU с энергосберегающими и солнцезащитными стёклами, алюминиевые витражи из профиля ALUTEX. Приточно-вытяжная вентиляция с рекуперацией тепла KOMFOVENT, регулируемые радиаторы отопления. Металлическая входная дверь, межкомнатные двери эко-шпон, натяжные потолки, поклеены обои под покраску. Проложено оптоволокно.

Комфортные условия для проживания. Чистый уютный подъезд выполненный по индивидуальному дизайн-проекту. Респектабельные соседи, креативное ТС. Установлены панорамные турецкие лифты HAS с низким уровнем шума и плавностью хода. Домофоны FACE-ID с распознаванием лиц. Установлена система видеонаблюдения с возможностью контроля парковочных мест и входных дверей через интернет. Многослойные стены обеспечивают хорошую тепло- и шумоизоляцию, перекрытия между этажами толщиной 70 см. Вентилируемы фасады.

Огороженная придомовая территория, закрыта шлагбаумом, свободна от движения транспорта, В доме есть подземный паркинг, из которого можно сразу подняться в квартиры. Во дворе оборудована современная детская площадками. Безбарьерная среда. В жилом комплексе есть детский сад, СПА-центр, фитнес, салон красоты, косметология, стоматология, тренажерный зал, продуктовый магазин.

Развитая инфраструктура: детские сады, школы, поликлиники, магазины в пешей доступности. Жилой комплекс расположен в тихом центре столицы, рядом с популярными у минчан зонами отдыха: Парком Победы, Комсомольским озером с пляжем, набережной реки Свислочь, Сторожевским сквером, спорткомплексом «Динамо», велодорожкой. В пешей доступности Дворец детей и молодежи, Комаровский рынок, театры.

Отличное транспортное сообщение, рядом остановка автобусов и трамваев. В 300 метрах от дома строится станция метро "Переспа" (Зеленая ветка).

Сделайте шаг навстречу своей мечте! Звоните, согласуем удобное время осмотра. Поможем выгодно продать вашу недвижимость для покупки данного объекта. Бесплатно проконсультируем, окажем профессиональную помощь в сложных вопросах с недвижимостью, обеспечим юридическое сопровождение сделки и безопасность взаиморасчетов. Квалифицированные специалисты с большим опытом работы.

ОДО "Риэлтерский Дом", г.Минск, ул.Берестянская д.12 оф.110, 111. УНП 190113134, лицензия на право осуществления деятельности по оказанию юридических услуг (риэлтерские услуги) №02240/55 выдана 06.06.2005 Министерством юстиции Республики Беларусь, договор №9/1 от 19.03.2026

Информация об объекте
Этаж / этажность 2 / 15
Комнат 4
Общая площадь 108.1 м²
Жилая площадь 63.3 м²
Площадь кухни 11.7 м²
Тип дома каркасно-блочный
Год постройки 2023
Планировка улучшеный проект
Ремонт хороший ремонт
Балкон / Лоджия два
Санузел два
Условие сделки чистая продажа
Условие сделки чистая продажа
Собственность ЖК или ЖСК
Дата обновления 08.05.2026
Дата добавления 30.03.2026
Дополнительно
  • рядом метро
  • благоустроенный двор
  • новостройка
  • домофон
  • видео-домофон
  • лифт
  • подземный гараж
  • парковка
  • окна во двор
  • детская площадка
  • рядом зеленая зона отдыха
  • стеклопакеты
  • счетчики воды
  • хороший вид из окна
  • подземная парковка
  • счетчики воды
Квартира на карте
Микрорайон Машерова, Оперный театр, Коммунистическая
г. Минск, ул. Кропоткина д. 61
4 комнаты (этаж 2 / 15)
229 900 $  
ВИДЕО О КРАРТИРЕ МОЖНО ПОСМОТРЕТЬ ПО ССЫЛКЕ НИЖЕ https://www.youtube.com/watch?v=E7wTBbga6kY&list=PLQvLg3zGvuxiM0QiLhDGEtZXDF9-uTY5n&index=1 Продается просторная 4-комнатная квартира в центре Минска, ул.Кропоткина 61 (МК "Фарфоровый"). Современная планировка. Общая площадь составляет 101.0м2 (по СНБ 108.1м2). Жилая площадь 63.3м2 состоит из 4 изолированных...
375 ... показать телефон Риэлтерский Дом ОДО
г. Минск, ул. Чорного д. 25
3 комнаты (этаж 3 / 9)
296 900 $  
Продается просторная трехкомнатная квартира (евротрешка) с дизайнерским ремонтом по Кузьмы Чорного,25.  Современный каркасно-блочный дом (2014 г.п.). Это объект для тех, кто ищет бескомпромиссное качество, тишину центра и интеллектуальный комфорт. ГЛАВНЫЕ ПРЕИМУЩЕСТВА И ТЕХНОЛОГИИ Инженерия и «Умный дом»: Квартира полностью автоматизирована. Мультисплит-система Mitsubishi Electric в каждой...
375 ... показать телефон Риэлтерский Дом ОДО
г. Минск, ул. Мясникова д. 78
2 комнаты (этаж 4 / 4)
149 300 $  
Продается статусная 2-комнатная квартира в историческом сердце Минска (Мясникова, 78). Уникальное предложение в монументальной сталинке 1952 года (арх. В. Король). Квартира для тех, кто ищет тишину, историю и безупречный авторский дизайн. ГЛАВНЫЕ ПРЕИМУЩЕСТВА: - Тихий оазис. Все окна выходят в зеленый благоустроенный двор. Полная тишина при жизни в самом центре столицы. - Юридическая...
375 ... показать телефон Риэлтерский Дом ОДО
Минская обл. г. Дзержинск, ул. Пушкина д. 5
1 комната (этаж 3 / 5)
59 900 $  
Как вам идея жить в центре г.Держинска? Продается 1-комнатная квартира 42.4м2 по ул.Пушкина 5. 3 этаж 5 этажного кирпичного дома (2009 г.). В квартире очень тепло зимой, летом она дарит приятную прохладу. Удобная планировка: просторная комната 18.7 м2 с альковом, большая кухня 9.1м2 с выходом на лоджию 2.1 м2, раздельный санузел. Высота потолков 2.5м. Квартира готова к проживанию. На окнах...
375 ... показать телефон Риэлтерский Дом ОДО
Могилевская обл. Осиповичский р-н г. Осиповичи, ул. Рабоче-крестьянская д. 5
1 комната (этаж 3 / 5)
28 700 $  
Продается 1-комнатная квартира, г.Осиповичи, ул.Рабоче-Крестьянская д.5 Квартира расположена на комфортном 3-ем этаже пятиэтажного панельного дома (1989 г.), в 2024 году отремонтировали подъезд. Площадь общая 34.32м2, площадь жилой комнаты 17.1м2, большая кухня 8.43 м2, высота потолков 2.5м, санузел раздельный, просторная лоджия застеклена раздвижной алюминиевой рамой. Хорошее состояние....
375 ... показать телефон Риэлтерский Дом ОДО
г. Минск, ул. Ауэзова д. 12
3 комнаты (этаж 5 / 5)
105 000 $  
ВИДЕО О КВАРТИРЕ МОЖНО ПОСМОТРЕТЬ ПО ССЫЛКЕ НИЖЕ https://www.youtube.com/watch?v=ij7LIDkBuPk&list=PLQvLg3zGvuxiM0QiLhDGEtZXDF9-uTY5n&index=14 Продается 3-комнатная квартира, г.Минск, ул.Ауэзова, 12 (м-н Чижовка). Общая площадь квартиры составляет 61.4м2 (по СНБ 62.2м2). Жилая 45.9м2 состоит из трёх изолированных комнат, выходящих на разные стороны дома. Уютная кухня 6.2м2....
375 ... показать телефон Риэлтерский Дом ОДО
г. Минск, ул. Беды Леонида д. 36
3 комнаты (этаж 6 / 19)
279 000 $  
Продается прекрасная 3-х комнатная квартира г.Минск, ул.Беды д.36. Видео о квартире можно посмотреть по ссылке ниже https://www.youtube.com/watch?v=9Kh8fcyYgTs&list=PLQvLg3zGvuxiM0QiLhDGEtZXDF9-uTY5n Жилое помещение расположено на 6 этаже 19 этажного каркасно-блочного дома 2016 года постройки. Общая площадь 90,4м2 (по СНБ 96.6м2). Жилая 69.4м2 состоит просторной гостиной 38.9м2 с...
375 ... показать телефон Риэлтерский Дом ОДО
Зарегистрируйтесь через ваш аккаунт в соцсетях:
или через нашу форму:
Войдите через ваш аккаунт в соцсетях:
или введите логин и пароль:
Регистрация
Еще можно просмотреть номера телефона.

Для снятия ограничения нужна всего лишь регистрация.

Так мы защищаем информацию клиентов от роботов

Выбери квартиру за 2.99 BYN

  • Мы собираем и обрабатываем для вас информацию с 10 сайтов
  • Звоним по всем объявлениям со всего интернета
  • Задаем уточняющие вопросы
  • Получаем дополнительную информацию

Все это, чтобы вам было проще сделать выбор

Стоимость к этой информации - от 2.99 рублей в месяц

Выбрать тариф
Получите больше просмотров Вашего объявления

Получите х10 показов! Закрепите объявление в ТОПе и выделите его цветом.

Стоимость услуги - 15 рублей за 30 дней или 22 рубля за 60 дней.

Как это работает.

Ваше объявление будет выделено цветом и будет закреплено в результатах поиска под спецпозициями.

Для оплаты через ЕРИП:

Перейдите в раздел "Интернет-магазины/сервисы" -> "H" -> "Hata.by" -> "Оплата по номеру заказа"

Введите один номер заказа - либо , и проведите оплату.

В течение 30 минут мы обработаем оплату в автоматическом режиме и реклама начнет работать.

Получите больше просмотров Вашего объявления

Закрепите объявление в начале первой страницы каталога. Объявление будет находится над простыми объявлениями. Стоимость услуги - 50р. за 2 недели.

Как это работает.

Объявление закрепляется под спецпозициями на первой странице каталога. Бесплатные объявления находятся внизу результатов поиска. Таким образом, посетители сайта увидят ваше объявление в первую очередь.

Для оплаты через ЕРИП:

Перейдите в раздел "Интернет-магазины/сервисы" -> "H" -> "Hata.by" -> "Оплата по номеру заказа"

Введите номер заказа - 0 и проведите оплату.

В течение 30 минут мы обработаем оплату в автоматическом режиме и реклама начнет работать.

Забронировать объект
Ваше имя:
Заезд:
Дата заезда:
Время заезда:
Количество гостей:
Отезд:
Дата отезда:
Время отезда:
Ваш вопрос владельцу объявления:
Больше не выводить для меня
Я хочу сообщить, что данное объявление более не актуально.
Удаление объявления
У Вас есть доступ к номеру +375445525070 куда мы можем прислать код для подтверждения?
Изменить объявление
У Вас есть доступ к номеру +375445525070 куда мы можем прислать код для подтверждения?
Подписаться на изменение цены объекта
Введите ваш email:
Распечатать объявление
Заказать фотографа

Профессиональные фотографии интерьера

Для того что бы отразить все преимущества вашего объекта недвижимости и привлечь больше внимания от потенциальных клиентов, вы можете заказать услуги профессионального фотографа у нас.

Готовые фотографии вы получаете на электронную почту в течении 2-х рабочих дней.

Снимки делаются на широкоугольный объектив.

Заказы принимаются только по городу Минску

Вид объекта/Цена

1-комнатная квартира 60 руб.

2-комнатная квартира 80 руб.

3-комнатная квартира 100 руб.

Другое - Договорная

Для заказа услуг фотографа и консультации свяжитесь с нашими менеджерами по тел.: +375-44-550-45-45

Отображение на карте
Сохраните поиск
Введите Ваш email:
Период рассылки:
Добавить в избранное
Добавить объект в:
Чтобы добавить объект в список, создайте список