Выберите улицу
Применить Сбросить
Выберите район
Применить
Выберите услуги

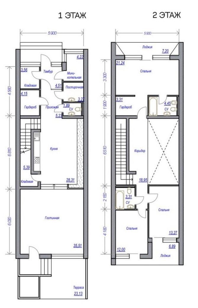
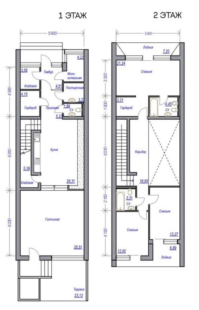
Стильный таунхаус в ЖК «Белые Росы». В современном районе Девятовка-7

5 просмотров за все время, 2 с мобильных сегодня 0, неделя 5, месяц 5 Добавлено - 05.11.2025
179 500 $  
цена действительна ТОЛЬКО при ссылке на hata.by
Подписаться на изменение цены
Площадь185.8 м2
Агентство недвижимости АН Этажи Юнайтед
Почта
etagiyunajted@gmail.com
Телефон
+375 (44) 576-00-24
Описание
При строительстве использовались высококачественные материалы: монолитный каркас, экологичные керамзитобетонные блоки с высокой шумоизоляцией, фальцевая кровля, клинкерная плитка.

Все это придает дому элегантность и изысканность.

Светлые и просторные помещения с панорамным оконным остеклением из профиля SalamanderBluEvolution и энергосберегающими стеклопакетами, выполненные в современном стиле. Большая кухня-гостиная со вторым светом создают атмосферу уюта и комфорта.

В доме все центральные сети: газоснабжение, электроснабжение, водоснабжение, канализация. На территории предусмотрена система видеонаблюдения. Также в доме имеется: индивидуальная мини-котельная, постирочная, теплые полы в комбинации с конвекторным отоплением для Вашего домашнего тепла и комфорта.

О квартале:

Закрытая территория с ландшафтным дизайном, идеально подходящая для отдыха на свежем воздухе. Каждый таунхаус имеет собственный участок 0,2 сотки.

Подъезд к домам асфальтированный.

В шаговой доступности: гипермаркеты, детские сады, школы (с бассейном), магазины, аптеки, банки, поликлиника, почтовое отделение, парк, стадион, и многое другое. На автомобиле 5 минут до центра города, ж/д и автовокзала.

Звоните! Покажем в удобное для вас время.

Покупая этот объект недвижимости, вы будете уверены в безопасности и надежности сделки.

Поможем продать вашу недвижимость для покупки этой квартиры. Возможна покупка в кредит и рассрочку!

ООО «ЭТАЖИ юнайтед»

УНП: 193673318

Договор 2367/1 от 03.11.2025

Лицензия на оказание риэлтерских услуг №02240/460 МЮ РБ от 03.04.2023

Информация об объекте
Общая площадь 185.8 м²
Жилая площадь 118.4 м²
Год постройки 2025
Ремонт строительная отделка
Балкон / Лоджия лоджия
Санузел два
Дата обновления 06.11.2025
Дата добавления 05.11.2025
Квартира на карте
Район
г. Минск, ул. Жореса Алферова д. 2
134 869 $  
Рассрочка! Кредит! Скидки! Современный проект! Престиж и стиль! Крупнейший застройщик в Беларуси! Минск Мир!!! В комплексе предусмотрены: школы, детские сады, поликлиники, музыкальные школы, детские площадки, кинотеатр, развлекательный центр, парикмахерские, стоматология, спортивная арена, велодорожки по всему комплексу, теннисные площадки, волейбольные и баскетбольные площадки. Дома с...
375 ... показать телефон Светлана Скурат
г. Минск, ул. Братская д. 17
118 000 $  
Квартира с дизайнерским ремонтом в доме «Гавайи»! Площадь квартиры по СНБ 37,8 м2. В квартире выполнен современный ремонт из качественных материалов. Оборудованная кухня-гостиная со встроенной мебелью и техникой. Изолированная уютная спальня. Совмещенный сан. узел с качественной современной сантехникой. Полы – ламинат и плитка. Входная металлическая дверь. Потолки 2,74 м. Квартира на 17 этаже...
г. Минск, ул. Леонида Щемелёва д. 18
121 660 $  
Работаем напрямую от застройщика по партнерской программе (без комиссий)!!! Цены и наличие на 06.11.2025г. Продадим Вашу квартиру для покупки этой! Стать владельцем квартиры в Minsk World можно: 1. За собственные средства 2. Кредит от 6% 3. В рассрочку без справок и поручителей (только паспорт!) Все дома в комплексе каркасно-блочные. Скоростные бесшумные лифты импортного производства. Почти...
г. Минск, ул. Минина Кузьмы д. 8
91 208 $  
ЖК Дубравинский. Напрямую от застройщика. Кредит 13,75% на 20 лет. Сдача дома – февраль 2027 год (планируется конец 2026года). Наличие квартиры и цена актуальны на 06.11.2025г. Приобрести квартиру можно: - 100 % оплаты собственными средствами - в кредит - в рассрочку от застройщика Конструктивная схема здания – монолитный каркас. Наружные стены выполнены из газосиликатного блока с утеплением...
г. Минск, ул. Минина Кузьмы д. 8
115 770 $  
ЖК «Дубравинский» - Дом №3 Работаем напрямую от застройщика по партнерской программе!!! Звоните,подберем выгодный вариант кредитования или рассрочки! Срок сдачи дома – 2027 год. · Конструктивная схема здания – монолитный каркас + силикатные блоки · Этажность – 21; · 3 лифта; Черновая отделка; Входная дверь, из сантехпосуды – унитаз; Установка счетчиков воды и электроэнергии; Стеклопакеты ПВХ...
г. Минск, пр. Мира д. 16
102 244 $  
Наличные! Кредит! Рассрочка! 1. Услуги по подбору новостроек - бесплатные!!! 2. Напрямую от застройщика, Вы покупаете по цене застройщика и заключаете договор только с застройщиком! 3. Выполняем функцию отдела продаж застройщика Планировки и цены актуальны на 06.11.2025 ООО "Этажи юнайтед" УНП: 193673318 Договор №52/1 от 05.01.24 по 03.01.2026 Лицензия на оказание риэлтерских услуг...
г. Минск, ул. Жореса Алферова д. 2
125 191 $  
Рассрочка! Кредит! Скидки! Современный проект! Престиж и стиль! Крупнейший застройщик в Беларуси! Минск Мир!!! В комплексе предусмотрены: школы, детские сады, поликлиники, музыкальные школы, детские площадки, кинотеатр, развлекательный центр, парикмахерские, стоматология, спортивная арена, велодорожки по всему комплексу, теннисные площадки, волейбольные и баскетбольные площадки. Дома с...
375 ... показать телефон Светлана Скурат
г. Минск, ул. Жореса Алферова д. 2
92 783 $  
Работаем напрямую от застройщика по партнерской программе! Выгодное предложение!!! Звоните за более подробной информацией! Стоимость актуальна на дату размещения 05.11.2025. Подробную актуальную информацию уточняйте по телефону. Успейте купить квартиру в доме «Валлета» в жилом квартале «Средиземноморский». Возможность бесплатно забронировать квартиру на месяц при продаже своей квартиры через АН...
г. Минск, ул. Леонида Щемелёва д. 16
112 115 $  
Работаем напрямую от застройщика по партнерской программе! Выгодное предложение!!! Звоните за более подробной информацией! Стоимость актуальна на дату размещения 05.11.2025. Подробную актуальную информацию уточняйте по телефону. Успейте купить квартиру в доме «Панама-Сити» в жилом квартале «Южная Америка». Возможность бесплатно забронировать квартиру на месяц при продаже своей квартиры через АН...
г. Минск, ул. Брилевская д. 29
117 754 $  
Работаем напрямую от застройщика по партнерской программе (без комиссий)!!! Цены и наличие на 05.11.2025г. Продадим Вашу квартиру для покупки этой! Стать владельцем квартиры в Minsk World можно: 1. За собственные средства 2. Кредит от 6%. Кредит 13,75% от Беларусбанка. 3. В рассрочку без справок и поручителей (только паспорт!) Все дома в комплексе каркасно-блочные. Скоростные бесшумные лифты...
г. Минск, ул. Леонида Щемелёва д. 16
112 115 $  
Работаем напрямую от застройщика по партнерской программе (без комиссий)!!! Выгодное предложение!!! Звоните за более подробной информацией! Стоимость актуальна на дату размещения 06.11.2025. Подробную актуальную информацию уточняйте по телефону. Успейте купить квартиру в доме «Панама-Сити» в жилом квартале «Южная Америка». Возможность забронировать квартиру на месяц при продаже своей квартиры...
375 ... показать телефон Спиридонов Дмитрий
Зарегистрируйтесь через ваш аккаунт в соцсетях:
или через нашу форму:
Войдите через ваш аккаунт в соцсетях:
или введите логин и пароль:
Регистрация
Еще можно просмотреть номера телефона.

Для снятия ограничения нужна всего лишь регистрация.

Так мы защищаем информацию клиентов от роботов

Выбери квартиру за 2.99 BYN

  • Мы собираем и обрабатываем для вас информацию с 10 сайтов
  • Звоним по всем объявлениям со всего интернета
  • Задаем уточняющие вопросы
  • Получаем дополнительную информацию

Все это, чтобы вам было проще сделать выбор

Стоимость к этой информации - от 2.99 рублей в месяц

Выбрать тариф
Получите больше просмотров Вашего объявления

Получите х10 показов! Закрепите объявление в ТОПе и выделите его цветом.

Стоимость услуги - 15 рублей за 30 дней или 22 рубля за 60 дней.

Как это работает.

Ваше объявление будет выделено цветом и будет закреплено в результатах поиска под спецпозициями.

Для оплаты через ЕРИП:

Перейдите в раздел "Интернет-магазины/сервисы" -> "H" -> "Hata.by" -> "Оплата по номеру заказа"

Введите один номер заказа - либо , и проведите оплату.

В течение 30 минут мы обработаем оплату в автоматическом режиме и реклама начнет работать.

Получите больше просмотров Вашего объявления

Закрепите объявление в начале первой страницы каталога. Объявление будет находится над простыми объявлениями. Стоимость услуги - 50р. за 2 недели.

Как это работает.

Объявление закрепляется под спецпозициями на первой странице каталога. Бесплатные объявления находятся внизу результатов поиска. Таким образом, посетители сайта увидят ваше объявление в первую очередь.

Для оплаты через ЕРИП:

Перейдите в раздел "Интернет-магазины/сервисы" -> "H" -> "Hata.by" -> "Оплата по номеру заказа"

Введите номер заказа - 0 и проведите оплату.

В течение 30 минут мы обработаем оплату в автоматическом режиме и реклама начнет работать.

Забронировать объект
Ваше имя:
Заезд:
Дата заезда:
Время заезда:
Количество гостей:
Отезд:
Дата отезда:
Время отезда:
Ваш вопрос владельцу объявления:
Больше не выводить для меня
Я хочу сообщить, что данное объявление более не актуально.
Удаление объявления
У Вас есть доступ к номеру +375445760024 куда мы можем прислать код для подтверждения?
Изменить объявление
У Вас есть доступ к номеру +375445760024 куда мы можем прислать код для подтверждения?
Подписаться на изменение цены объекта
Введите ваш email:
Распечатать объявление
Заказать фотографа

Профессиональные фотографии интерьера

Для того что бы отразить все преимущества вашего объекта недвижимости и привлечь больше внимания от потенциальных клиентов, вы можете заказать услуги профессионального фотографа у нас.

Готовые фотографии вы получаете на электронную почту в течении 2-х рабочих дней.

Снимки делаются на широкоугольный объектив.

Заказы принимаются только по городу Минску

Вид объекта/Цена

1-комнатная квартира 60 руб.

2-комнатная квартира 80 руб.

3-комнатная квартира 100 руб.

Другое - Договорная

Для заказа услуг фотографа и консультации свяжитесь с нашими менеджерами по тел.: +375-44-550-45-45

Отображение на карте
Сохраните поиск
Введите Ваш email:
Период рассылки:
Добавить в избранное
Добавить объект в:
Чтобы добавить объект в список, создайте список