Выберите услуги

Современный коттедж в 1км от Молодечно по хорошей цене

748 просмотров за все время, 205 с мобильных сегодня 2, неделя 3, месяц 47 Добавлено - 01.08.2024
159 000 $  
цена действительна ТОЛЬКО при ссылке на hata.by
Подписаться на изменение цены
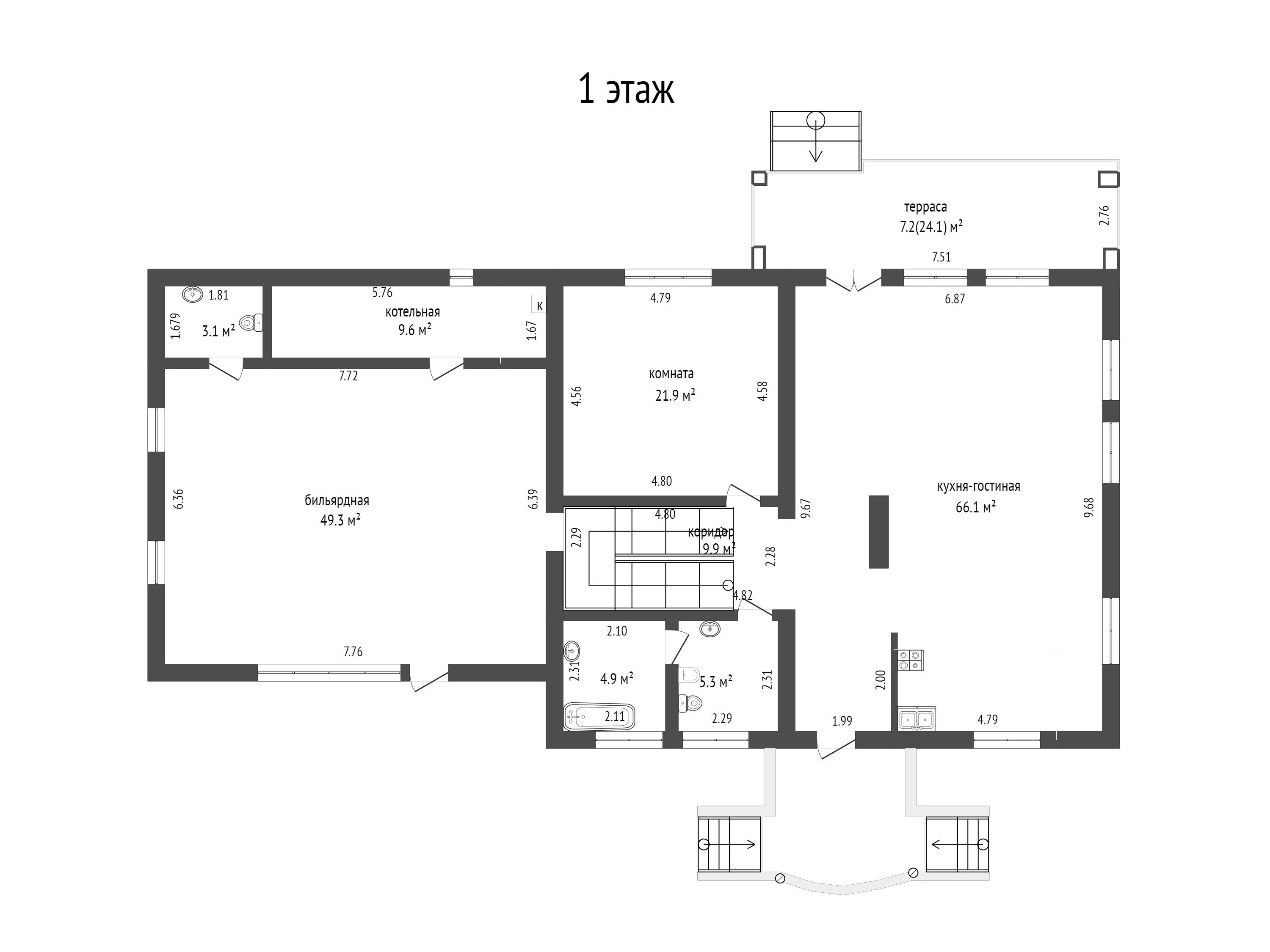
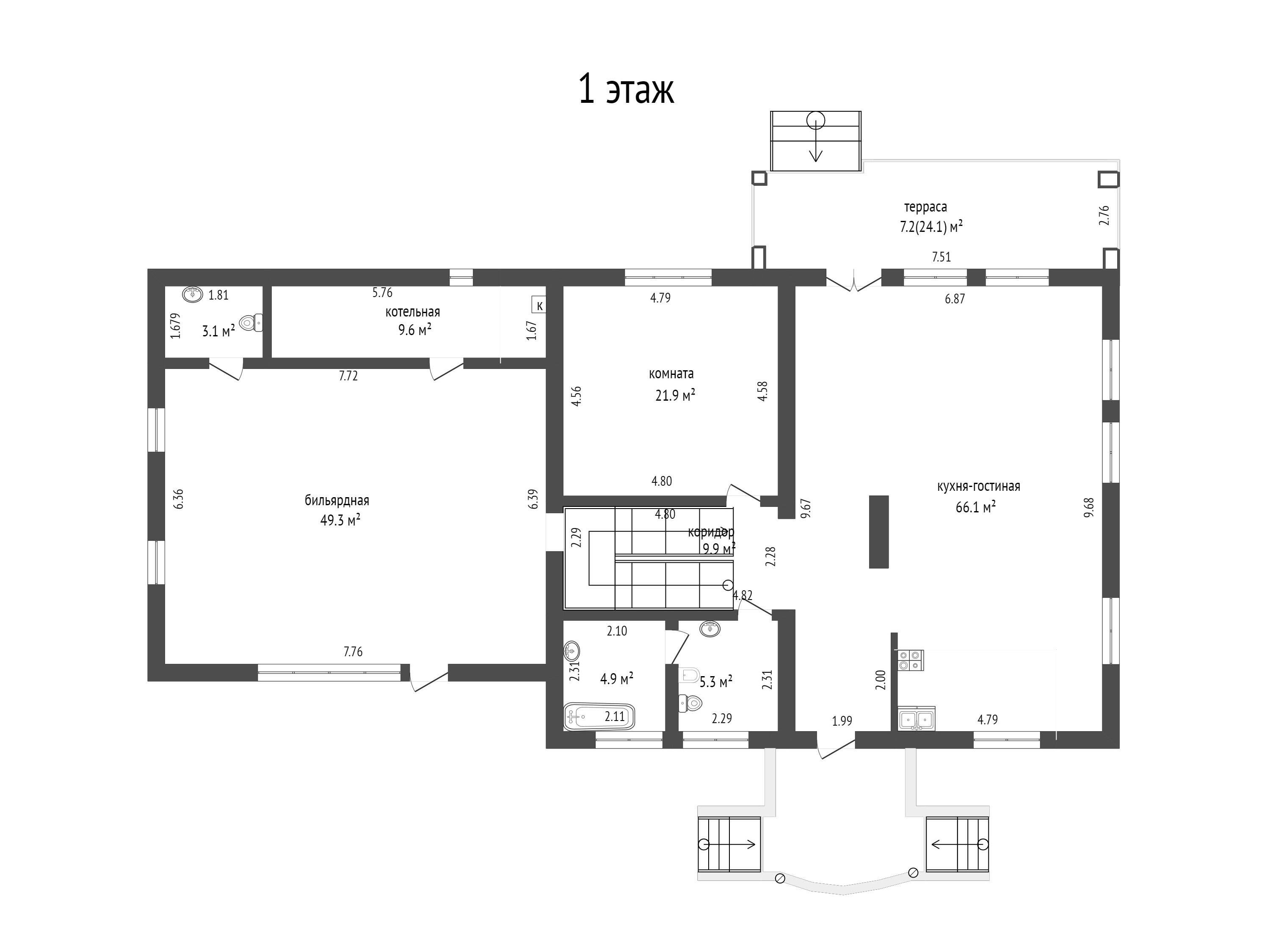
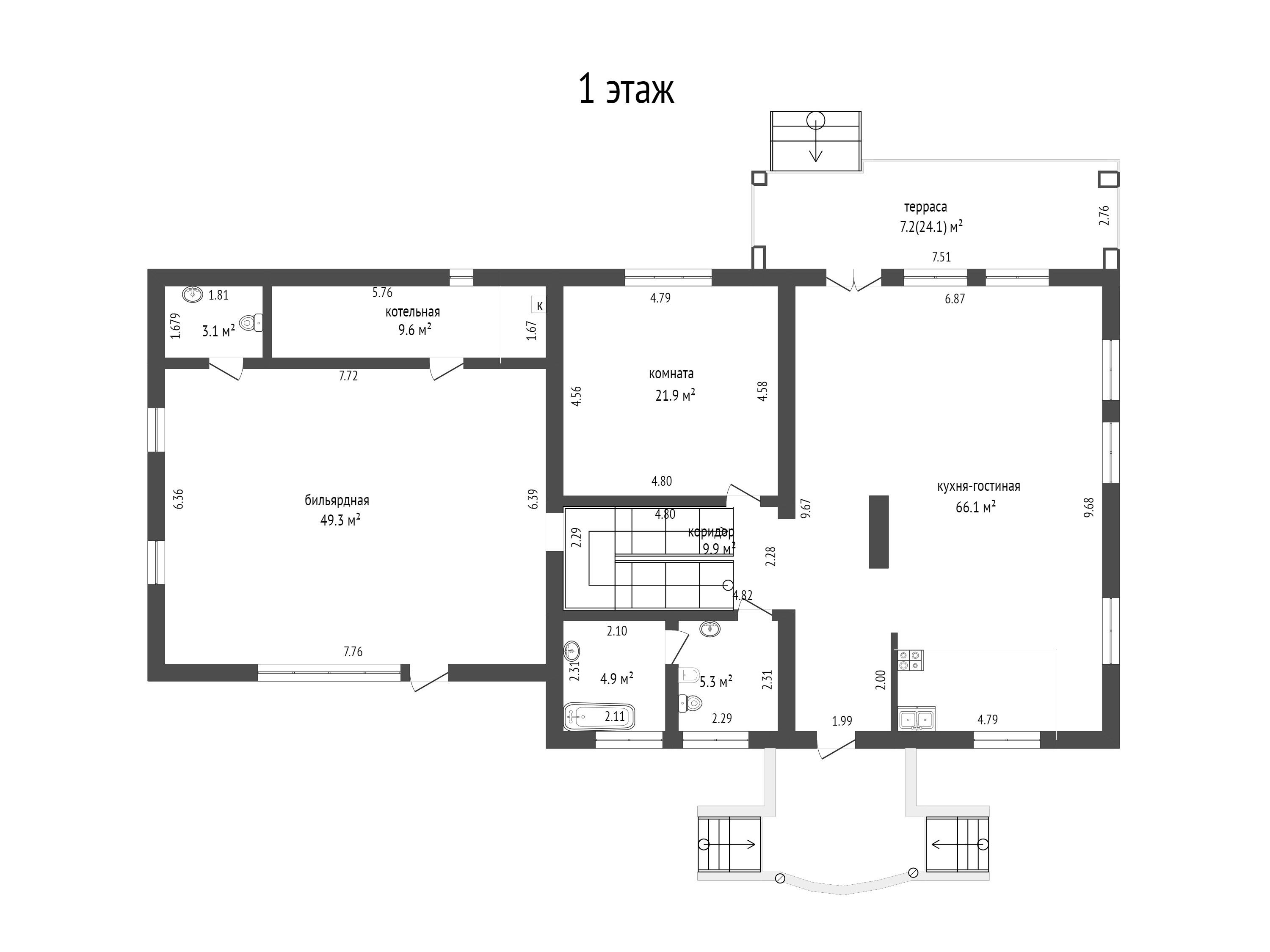
Площадь288.5 м2
Агентство недвижимости АН Этажи Юнайтед
Почта
reklama@minsk.etagi.com
Телефон
+375 (29) 388-02-82
Описание
Современный 2 уровневый коттедж всего в 1км от Молодечно в высокой степени готовности по хорошей цене.

Дом 2023года. Расположен на хорошем участке правильной формы, достаточной площадью 24 сотки, в частной собственности. Надежный фундамент под дом из железобетона, стены - из керамзитобетонного блока, а крыша - из металлочерепицы. Общая площадь дома составляет 288,5 квадратных метра.

Электричество 220/380В, вода своя скважина, ГАЗ, оптоволокно (высокоскоростной интернет) введены в дом.

ИТОГО вы обретаете качественный современный коттедж для загородной жизни в непосредственной близости от г.Молодечно. Возведенный по максимально продуманному до мелочей проекту с большими окнами, террасой. На ровным участком правильной формы в 24 сотки. Расположенном на конечной улице коттеджной застройки.Приглашаем для приобретения.

ООО «ЭТАЖИ юнайтед»УНП: 193673318Договор 2288/1 от 23.10.2025Лицензия на оказание риэлтерских услуг №02240/460 МЮ РБ от 03.04.2023

Информация об объекте
Расстояние от МКАД 56.6 км
Общая площадь 288.5 м²
Жилая площадь 214 м²
Площадь кухни 66 м²
Год постройки 2023
Материал стен блочный
Отопление паровое
Свет есть
Вода рядом водопровод
Газ нет
Дата обновления 20.04.2026
Дата добавления 01.08.2024
Квартира на карте
Район
Минская обл. п. Колодищи д. 10
160 000 $  
Уникальное предложение для ценителей комфорта и экологии! Продаётся участок ПРЕМИУМ-КЛАССА с сосновым лесом в живописном и экологически чистом районе возле Республиканского Биологического Заказника Глебковка, расположенного в пригороде Минска, всего в 8 км от МКАД. Зeмельный учacтoк плoщaдью 15 coток в самом экологически благоприятном месте аг. Колодищи. Частная форма собственности. Целевое...
375 ... показать телефон Специалист по недвижимости
Минская обл. г. Жодино, ул. Солнечная
105 000 $  
Продается дом с комфортной планировкой в городе Жодино. Расположен в обжитом коттеджном районе, откуда всего 6 км до центра Жодино и 50 км до Минска, а также 2 км до р. Плиса, где оборудована зона для отдыха. Хорошее транспортное сообщение, 15 минут пешком до остановки общественного транспорта, где курсируют несколько городских автобусов. Дом 2004 года постройки с цокольным этажом и мансардой,...
375 ... показать телефон Специалист по недвижимости
Минская обл. д. Энергетик-5
8 000 $  
В продаже дача в садовом товариществе "Энергетик-5", Руденского сельсовета. Площадь земельного участка - 5.6 соток. На участке расположен двухэтажный садовый домик, площадью 27 метров квадратных. Двускатная крыша, стены и перегородки - дерево. Есть подвал. Две теплицы, металл и стекло, переживут любой ураган. Дровник, железный сарай, туалет на улице. Электричество. Вода сезонная....
Минская обл. д. Узборье
105 000 $  
Прекрасный дом для круглогодичного проживания —в котором хочется жить в удовольствие! Расположение: всего 15 км от МКАД, Логойское направление, Минский район, СТ "Узборье", напротив горнолыжного курорта "Раубичи". Основные характеристики: - Площадь участка: 6,33 сотки (частная собственность). - Площадь дома: 107,6 кв.м., полностью готов к заселению. - Этажность: Три...
Минская обл. д. Черница
69 900 $  
Отличный дом в окружении лесного массива — всего 17 км от МКАД! Ищете идеальное место для загородного отдыха или постоянного проживания на лоне природы, вблизи Минска? Этот просторный дом общей площадью около 150 м2 с участком 13.7 м2 в 17 км от Минска — именно то, что Вам нужно! Преимущества дома: · Просторный трехуровневый дом из кирпича, который держит тепло зимой, и прохладу летом! ·...
375 ... показать телефон Специалист по недвижимости
Минская обл. д. Хатежино, ул. Цветочная
395 000 $  
Продаётся энергоэффективный коттедж с баней и гаражом в Хатежино (Минский район) Коротко о главном:Просторный дом 180 м2 с продуманной планировкой, современной техникой, баней и вместительным гаражом. Подходит для постоянного проживания, сдачи в аренду или под офис / бизнес. Локация: Хатежино (отличная транспортная доступность Минска) Характеристики дома и участка Параметр Значение Общая...
Минская обл. д. Юхновка, ул. Полевая д. 3
175 000 $  
Продаётся отличный дом с Центральными коммуникациями, с большим участком 16,57 сот. (ПНВ) в д. Юхновка, (14км от МКАД). Дом расположен в отличной локации – дорога до Минска занимает считаные минуты. Хорошее транспортное сообщение – остановка общ. транспорта в пешей доступности. Приличные соседи. Рядом есть вся необходимая инфраструктура для комфортного проживания. О доме: - Год постройки -...
Минская обл. д. Жаворонок
13 000 $  
Продается большой двухэтажный блочно-кирпичный дом в 40 км от Минска в СТ Жаворонок. Дом стоит на 6 сотках земли. На участке расположены два кирпичных строения. В одном баня, древотня, туалет. В другом мастерская, хоз.блок и помещение для инвентаря. В доме на первом этаже пристроенная веранда, две большие жилые комнаты, большая кухня-гостинная и прихожая с выходом на второй этаж. На втором...
375 ... показать телефон Специалист по недвижимости
Минская обл. д. Энергостроитель
11 500 $  
Продается жилой двухэтажный дом в СТ Энергостроитель Пуховичского напровления. Дом стоит на участке 12 соток. В доме на первом этаже большая жилая комната, кухня, прихожая. На втором этаже одна большая комната. В доме сложена новая печь. На участке есть парник и два складских помещения. Земля обработана. До станции электрички Блужа 5-7 минут ходьбы. - Чистая продажа. Возможна покупка в кредит....
375 ... показать телефон Специалист по недвижимости
Минская обл. д. Мостище
35 000 $  
Продается крепкий бревенчатый дом,в экологически чистом месте. в д.Мостище, Заболоцкий с-с. Смолевичский район. 36км езды от Минска . Район Кургана Славы. Удобное транспортное сообщение Рядом МКАД-2. Недалеко трасса М1. Дом расположен на участке площадью 25 соток. В доме проведён свет и вода, установлены стеклопакеты. Населённый пункт газифицирован. По улице проходит газ. Вокруг шикарные...
375 ... показать телефон Специалист по недвижимости
Минская обл. д. Свислочский Урожай
5 500 $  
Участок 12,5 соток в частной собственности в 30 км от МКАД!Рядом лесной массив и озеро.В 3 км от СТ находится городской посёлок Свислочь с отлично развитой инфраструктурой. Рядом агрогородок Дукора с интересными местами.Участок расположен в живописной местности, что идеально для перезагрузки и заземления вне шумного города. На 12,5 сотках вы сможете разместить жилой дом, сад, огород и зону...
Зарегистрируйтесь через ваш аккаунт в соцсетях:
или через нашу форму:
Войдите через ваш аккаунт в соцсетях:
или введите логин и пароль:
Регистрация
Еще можно просмотреть номера телефона.

Для снятия ограничения нужна всего лишь регистрация.

Так мы защищаем информацию клиентов от роботов

Выбери квартиру за 2.99 BYN

  • Мы собираем и обрабатываем для вас информацию с 10 сайтов
  • Звоним по всем объявлениям со всего интернета
  • Задаем уточняющие вопросы
  • Получаем дополнительную информацию

Все это, чтобы вам было проще сделать выбор

Стоимость к этой информации - от 2.99 рублей в месяц

Выбрать тариф
Получите больше просмотров Вашего объявления

Получите х10 показов! Закрепите объявление в ТОПе и выделите его цветом.

Стоимость услуги - 15 рублей за 30 дней или 22 рубля за 60 дней.

Как это работает.

Ваше объявление будет выделено цветом и будет закреплено в результатах поиска под спецпозициями.

Для оплаты через ЕРИП:

Перейдите в раздел "Интернет-магазины/сервисы" -> "H" -> "Hata.by" -> "Оплата по номеру заказа"

Введите один номер заказа - либо , и проведите оплату.

В течение 30 минут мы обработаем оплату в автоматическом режиме и реклама начнет работать.

Получите больше просмотров Вашего объявления

Закрепите объявление в начале первой страницы каталога. Объявление будет находится над простыми объявлениями. Стоимость услуги - 50р. за 2 недели.

Как это работает.

Объявление закрепляется под спецпозициями на первой странице каталога. Бесплатные объявления находятся внизу результатов поиска. Таким образом, посетители сайта увидят ваше объявление в первую очередь.

Для оплаты через ЕРИП:

Перейдите в раздел "Интернет-магазины/сервисы" -> "H" -> "Hata.by" -> "Оплата по номеру заказа"

Введите номер заказа - 0 и проведите оплату.

В течение 30 минут мы обработаем оплату в автоматическом режиме и реклама начнет работать.

Забронировать объект
Ваше имя:
Заезд:
Дата заезда:
Время заезда:
Количество гостей:
Отезд:
Дата отезда:
Время отезда:
Ваш вопрос владельцу объявления:
Больше не выводить для меня
Я хочу сообщить, что данное объявление более не актуально.
Удаление объявления
У Вас есть доступ к номеру +375293880282 куда мы можем прислать код для подтверждения?
Изменить объявление
У Вас есть доступ к номеру +375293880282 куда мы можем прислать код для подтверждения?
Подписаться на изменение цены объекта
Введите ваш email:
Распечатать объявление
Заказать фотографа

Профессиональные фотографии интерьера

Для того что бы отразить все преимущества вашего объекта недвижимости и привлечь больше внимания от потенциальных клиентов, вы можете заказать услуги профессионального фотографа у нас.

Готовые фотографии вы получаете на электронную почту в течении 2-х рабочих дней.

Снимки делаются на широкоугольный объектив.

Заказы принимаются только по городу Минску

Вид объекта/Цена

1-комнатная квартира 60 руб.

2-комнатная квартира 80 руб.

3-комнатная квартира 100 руб.

Другое - Договорная

Для заказа услуг фотографа и консультации свяжитесь с нашими менеджерами по тел.: +375-44-550-45-45

Отображение на карте
Сохраните поиск
Введите Ваш email:
Период рассылки:
Добавить в избранное
Добавить объект в:
Чтобы добавить объект в список, создайте список