Выберите район
Применить
Выберите услуги
Выберите метро
Выберите микрорайон

Уютный дом с дизайнерским ремонтом и атмосферным «итальянским двориком» практически в центре Минска!

21 просмотров за все время, 3 с мобильных сегодня 8, неделя 21, месяц 21 Добавлено - 22.04.2026
148 000 $  
цена действительна ТОЛЬКО при ссылке на hata.by
Подписаться на изменение цены
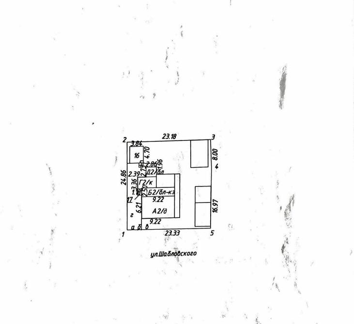
Площадь101.9 м2
Агентство недвижимости АН Этажи Юнайтед
Почта
etagiyunajted@gmail.com
Телефон
+375 (44) 508-97-83
Описание
Продается двухуровневая квартира (полдома) с собственным участком – идеальный вариант для тех, кто хочет жить в формате частного дома, не уезжая из города. Объект расположен в зоне сохранения усадебной застройки, что гарантирует комфортную, малонаселенную и спокойную среду.

Дом полностью реконструирован в 2013 году: новые стены, фундамент, перекрытия, крыша и все коммуникации – фактически современное жилье с надежной базой.

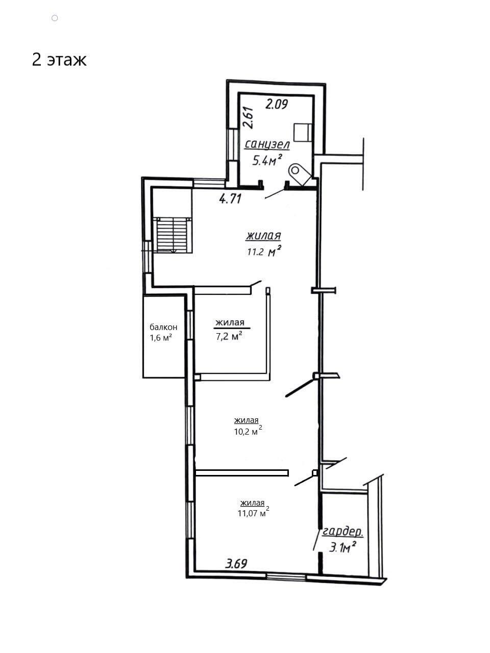
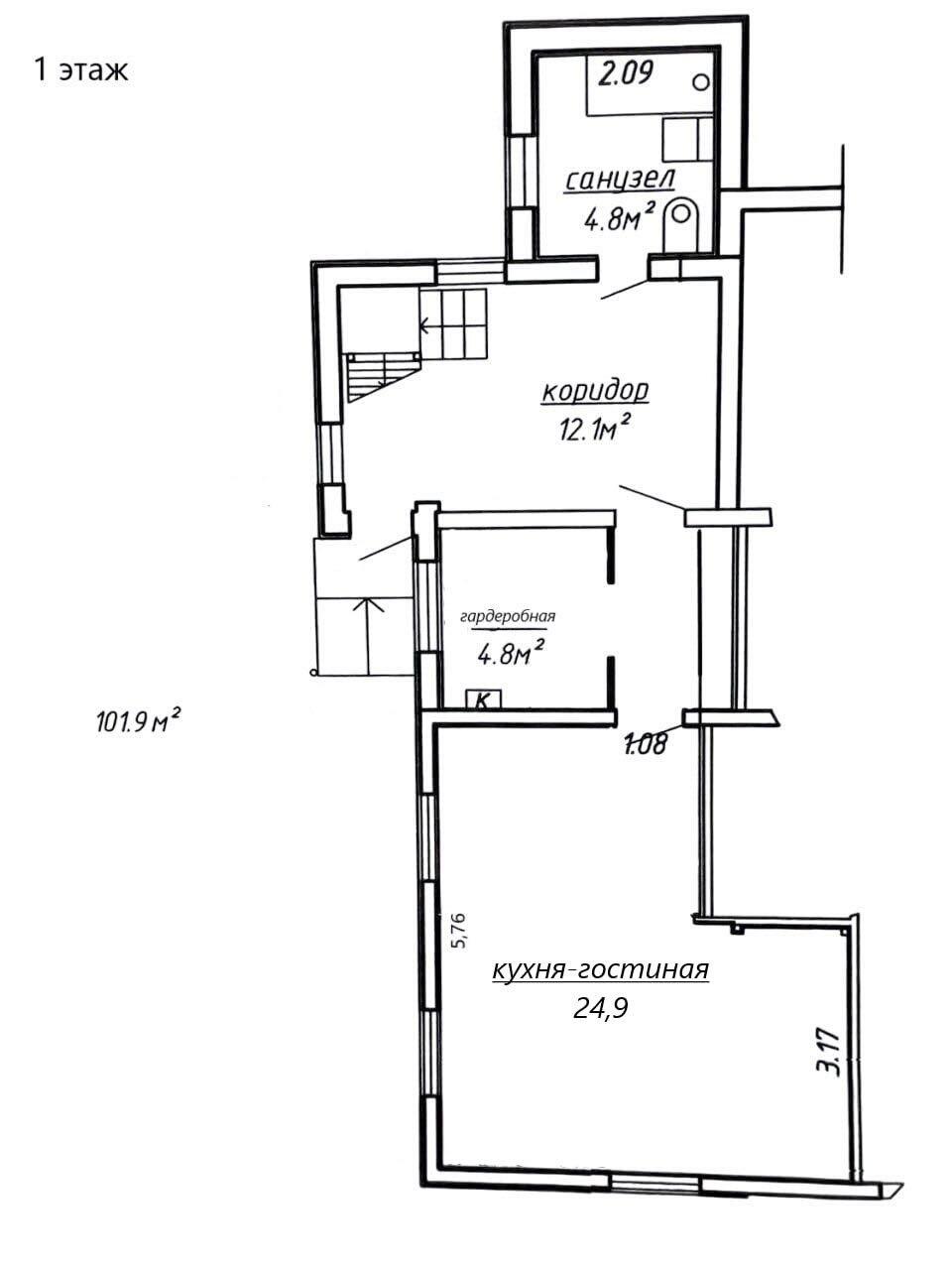
Планировка продумана до мелочей:– 1 этаж: просторная кухня-гостиная, санузел, гардеробная, прихожая– 2 этаж: три уютные спальни, санузел, гардеробная

В доме выполнен качественный современный ремонт, установлена техника – можно заехать и жить без дополнительных вложений.

Отдельное преимущество – индивидуальное отопление: вы сами регулируете температуру в доме в любое время года, создавая комфортный микроклимат независимо от сезона и городских графиков отопления, а также оптимизируете расходы на коммунальные услуги.

У вас будет свой приватный участок с уникальной атмосферой:– ухоженная территория со взрослыми растениями (туи, лаванда, голубика, жимолость и др.)– терраса с зоной барбекю для отдыха и встреч с друзьями– хозблок около 20 м2 (легко переоборудовать в баню или гостевой дом)– высокие грядки и возможность собирать свежие ягоды и зелень прямо к завтраку

Участок полностью уединен и скрыт от посторонних глаз – настоящий оазис спокойствия в городе.

Дополнительные преимущества:– 2 удобных парковочных места во дворе– возможность зарядки электромобиля– отдельные коммуникации и полная автономность от соседей (фактически как два независимых дома)– тихий, безопасный и малонаселенный район

Отличная локация:– 10 минут пешком до метро– удобный транспорт (автобусы, троллейбусы, маршрутки)– 15–20 минут до ЖД вокзала и центра– рядом школы, детские сады, магазины, банк, почта– в шаговой доступности парк с озером в Солнечной долине

Здесь вы можете наслаждаться тишиной и уютом собственного дома, устраивать барбекю на террасе, а уже через 20 минут – гулять в центре города.

Возможна покупка в кредит!Поможем быстро продать вашу квартиру, чтобы купить эту.Звоните прямо сейчас, покажем в удобное для вас время.

ООО «ЭТАЖИ юнайтед»УНП: 193673318Договор 840/1 от 16.04.2026Лицензия на оказание риэлтерских услуг №02240/460 МЮ РБ от 03.04.2023Ознакомиться с политикой обработки персональных данных ООО «ЭТАЖИ юнайтед» можно здесь.Совершая звонок, вы даете согласие на обработку персональных данных.

Информация об объекте
Общая площадь 101.9 м²
Жилая площадь 66.5 м²
Площадь кухни 24.9 м²
Год постройки 2013
Материал стен дерево
Отопление паровое
Свет есть
Вода рядом водопровод
Газ нет
Дата обновления 22.04.2026
Дата добавления 22.04.2026
Квартира на карте
Микрорайон Октябрьский район
Минская обл. д. Буцевичи
27 000 $  
Продается просторный земельный участок в деревне Буцевичи! Участок для ведения личного подсобного хозяйства. Площадь участка - 25,58 соток. Международное агентство недвижимости “Этажи” - это полный комплекс сервисов по операциям с недвижимостью: нужно продать квартиру для покупки этой? Воспользуйтесь или рассчитайте её Рассмотрите альтернативные во всех ЖК Минска с бесплатным подбором. Не...
Минская обл. д. Оптик-Узборье
89 000 $  
Интересный садовый дом для жизни в СТ «Оптик-Узборье», на участке 7,51 сот. в частной собственности. 16 км от МКАД. Асфальтированный подъезд до СТ. Удобные подъезды к дому. Стоянка для авто. В доме есть баня! Фундамент: ФБС блоки заглублены на 1,2 м. Подвал бетон. Перекрытия: 1 этаж - ж/б плиты, 2 и 3 этаж – деревянные. Стены: 1 этаж – красный кирпич (ширина 40 см); 2, 3 этаж – брус пиленный...
Минская обл. д. Буцевичи
35 000 $  
Продается просторный земельный участок в деревне Буцевичи! Участок для ведения личного подсобного хозяйства. Площадь участка – 33,12 соток. Международное агентство недвижимости “Этажи” - это полный комплекс сервисов по операциям с недвижимостью: нужно продать квартиру для покупки этой? Воспользуйтесь или рассчитайте её Рассмотрите альтернативные во всех ЖК Минска с бесплатным подбором. Не...
Минская обл. д. Новинка д. 8
265 000 $  
Продаётся отличный дом с большим участком 18,29 сот. (ЧС) в д. Новинка, (17,7км от МКАД, 14 мин. на авто). Небольшая уютная деревня Новинка расположена в километре от Фаниполя. Тихая, крайняя, не проездная улица, предпоследний участок. Соседи только с двух сторон, за участком открывается живописный вид на зелёные просторы. Земельный участок более 18 соток, ровный, прямоугольный (34*55м),...
Минская обл. д. ЛЕСНОЕ-ЛИВЬЕ
11 500 $  
Продаётся уютный дачный домик в СТ «Лесное-Ливье» - идеальное место для отдыха от городской суеты и жизни на природе. Дом бревенчатый, тёплый и экологичный, построен в 1980 году. Внутри - аккуратная отделка деревом, создающая особую атмосферу уюта и спокойствия. Отопление печное - настоящий дачный формат с живым теплом. Крыша - шифер, окна и двери деревянные. Коммуникации:- электричество 220В -...
Минская обл. п. Колодищи д. 16
160 000 $  
Уникальное предложение для ценителей комфорта и экологии! Продаётся участок ПРЕМИУМ-КЛАССА с сосновым лесом в живописном и экологически чистом районе возле Республиканского Биологического Заказника Глебковка, расположенного в пригороде Минска, всего в 8 км от МКАД. Зeмельный учacтoк плoщaдью 15 coток в самом экологически благоприятном месте аг. Колодищи. Частная форма собственности. Целевое...
375 ... показать телефон Специалист по недвижимости
Минская обл. г. Жодино, ул. Солнечная
105 000 $  
Продается дом с комфортной планировкой в городе Жодино. Расположен в обжитом коттеджном районе, откуда всего 6 км до центра Жодино и 50 км до Минска, а также 2 км до р. Плиса, где оборудована зона для отдыха. Хорошее транспортное сообщение, 15 минут пешком до остановки общественного транспорта, где курсируют несколько городских автобусов. Дом 2004 года постройки с цокольным этажом и мансардой,...
375 ... показать телефон Специалист по недвижимости
Минская обл. д. Энергетик-5
8 000 $  
В продаже дача в садовом товариществе "Энергетик-5", Руденского сельсовета. Площадь земельного участка - 5.6 соток. На участке расположен двухэтажный садовый домик, площадью 27 метров квадратных. Двускатная крыша, стены и перегородки - дерево. Есть подвал. Две теплицы, металл и стекло, переживут любой ураган. Дровник, железный сарай, туалет на улице. Электричество. Вода сезонная....
Минская обл. д. Узборье
105 000 $  
Прекрасный дом для круглогодичного проживания —в котором хочется жить в удовольствие! Расположение: всего 15 км от МКАД, Логойское направление, Минский район, СТ "Узборье", напротив горнолыжного курорта "Раубичи". Основные характеристики: - Площадь участка: 6,33 сотки (частная собственность). - Площадь дома: 107,6 кв.м., полностью готов к заселению. - Этажность: Три...
Минская обл. д. Черница
69 900 $  
Отличный дом в окружении лесного массива — всего 17 км от МКАД! Ищете идеальное место для загородного отдыха или постоянного проживания на лоне природы, вблизи Минска? Этот просторный дом общей площадью около 150 м2 с участком 13.7 м2 в 17 км от Минска — именно то, что Вам нужно! Преимущества дома: · Просторный трехуровневый дом из кирпича, который держит тепло зимой, и прохладу летом! ·...
375 ... показать телефон Специалист по недвижимости
Зарегистрируйтесь через ваш аккаунт в соцсетях:
или через нашу форму:
Войдите через ваш аккаунт в соцсетях:
или введите логин и пароль:
Регистрация
Еще можно просмотреть номера телефона.

Для снятия ограничения нужна всего лишь регистрация.

Так мы защищаем информацию клиентов от роботов

Выбери квартиру за 2.99 BYN

  • Мы собираем и обрабатываем для вас информацию с 10 сайтов
  • Звоним по всем объявлениям со всего интернета
  • Задаем уточняющие вопросы
  • Получаем дополнительную информацию

Все это, чтобы вам было проще сделать выбор

Стоимость к этой информации - от 2.99 рублей в месяц

Выбрать тариф
Получите больше просмотров Вашего объявления

Получите х10 показов! Закрепите объявление в ТОПе и выделите его цветом.

Стоимость услуги - 15 рублей за 30 дней или 22 рубля за 60 дней.

Как это работает.

Ваше объявление будет выделено цветом и будет закреплено в результатах поиска под спецпозициями.

Для оплаты через ЕРИП:

Перейдите в раздел "Интернет-магазины/сервисы" -> "H" -> "Hata.by" -> "Оплата по номеру заказа"

Введите один номер заказа - либо , и проведите оплату.

В течение 30 минут мы обработаем оплату в автоматическом режиме и реклама начнет работать.

Получите больше просмотров Вашего объявления

Закрепите объявление в начале первой страницы каталога. Объявление будет находится над простыми объявлениями. Стоимость услуги - 50р. за 2 недели.

Как это работает.

Объявление закрепляется под спецпозициями на первой странице каталога. Бесплатные объявления находятся внизу результатов поиска. Таким образом, посетители сайта увидят ваше объявление в первую очередь.

Для оплаты через ЕРИП:

Перейдите в раздел "Интернет-магазины/сервисы" -> "H" -> "Hata.by" -> "Оплата по номеру заказа"

Введите номер заказа - 0 и проведите оплату.

В течение 30 минут мы обработаем оплату в автоматическом режиме и реклама начнет работать.

Забронировать объект
Ваше имя:
Заезд:
Дата заезда:
Время заезда:
Количество гостей:
Отезд:
Дата отезда:
Время отезда:
Ваш вопрос владельцу объявления:
Больше не выводить для меня
Я хочу сообщить, что данное объявление более не актуально.
Удаление объявления
У Вас есть доступ к номеру +375445089783 куда мы можем прислать код для подтверждения?
Изменить объявление
У Вас есть доступ к номеру +375445089783 куда мы можем прислать код для подтверждения?
Подписаться на изменение цены объекта
Введите ваш email:
Распечатать объявление
Заказать фотографа

Профессиональные фотографии интерьера

Для того что бы отразить все преимущества вашего объекта недвижимости и привлечь больше внимания от потенциальных клиентов, вы можете заказать услуги профессионального фотографа у нас.

Готовые фотографии вы получаете на электронную почту в течении 2-х рабочих дней.

Снимки делаются на широкоугольный объектив.

Заказы принимаются только по городу Минску

Вид объекта/Цена

1-комнатная квартира 60 руб.

2-комнатная квартира 80 руб.

3-комнатная квартира 100 руб.

Другое - Договорная

Для заказа услуг фотографа и консультации свяжитесь с нашими менеджерами по тел.: +375-44-550-45-45

Отображение на карте
Сохраните поиск
Введите Ваш email:
Период рассылки:
Добавить в избранное
Добавить объект в:
Чтобы добавить объект в список, создайте список