Выберите услуги

Продается просторный дом в 12 км от МКАД

255 просмотров за все время, 31 с мобильных сегодня 2, неделя 4, месяц 19 Добавлено - 29.01.2025
109 000 $  
цена действительна ТОЛЬКО при ссылке на hata.by
Подписаться на изменение цены
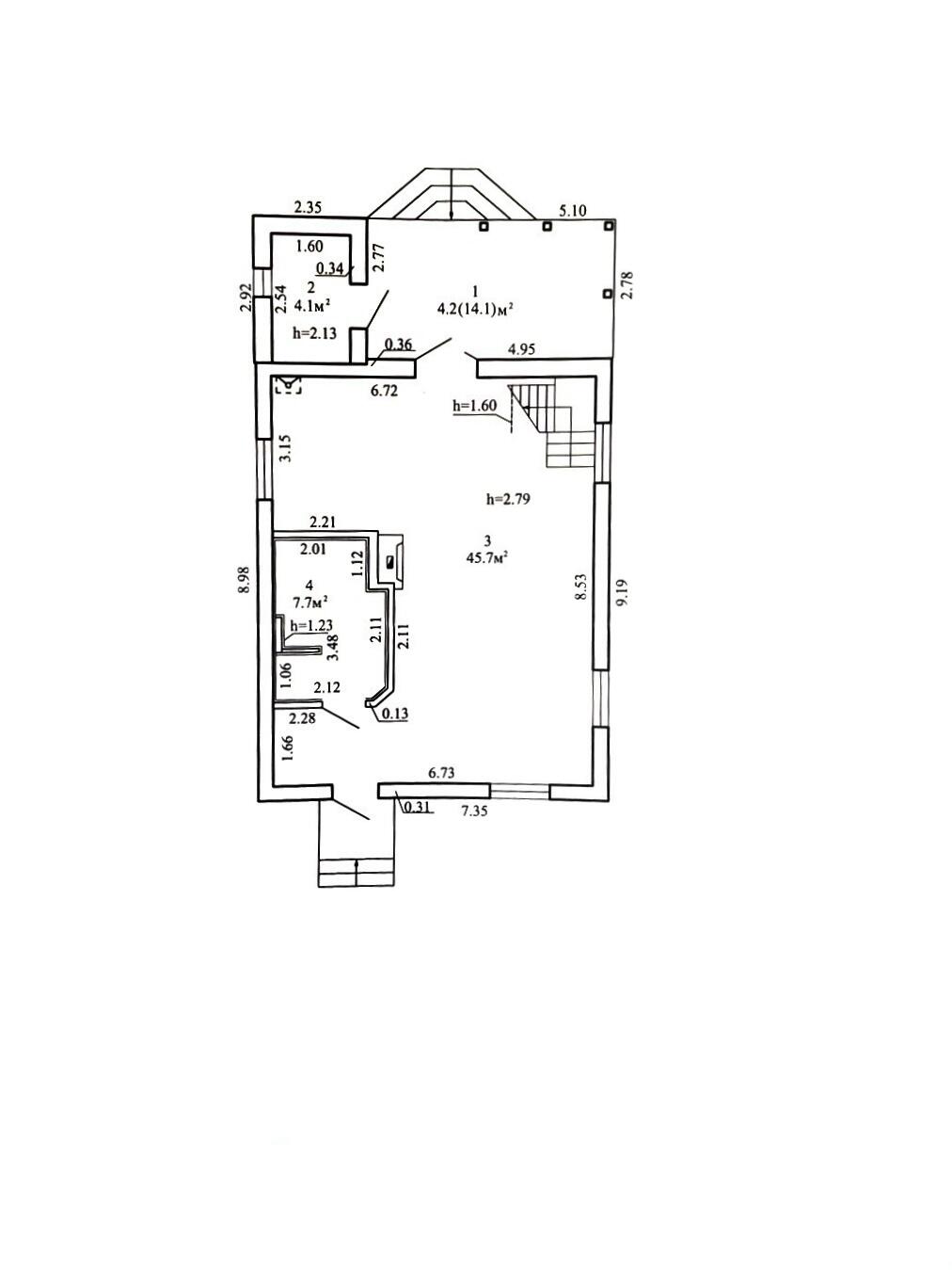
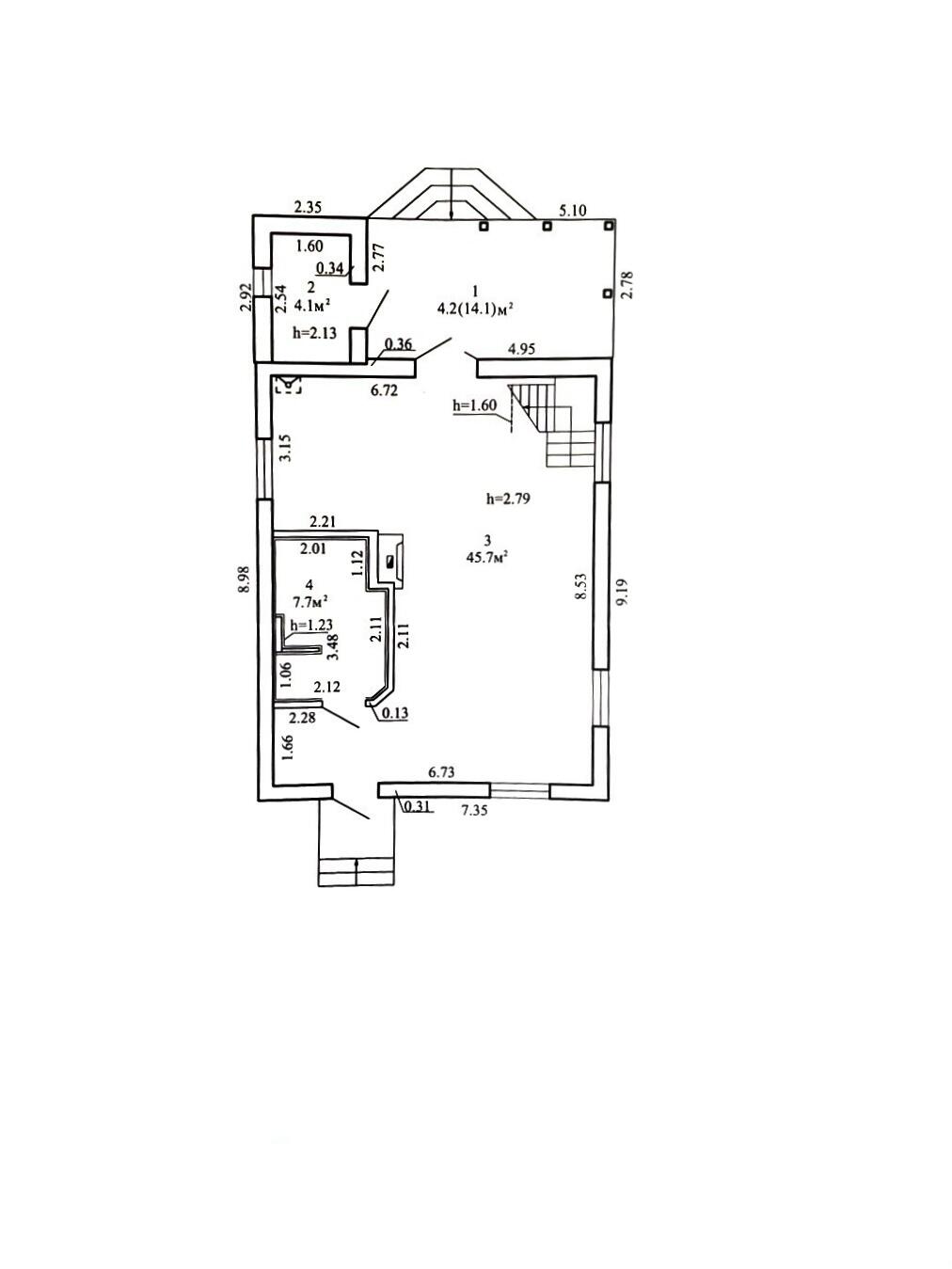
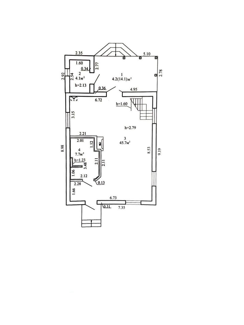
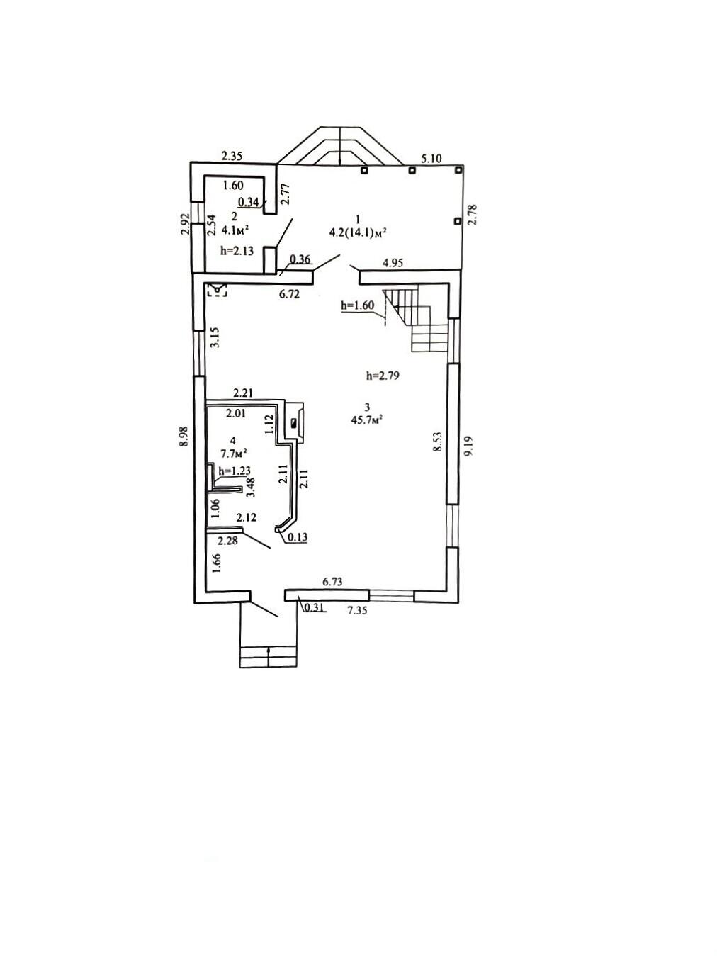
Площадь119.4 м2
Агентство недвижимости АН Атриум
Почта
gaevskaya1806@gmail.com
Телефон
+375 (29) 605-32-83
Описание
Продается дом в престижном месте недалеко от Минска в СТ " Ветеран войны" , расположенном между п.Городище и д.Юхновка.

Дом блочный двухуровневый , с небольшой уютной террасой . Участок 6.69 соток ровной формы с хоз.постройкой.

Первый этаж требует небольшого ремонта , второй этаж полностью готов для проживания. Вся мебель остается будущим владельцам.

Отличное расположение СТ , до ст.м.Уручье 10 минут на автомобиле . Рядом с домом есть остановка общественного транспорта. Вся необходимая инфраструктура также располагается недалеко , магазины , кафе , амбулатория.

Звоните, организуем показ в удобное для Вас время!

Окажем помощь в продаже Вашего объекта недвижимости для приобретения данного дома.

Информация об объекте
Расстояние от МКАД 18 км
Общая площадь 119.4 м²
Жилая площадь 70 м²
Год постройки 2009
Материал стен блочный
Отопление паровое
Свет есть
Газ нет
Дата обновления 16.11.2025
Дата добавления 29.01.2025
Квартира на карте
Минская обл. д. Заря-81 д. 136
6 500 $  
Продажа участка 5 соток частной собственности от Минска 40 км и от Рудинска 5 км. Жилое СТ ,отличная локация, хорошие подъездные пути, красивый густой лес рядом . Участок ровной формы, вблизи находится небольшой пруд для рыбалки . Рядом остановка общественного транспорта. Налажено транспортное сообщение – ходят маршрутные такси и электрички. Минск-Руденск. Звоните , ответим на все интересующие...
Минская обл. д. Бузуны
85 000 $  
Предлагаем вашему вниманию уникальную возможность приобрести незавершенный дом общей площадью 189 кв.м. с участком 12 соток в частной собственности в живописной деревне Бузуны Воложинского района. (Раковское направление). Фундамент - свайно-ростверковый. Стены из керамзитобетонных блоков. Окна - двухкамерные ПВХ стеклопакеты установлены во всём доме. Крыша - металлочерепица. На первом этаже...
Минская обл. д. Мара д. 68
7 500 $  
Ищете идеальное место для строительства своей дачи или уютного дома? Вам повезло! Участок площадью 9.7 сотки уже ждет вас и ваш проект! Преимущества: Участок в частной собственности — никаких ограничений! Тихое, спокойное место для отдыха от городской суеты Прекрасные возможности для озеленения и ландшафтного дизайна. Хорошее транспортное сообщение: Станция электрички "Новое село" в...
Минская обл. д. Ель д. 132
33 000 $  
Представляем вашему вниманию дачный домик, расположенный всего в 27 км от МКАД, в живописном районе Молодечненского направления в СТ «Ель». Это идеальное место для отдыха на природе: рядом грибные и ягодные леса, а также множество исторических достопримечательностей. Характеристики: Площадь участка: 4.81 сотки Площадь дома: 53.5 кв.м. Этажность: Двухуровневый дом с мансардным этажом Год...
Минская обл. д. Сябры-88 д. 94
22 000 $  
Идеальное расположение всего в 20 километрах от города! Хотите жить ближе к природе, сохраняя близость к городским благам? Наш замечательный домик находится всего в получасе езды от города, что делает его идеальным выбором для пенсионеров, желающих сочетать активный отдых на свежем воздухе с возможностью быстро добраться до необходимых учреждений и развлечений. ️ Рядом густой лесной массив —...
Минская обл. д. Нестерки д. 4
33 500 $  
Продается дом с участком 25 соток в частной собственности в живописном месте. Деревня расположена на берегу Вилейского водохранилища в природно-охраняемой зоне в 10 км от г.Вилейка. Прекрасное место для отдыха и рыбалки. Хорошее транспортное сообщение, автобусы курсируют из г. Минска и г.Вилейки. Участок ровной формы, есть несколько хоз.построек, большой гараж. Оборудована баня. Высажены...
Минская обл. д. Раков, ул. Красноармейская д. 30
56 000 $  
Продается жилой дом в аг.Раков . На участке хоз.постройки ( помещения под гараж, сарай , курятник ) , также есть отдельно стоящее здание для бани и душевой . Высажен огород , кустарники , плодовитые деревья . Дом сборно-щитовой обложен кирпичом. Площадь по СНБ 104 кв.м. , 4 раздельные комнаты . Есть 2 большие веранды. Есть мансарда , с возможностью достроить второй этаж . Удобное расположение...
Зарегистрируйтесь через ваш аккаунт в соцсетях:
или через нашу форму:
Войдите через ваш аккаунт в соцсетях:
или введите логин и пароль:
Регистрация
Еще можно просмотреть номера телефона.

Для снятия ограничения нужна всего лишь регистрация.

Так мы защищаем информацию клиентов от роботов

Выбери квартиру за 2.99 BYN

  • Мы собираем и обрабатываем для вас информацию с 10 сайтов
  • Звоним по всем объявлениям со всего интернета
  • Задаем уточняющие вопросы
  • Получаем дополнительную информацию

Все это, чтобы вам было проще сделать выбор

Стоимость к этой информации - от 2.99 рублей в месяц

Выбрать тариф
Получите больше просмотров Вашего объявления

Получите х10 показов! Закрепите объявление в ТОПе и выделите его цветом.

Стоимость услуги - 15 рублей за 30 дней или 22 рубля за 60 дней.

Как это работает.

Ваше объявление будет выделено цветом и будет закреплено в результатах поиска под спецпозициями.

Для оплаты через ЕРИП:

Перейдите в раздел "Интернет-магазины/сервисы" -> "H" -> "Hata.by" -> "Оплата по номеру заказа"

Введите один номер заказа - либо , и проведите оплату.

В течение 30 минут мы обработаем оплату в автоматическом режиме и реклама начнет работать.

Получите больше просмотров Вашего объявления

Закрепите объявление в начале первой страницы каталога. Объявление будет находится над простыми объявлениями. Стоимость услуги - 50р. за 2 недели.

Как это работает.

Объявление закрепляется под спецпозициями на первой странице каталога. Бесплатные объявления находятся внизу результатов поиска. Таким образом, посетители сайта увидят ваше объявление в первую очередь.

Для оплаты через ЕРИП:

Перейдите в раздел "Интернет-магазины/сервисы" -> "H" -> "Hata.by" -> "Оплата по номеру заказа"

Введите номер заказа - 0 и проведите оплату.

В течение 30 минут мы обработаем оплату в автоматическом режиме и реклама начнет работать.

Забронировать объект
Ваше имя:
Заезд:
Дата заезда:
Время заезда:
Количество гостей:
Отезд:
Дата отезда:
Время отезда:
Ваш вопрос владельцу объявления:
Больше не выводить для меня
Я хочу сообщить, что данное объявление более не актуально.
Удаление объявления
У Вас есть доступ к номеру +375296053283 куда мы можем прислать код для подтверждения?
Изменить объявление
У Вас есть доступ к номеру +375296053283 куда мы можем прислать код для подтверждения?
Подписаться на изменение цены объекта
Введите ваш email:
Распечатать объявление
Заказать фотографа

Профессиональные фотографии интерьера

Для того что бы отразить все преимущества вашего объекта недвижимости и привлечь больше внимания от потенциальных клиентов, вы можете заказать услуги профессионального фотографа у нас.

Готовые фотографии вы получаете на электронную почту в течении 2-х рабочих дней.

Снимки делаются на широкоугольный объектив.

Заказы принимаются только по городу Минску

Вид объекта/Цена

1-комнатная квартира 60 руб.

2-комнатная квартира 80 руб.

3-комнатная квартира 100 руб.

Другое - Договорная

Для заказа услуг фотографа и консультации свяжитесь с нашими менеджерами по тел.: +375-44-550-45-45

Отображение на карте
Сохраните поиск
Введите Ваш email:
Период рассылки:
Добавить в избранное
Добавить объект в:
Чтобы добавить объект в список, создайте список