Выберите услуги

Продается дом в Колодищах с оригинальным авторским архитектурным исполнением!

324 просмотров за все время, 55 с мобильных сегодня 0, неделя 5, месяц 16 Добавлено - 01.08.2024
685 000 $  
цена действительна ТОЛЬКО при ссылке на hata.by
Подписаться на изменение цены
Площадь630.4 м2
Агентство недвижимости АН Этажи Юнайтед
Почта
reklama@minsk.etagi.com
Телефон
+375 (44) 790-04-96
Описание
Продаётся добротный просторный дом с уникальной планировкой в аг. Колодищи!!!

Дом кирпичный, что обеспечивает отличную тепло- и шумоизоляцию, построен в 2021 году. Снаружи стены (600мм) утеплены (100мм) и отделаны декоративным камнем. Общая площадь здания 630,4 м2. Фундамент – ФБС, перекрытия железобетонные, крыша – битумная черепица. На окнах ПВХ-профиль (почти все эркерные и французские), подоконники из натурального камня, полы залиты черновой стяжкой. Входная дверь металлическая. Межкомнатные двери отсутствуют. Высота потолков 1,2 этажи и подвал составляет 3,2 м2, 3 этаж 3м2. На первом этаже установлен камин, дымоход проведен на каждом этаже. Вентиляция с естественным побуждением.

Цокольный этаж: вмещает в себя просторный гараж на 4-5 авто, сауну и бассейн.

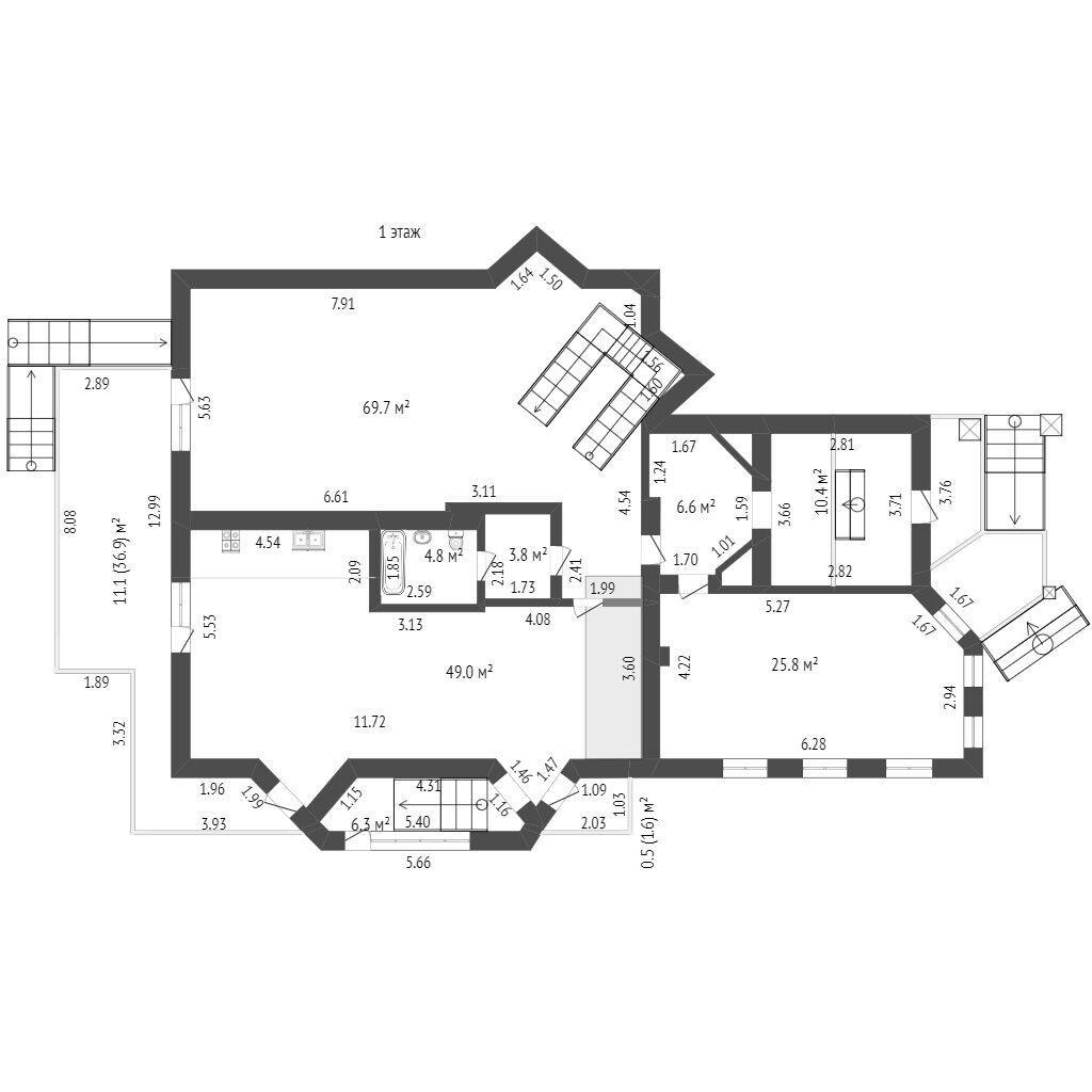
1 этаж: просторная кухня-гостиная 49,0 м2 с выходом на террасу 11м2, 2 больших комнаты общего пользования (69,7м2, 25,8м2), раздельный санузел. С 1 этажа можно спуститься на цокольный этаж не выходя из дома, что удобно. Отличное решение для отдыха большой компанией!

2 этаж: 3 комнаты (28,3 м2, 29,2 м2, 26,2 м2), прихожая 24,1 м2, санузлы.

3 этаж: 3 комнаты (33,6 м2, 24,1 м2, 18, 6 м2), просторная прихожая 32,2 м2, санузел.

Дом расположен недалеко от лесополосы. Здание многофункциональное, его можно использовать для жизни большой семьи, как агроусадьбу, место для ретрита, миниотеля, офисного здания и т. д.!!!

Коммуникации:

Водоснабжение центральное от водонапорной башни, обслуживающей агрогородок. Разведено по дому. Подогрев воды возможен от бойлера или двухконтурного газового котла по желанию будущего собственника.

Газоснабжение центральное, газовая труба расположена неподалеку, нужно подключать.

Электричество 220В/380В разведено по дому, электросчетчик установлен.

Канализация местная, разводка труб по дому есть.

Отопление планировалось от газового котла. Разводка труб отопления есть. Котел нужно покупать и устанавливать.

Подведено оптоволокно для телефона и интернета.

Участок:

Земельный участок вокруг дома составляет 12,14 соток, под огород не использовался. Огорожен забором. Находится в пожизненном наследуемом владении. Хоз. построек и плодово-ягодных насаждений нет.

Инфраструктура:

Аг. Колодищи – это отличное место для жизни на природе с городскими условиями. Расположен около биологического заказника «Глебковка». В поселке есть продуктовые магазины, детский сад, школа, почта, поликлиника и т.д. До ст. м. «Уручье» 15 минут езды автомобилем или общественным транспортом.

Возможен торг! Реальному покупателю камин в подарок от собственника!

Записывайтесь на показ прямо сейчас!!!

Поможем продать вашу недвижимость, чтобы купить эту!

Бесплатная консультация по кредитованию загородной недвижимости!

ООО «ЭТАЖИ юнайтед»УНП: 193673318Договор 1530/1 от 05.08.2025Лицензия на оказание риэлтерских услуг №02240/460 МЮ РБ от 03.04.2023

Информация об объекте
Расстояние от МКАД 8.2 км
Общая площадь 630.4 м²
Площадь кухни 49 м²
Год постройки 2021
Материал стен кирпичный
Отопление паровое
Свет есть
Вода рядом водопровод
Газ нет
Дата обновления 10.04.2026
Дата добавления 01.08.2024
Квартира на карте
Район
Минская обл. г. Вилейка, ул. Рабочая
137 373 $  
Продается уютный дом с гостевым домом в г. Вилейка! Предлагается к продаже современный двухэтажный дом с просторным гостевым домом. Идеальный вариант для большой и дружной семьи! Основные характеристики: Площадь дома: 1-й этаж — гостиная 45,5 м2, столовая 16,4 м2, кухня 10,6 м2, прачечная 7,0 м2. 2-й этаж: 3 просторные комнаты(15,7м, 13,9м, 19,8м), , большой холл 38,8м и гардероб 10,4м, лоджия...
Минская обл. д. Василевщина
420 000 $  
Продаётся дом с большим участком 25 сот. (ЧС) в д. Василевщина, (11км от МКАД). Дом расположен в отличной локации – дорога до Минска занимает считаные минуты. Хорошее транспортное сообщение – остановка общ. транспорта в пешей доступности. Асфальтовая дорога до участка. Приличные соседи. При необходимости, в доме могут комфортно проживать 2 семьи – имеются два входа, две кухни и раздельные сан...
Минская обл. д. Ручеек
22 000 $  
Ваш будущий дом в живописной загородной идиллии — СТ «Ручеёк», д. Рябушки Представьте: вы открываете дверь и слышите только пение птиц и запах свежего леса. Здесь можно строить дом точно под себя, не ограничиваясь чужими проектами. Общая площадь 16,6 соток – два смежных участка по 8,3 сотки. Почему стоит выбрать именно эти участки: Полностью свободные — никаких старых построек, можно создавать...
Минская обл. д. Весна-93
109 000 $  
Благодаря краевому расположению у вас есть уникальная возможность приобрести дом приватностью для уединённого отдыха: с одной стороны – спокойные и добрые соседи, с другой стороны – невероятные зелёные виды! Участок находится в живописном месте в хорошо развитом садовом товариществе Весна 93 (Минская область, Воложинский р-р) всего в 30 км от МКАД по скоростной трассе. Дача полностью готова к...
Брестская обл. Барановичский р-н д. Придатки, ул. Крошинская
135 000 $  
В продаже двухэтажный дом из бруса общей площадью 220 м2 на участке 50 соток — формат для тех, кто хочет больше свободы и комфорта за городом. — продуманная площадь: хватит места для семьи и гостей— два полноценных этажа — удобно разделить жилые зоны— участок 50 соток — можно реализовать любые идеи: сад, зона отдыха, баня— баня и камин — атмосфера загородной жизни уже внутри— гараж,...
Минская обл. д. Боровики д. 26
35 000 $  
БОРОВИКИ — жизнь за городом без компромиссов и с ростом стоимости Участок 19 соток в 22 км от МКАД — идеальный баланс природы, инфраструктуры и инвестиционной выгоды.Это не «глухая деревня», а живая, развивающаяся территория с устойчивым спросом. Локация, которая экономит ваше время и приумножает деньги Всего 10–15 минут до Минска по трассе М1 Быстрый доступ без пробок и светофоров До...
Минская обл. д. Ручеек
11 000 $  
Продается участок в СТ «Ручеёк», 323 (д. Рябушки), Минский р-н, Лошанский с/с8,32 сотки 25–26 км от Минска, удобный выезд на МКАД-2 Достойное садовое товарищество для жизни Закрытая, ухоженная территория Откатные ворота с дистанционным управлением Широкие дороги, чистятся зимой Многие соседи живут круглый год Это не «дачи в поле», а живое, развивающееся и комфортное сообщество Природа —...
Минская обл. д. Ревячка
39 900 $  
Два дома, отличная локация Продаётся участок с двумя домами в живописном и известном месте — около аг. Будслав. Это спокойный населённый пункт с историей, где находится Будславский костёл — одно из значимых мест Беларуси. Удобное расположение:— 110 км от Минска (около 1 часа 30 минут на машине)— есть железнодорожная станция— асфальтированная дорога до самого участка На участке расположены два...
Минская обл. д. Дещенка, ул. Солнечная
26 000 $  
Продается участок с домом в агрогородке Дещенка! Адрес: агрогородок Дещенка, Дещенский сельсовет, Узденский район, Минская область, ул. Солнечная, 36 Развитая инфраструктура для комфортного проживания: - детский сад - школа - магазины - кафе - сельсовет - конный клуб Сава- Лайн - ветклиника - врачебная амбулатория - рядом лес для прогулок и отдыха Удобный подъезд: асфальтированная дорога до...
375 ... показать телефон Специалист по недвижимости
Витебская обл. Бешенковичский р-н д. Рубеж
45 000 $  
БРАСЛАВ! Отличный объект как для проживания большой семьей, так и для какой либо коммерческой деятельности. Идеально для гостиничного бизнеса! Дом расположен в д.Рубеж-уголке Витебской области среди множества красивейших озер и великолепных пейзажей. Тихое уединенное место. Дом построен с учетом круглогодичного проживания. Подведены все необходимые коммуникации. Участок -0,25 га. Можно...
375 ... показать телефон Специалист по недвижимости
г. Минск, ул. Липовая д. 44
490 000 $  
Коттедж с сауной и ремонтом 212 м2 на участке 7,77 сотки Коротко о главном:Предлагается энергоэффективный дом с продуманной планировкой, двумя отдельными входами и современной техникой. Подходит как для постоянного проживания, так и для бизнеса (сдача, офис). Характеристики дома: · Общая площадь: 212 м2 · Участок: 7,77 сотки (ровный, ухоженный) · Этажей: 2 · Санузлов: 2 · Высота...
Зарегистрируйтесь через ваш аккаунт в соцсетях:
или через нашу форму:
Войдите через ваш аккаунт в соцсетях:
или введите логин и пароль:
Регистрация
Еще можно просмотреть номера телефона.

Для снятия ограничения нужна всего лишь регистрация.

Так мы защищаем информацию клиентов от роботов

Выбери квартиру за 2.99 BYN

  • Мы собираем и обрабатываем для вас информацию с 10 сайтов
  • Звоним по всем объявлениям со всего интернета
  • Задаем уточняющие вопросы
  • Получаем дополнительную информацию

Все это, чтобы вам было проще сделать выбор

Стоимость к этой информации - от 2.99 рублей в месяц

Выбрать тариф
Получите больше просмотров Вашего объявления

Получите х10 показов! Закрепите объявление в ТОПе и выделите его цветом.

Стоимость услуги - 15 рублей за 30 дней или 22 рубля за 60 дней.

Как это работает.

Ваше объявление будет выделено цветом и будет закреплено в результатах поиска под спецпозициями.

Для оплаты через ЕРИП:

Перейдите в раздел "Интернет-магазины/сервисы" -> "H" -> "Hata.by" -> "Оплата по номеру заказа"

Введите один номер заказа - либо , и проведите оплату.

В течение 30 минут мы обработаем оплату в автоматическом режиме и реклама начнет работать.

Получите больше просмотров Вашего объявления

Закрепите объявление в начале первой страницы каталога. Объявление будет находится над простыми объявлениями. Стоимость услуги - 50р. за 2 недели.

Как это работает.

Объявление закрепляется под спецпозициями на первой странице каталога. Бесплатные объявления находятся внизу результатов поиска. Таким образом, посетители сайта увидят ваше объявление в первую очередь.

Для оплаты через ЕРИП:

Перейдите в раздел "Интернет-магазины/сервисы" -> "H" -> "Hata.by" -> "Оплата по номеру заказа"

Введите номер заказа - 0 и проведите оплату.

В течение 30 минут мы обработаем оплату в автоматическом режиме и реклама начнет работать.

Забронировать объект
Ваше имя:
Заезд:
Дата заезда:
Время заезда:
Количество гостей:
Отезд:
Дата отезда:
Время отезда:
Ваш вопрос владельцу объявления:
Больше не выводить для меня
Я хочу сообщить, что данное объявление более не актуально.
Удаление объявления
У Вас есть доступ к номеру +375447900496 куда мы можем прислать код для подтверждения?
Изменить объявление
У Вас есть доступ к номеру +375447900496 куда мы можем прислать код для подтверждения?
Подписаться на изменение цены объекта
Введите ваш email:
Распечатать объявление
Заказать фотографа

Профессиональные фотографии интерьера

Для того что бы отразить все преимущества вашего объекта недвижимости и привлечь больше внимания от потенциальных клиентов, вы можете заказать услуги профессионального фотографа у нас.

Готовые фотографии вы получаете на электронную почту в течении 2-х рабочих дней.

Снимки делаются на широкоугольный объектив.

Заказы принимаются только по городу Минску

Вид объекта/Цена

1-комнатная квартира 60 руб.

2-комнатная квартира 80 руб.

3-комнатная квартира 100 руб.

Другое - Договорная

Для заказа услуг фотографа и консультации свяжитесь с нашими менеджерами по тел.: +375-44-550-45-45

Отображение на карте
Сохраните поиск
Введите Ваш email:
Период рассылки:
Добавить в избранное
Добавить объект в:
Чтобы добавить объект в список, создайте список