Выберите услуги

Продажа склада с офисами, южнее н.п. Хатежино

255 просмотров за все время, 28 с мобильных сегодня 0, неделя 4, месяц 9
3 500 000 $ общая    1 299 $/м²
цена действительна ТОЛЬКО при ссылке на hata.by
Подписаться на изменение цены
Площадь2695 м2
Агентство недвижимости Сильван-Инвест
Телефон
+375 (44) 780-08-63
+375 (29) 780-08-63
Описание
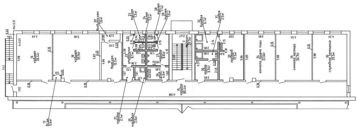
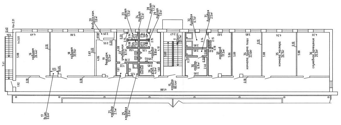
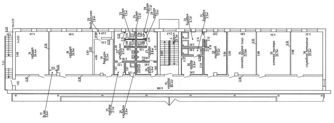
Складские и административные помещения

южнее н.п. Хатежино, с/с Хатежинский, р-н. Минский

Общая площадь: 2 695 м2

Зем. участок: 0,7729 га (право постоянного пользования)

Покупатель не оплачивает услуги риэлтерской организации!

• Приточно-вытяжная система вентиляции

• Отлично организованное пространство и внешняя инфраструктура

• Рампы, подъездные асфальтированные пути с удобным заездом для фур

• Материал стен: металлические сэндвич-панели

Ваш агент - Андрей Смолка

Подробнее см. на САЙТЕ

Информация об объекте
Общая площадь 2695 м²
Вид объекта склад
Дата обновления 06.03.2026
Квартира на карте
г. Минск, ул. Матусевича д. 20
4 586 040 $ общая    600 $/м²
Здание специализированное культурно-просветительного и зрелищного назначения г. Минск, ул. Матусевича, 20 Общая площадь: 7 643.4 м2 Зем. участок: 1,8772 га (право постоянного пользования) Покупатель не оплачивает услуги риэлтерской организации! Трехуровневое здание с концертно-презентационным залом: • АБК, учебные классы, складские помещения, концертный зал на 760 мест; • материал стен -...
375 ... показать телефон Андрей Смолка
г. Минск, ул. Некрасова д. 31
2 200 000 $ общая    658 $/м²
г. Минск, ул. Некрасова, 31 Общая площадь: 3 345.9 м2 Зем. участок: 0,9438 га (право постоянного пользования) Арендный бизнес с доходностью 12 % годовых. Двухэтажное здание с подвальным уровнем и отдельными входами: • помещения с хорошей отделкой; 2 душевые и более 10-и изол. санузлов; • система кондиционирования, приточно-вытяжная вентиляция; • благоустроенная огороженная территория; • своя...
375 ... показать телефон Андрей Смолка
г. Минск, ул. Козлова д. 25
1 543 500 $ общая    1 750 $/м²
Офис в новом БЦ «Forum Plaza» г. Минск, пер. Козлова, 25 Общая площадь: 882 м2 (4-й этаж) Покупатель не оплачивает услуги риэлтерской организации! • панорамное остекление, высокий уровень инсоляции; • приточно-вытяжная система вентиляции, кондиционирование; • оптоволоконные коммуникации (разведены сети); • высота потолков: от 2.7 м. • отдельные входы с этажей; • в бизнес-центре:...
375 ... показать телефон Андрей Смолка
Минская обл. д. Щомыслицкий с/с д. 43
11 450 000 $ общая    1 467 $/м²
Торгово-складской комплекс с/с Щомыслицкий, 43, район д. Дворицкая Слобода Общая площадь: 7 803.9 м2 7 638 м2 - здание специализир-е розничной торговли 131.3 м2 - здание специализир-е коммунального хозяйства 34.6 м2 - сооружение специализир-е энергетики Земельный участок: 2,6958 га (право аренды) Покупатель не оплачивает услуги риэлтерской организации! Первый и самый крупный мебельный центр в...
375 ... показать телефон Андрей Смолка
Брестская обл. Барановичский р-н г. Барановичи, ул. Маяковского д. 97
90 255 $ общая    50 $/м²
Здание складов, хранилищ, баз торговых, МТС г. Барановичи, ул. Маяковского, 97 Общая площадь: 1 805.1 м2 Зем. участок: 0,4309 га (право постоянного пользования) Покупатель не оплачивает услуги риэлтерской организации! Холодный склад с поворотно-откидными воротами, состоящий из 2 частей: 1 117.4 м2 и 687.7 м2 • естественное освещение, электроснабжение, высота потолков - 6 м.; • материал стен -...
375 ... показать телефон Андрей Смолка
г. Минск, ул. Мирошниченко д. 41
3 200 000 $ общая    800 $/м²
Здание ( административное, услуги, склады, производство) г. Минск, ул. Мирошниченко, 41 Общая площадь: 4000,2 м2 Участок и здание располагаются в городской черте, в одной из живописных зон микрорайона «Зеленый луг». В прямой досягаемости Цнянское водохранилище, граничит с ухоженным лесным массивом, преимущественно хвойных пород. Назначения земли и здания соответствуют заявленным...
375 ... показать телефон Смолка Андрей
г. Гомель, ул. Могилевская д. 17
10 000 000 $ общая    277 $/м²
Производственно-складской комплекс г. Гомель, ул. Могилевская, 17 Общая площадь: 36 110.1 м2 Покупатель не оплачивает услуги риэлтерской организации! Комплекс расположен на участке площадью 5,5877 га (право постоянного пользования): • кран-балка, рампа; • удобный подъезд для фур; • развитое транспортное сообщение; • выгодное территориальное расположение: СЭЗ «Гомель-Ратон», что позволяет...
375 ... показать телефон Андрей Смолка
г. Минск, ул. Мельникайте
564 000 $ общая    1 000 $/м²
Административное помещение в центре города г. Минск, ул. Мельникайте, 2 Общая площадь: 564 м2 Покупатель не оплачивает услуги риэлтерской организации! Помещение расположено на 8-м этаже административного здания с выгодной логистикой, которая напрямую зависит от наличия рядом крупных дорожных артерий столицы: ул.Романовская Слобода-Кальварийская-Немига-пр.Победителей. • Отличная транспортная...
375 ... показать телефон Смолка Андрей
г. Минск, пер. Стекольный д. 7
390 000 $ общая    3 839 $/м²
Здание г. Минск, пер. Стекольный, 7 Площадь: 101.6 м2 Зем. участок: 0,1105 га (право аренды) Возможность: проект на строительство административного здания по пер. Стекольному, 7 в г. Минске (площадь по проекту: 5 134.3 м2) Покупатель не оплачивает услуги риэлтерской организации! Возможные архитектурно-планировочные решения 8-и этажного здания с подвалом и частично техническим этажом: 1-й этаж:...
375 ... показать телефон Андрей Смолка
г. Минск, ул. Маяковского д. 146
598 500 $ общая    1 250 $/м²
Помещение под кафе, бар, ресторан, магазин г. Минск, ул. Маяковского, 146 Общая площадь: 478.8 м2 Покупатель не оплачивает услуги риэлтерской организации! Помещение действующего кафе расположено на 2-м этаже торгового центра: • 2 зала (123.3 и 154.7 м2), 3 с/у, система кондиционирования; • дизайн интерьера стилистического направления с атмосферой таверны; • 2 входа в кафе; • доступ 24/7; •...
375 ... показать телефон Андрей Смолка
г. Гродно, пр. Клецкова д. 15
4 000 000 $ общая    1 554 $/м²
Комплекс «TURAN» (ресторан и бар-пиццерия) г. Гродно, пр-т. Клецкова, 15А Общая площадь: 2 574.1 м2 Зем. участок: 0,1324 га (право аренды) Покупатель не оплачивает услуги риэлтерской организации! Ресторанный комплекс впечатляет своим роскошным интерьером, выполнен из качественных отделочных материалов с высоким уровнем инженерно-технического оснащения. Двухэтажное здание с цокольным уровнем...
375 ... показать телефон Андрей Смолка
Зарегистрируйтесь через ваш аккаунт в соцсетях:
или через нашу форму:
Войдите через ваш аккаунт в соцсетях:
или введите логин и пароль:
Регистрация
Еще можно просмотреть номера телефона.

Для снятия ограничения нужна всего лишь регистрация.

Так мы защищаем информацию клиентов от роботов

Выбери квартиру за 2.99 BYN

  • Мы собираем и обрабатываем для вас информацию с 10 сайтов
  • Звоним по всем объявлениям со всего интернета
  • Задаем уточняющие вопросы
  • Получаем дополнительную информацию

Все это, чтобы вам было проще сделать выбор

Стоимость к этой информации - от 2.99 рублей в месяц

Выбрать тариф
Получите больше просмотров Вашего объявления

Получите х10 показов! Закрепите объявление в ТОПе и выделите его цветом.

Стоимость услуги - 15 рублей за 30 дней или 22 рубля за 60 дней.

Как это работает.

Ваше объявление будет выделено цветом и будет закреплено в результатах поиска под спецпозициями.

Для оплаты через ЕРИП:

Перейдите в раздел "Интернет-магазины/сервисы" -> "H" -> "Hata.by" -> "Оплата по номеру заказа"

Введите один номер заказа - либо , и проведите оплату.

В течение 30 минут мы обработаем оплату в автоматическом режиме и реклама начнет работать.

Получите больше просмотров Вашего объявления

Закрепите объявление в начале первой страницы каталога. Объявление будет находится над простыми объявлениями. Стоимость услуги - 50р. за 2 недели.

Как это работает.

Объявление закрепляется под спецпозициями на первой странице каталога. Бесплатные объявления находятся внизу результатов поиска. Таким образом, посетители сайта увидят ваше объявление в первую очередь.

Для оплаты через ЕРИП:

Перейдите в раздел "Интернет-магазины/сервисы" -> "H" -> "Hata.by" -> "Оплата по номеру заказа"

Введите номер заказа - 0 и проведите оплату.

В течение 30 минут мы обработаем оплату в автоматическом режиме и реклама начнет работать.

Забронировать объект
Ваше имя:
Заезд:
Дата заезда:
Время заезда:
Количество гостей:
Отезд:
Дата отезда:
Время отезда:
Ваш вопрос владельцу объявления:
Больше не выводить для меня
Я хочу сообщить, что данное объявление более не актуально.
Удаление объявления
У Вас есть доступ к номеру +375447800863 куда мы можем прислать код для подтверждения?
Изменить объявление
У Вас есть доступ к номеру +375447800863 куда мы можем прислать код для подтверждения?
Подписаться на изменение цены объекта
Введите ваш email:
Распечатать объявление
Заказать фотографа

Профессиональные фотографии интерьера

Для того что бы отразить все преимущества вашего объекта недвижимости и привлечь больше внимания от потенциальных клиентов, вы можете заказать услуги профессионального фотографа у нас.

Готовые фотографии вы получаете на электронную почту в течении 2-х рабочих дней.

Снимки делаются на широкоугольный объектив.

Заказы принимаются только по городу Минску

Вид объекта/Цена

1-комнатная квартира 60 руб.

2-комнатная квартира 80 руб.

3-комнатная квартира 100 руб.

Другое - Договорная

Для заказа услуг фотографа и консультации свяжитесь с нашими менеджерами по тел.: +375-44-550-45-45

Отображение на карте
Сохраните поиск
Введите Ваш email:
Период рассылки:
Добавить в избранное
Добавить объект в:
Чтобы добавить объект в список, создайте список