Выберите услуги

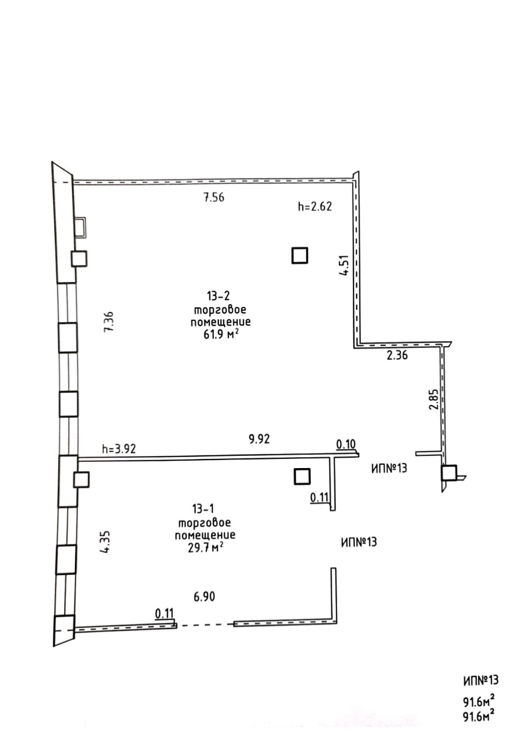
Помещение (кафе, торговля, общепит, услуги) 30+61 м2

90 просмотров за все время, 9 с мобильных сегодня 0, неделя 2, месяц 9 Добавлено - 15.09.2025
413 $ общая    14 $/м²
цена действительна ТОЛЬКО при ссылке на hata.by
Подписаться на изменение цены

Почта
svetlanick1@gmail.com
Телефон
+375 (29) 628-93-17
Viber
+375296289317
Whatsapp
+375296289317
Telegram
+375296289317
Описание
Сдается помещение общая площадь 91,6м2. Разделено на два помещения 29,7+61,9м2. Можно арендовать отдельно. С юридическим адресом. Сдача от физ.лица.

• вентиляция с естественным побуждением движения воздуха;

• разведены электрические сети;

• центральное водоснабжение и отопление;

• пожарная сигнализация.

Собственный санузел. Подходит для общепита, электрическая мощность 55кВт. Местонахождение - в ТЦ Белмаркет. Район проходной, оживленный, много жилых домов: многоквартирных и частного сектора, а также ведется активная стройка многоэтажных домов.

Информация об объекте
Помещений 2
Вид объекта кафе
Год постройки 2018
Состояние удовлетворительное
Дата обновления 15.09.2025
Дата добавления 15.09.2025
Дополнительно
  • парковка
  • срочно
  • в торговом центре
  • оживленное место
  • интернет
Квартира на карте
Район
Зарегистрируйтесь через ваш аккаунт в соцсетях:
или через нашу форму:
Войдите через ваш аккаунт в соцсетях:
или введите логин и пароль:
Регистрация
Еще можно просмотреть номера телефона.

Для снятия ограничения нужна всего лишь регистрация.

Так мы защищаем информацию клиентов от роботов

Выбери квартиру за 2.99 BYN

  • Мы собираем и обрабатываем для вас информацию с 10 сайтов
  • Звоним по всем объявлениям со всего интернета
  • Задаем уточняющие вопросы
  • Получаем дополнительную информацию

Все это, чтобы вам было проще сделать выбор

Стоимость к этой информации - от 2.99 рублей в месяц

Выбрать тариф
Получите больше просмотров Вашего объявления

Получите х10 показов! Закрепите объявление в ТОПе и выделите его цветом.

Стоимость услуги - 15 рублей за 30 дней или 22 рубля за 60 дней.

Как это работает.

Ваше объявление будет выделено цветом и будет закреплено в результатах поиска под спецпозициями.

Для оплаты через ЕРИП:

Перейдите в раздел "Интернет-магазины/сервисы" -> "H" -> "Hata.by" -> "Оплата по номеру заказа"

Введите один номер заказа - либо , и проведите оплату.

В течение 30 минут мы обработаем оплату в автоматическом режиме и реклама начнет работать.

Получите больше просмотров Вашего объявления

Закрепите объявление в начале первой страницы каталога. Объявление будет находится над простыми объявлениями. Стоимость услуги - 50р. за 2 недели.

Как это работает.

Объявление закрепляется под спецпозициями на первой странице каталога. Бесплатные объявления находятся внизу результатов поиска. Таким образом, посетители сайта увидят ваше объявление в первую очередь.

Для оплаты через ЕРИП:

Перейдите в раздел "Интернет-магазины/сервисы" -> "H" -> "Hata.by" -> "Оплата по номеру заказа"

Введите номер заказа - 0 и проведите оплату.

В течение 30 минут мы обработаем оплату в автоматическом режиме и реклама начнет работать.

Забронировать объект
Ваше имя:
Заезд:
Дата заезда:
Время заезда:
Количество гостей:
Отезд:
Дата отезда:
Время отезда:
Ваш вопрос владельцу объявления:
Больше не выводить для меня
Я хочу сообщить, что данное объявление более не актуально.
Удаление объявления
У Вас есть доступ к номеру +375296289317 куда мы можем прислать код для подтверждения?
Изменить объявление
У Вас есть доступ к номеру +375296289317 куда мы можем прислать код для подтверждения?
Подписаться на изменение цены объекта
Введите ваш email:
Распечатать объявление
Заказать фотографа

Профессиональные фотографии интерьера

Для того что бы отразить все преимущества вашего объекта недвижимости и привлечь больше внимания от потенциальных клиентов, вы можете заказать услуги профессионального фотографа у нас.

Готовые фотографии вы получаете на электронную почту в течении 2-х рабочих дней.

Снимки делаются на широкоугольный объектив.

Заказы принимаются только по городу Минску

Вид объекта/Цена

1-комнатная квартира 60 руб.

2-комнатная квартира 80 руб.

3-комнатная квартира 100 руб.

Другое - Договорная

Для заказа услуг фотографа и консультации свяжитесь с нашими менеджерами по тел.: +375-44-550-45-45

Отображение на карте
Сохраните поиск
Введите Ваш email:
Период рассылки:
Добавить в избранное
Добавить объект в:
Чтобы добавить объект в список, создайте список