Выберите улицу
Применить Сбросить
Выберите район
Применить
Выберите услуги
Выберите метро
Выберите микрорайон

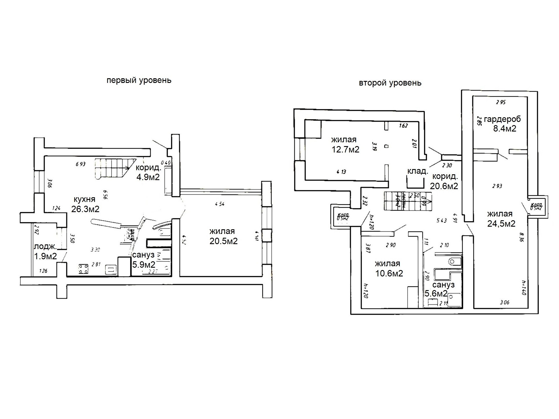
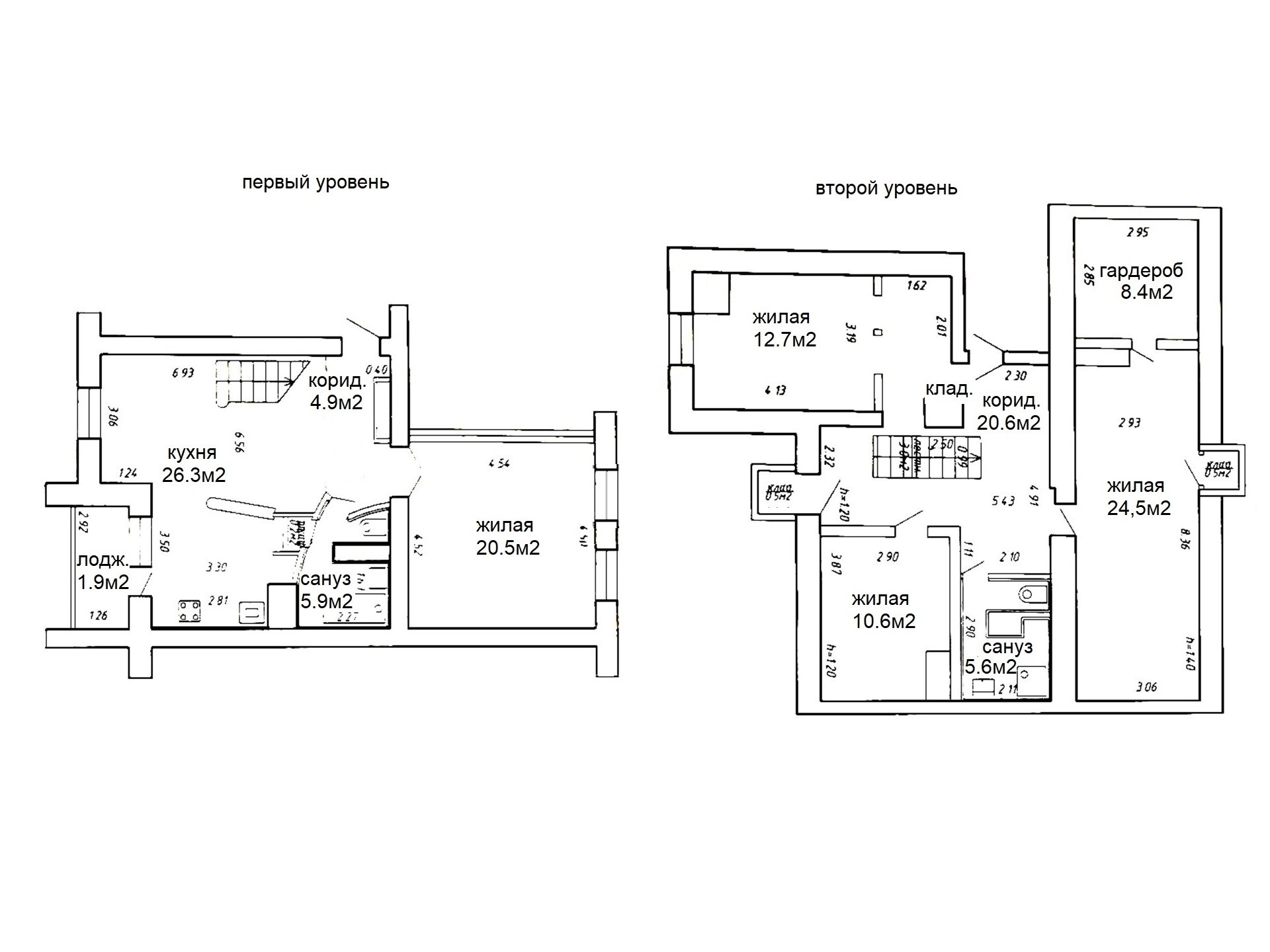
Продается 4-комнатная квартира, г.Минск, 1-й Полиграфический пер. д.4 (м-н Зеленый Луг).

36 просмотров за все время, 3 с мобильных сегодня 0, неделя 3, месяц 36 Добавлено - 25.11.2025
218 000 $  
цена действительна ТОЛЬКО при ссылке на hata.by
Подписаться на изменение цены
Площадь144.9 м2 (4 комнаты)
Агентство недвижимости Риэлтерский Дом
Почта
rd-odo@mail.ru
Телефон
+375 (29) 639-04-59
Описание
Продается 4-комнатная квартира, г.Минск, 1-й Полиграфический пер. д.4 (м-н Зеленый Луг).

Общая площадь квартиры 144.9м2, жилая 77.2м2 состоит из 4 изолированных комнат, выходящих на разные стороны дома, просторная кухня-гостиная 26.3м2, два санузла.

Квартира двухуровневая, расположена на 5 и 6 этажах 6 этажного кирпичного дома 2000 года постройки. Толстые стены, железобетонные перекрытия, хорошая звукоизоляция. В квартире тепло зимой и не жарко летом.

Отличный качественный ремонт. Ламинированные полы, стеклопакеты ПВХ, металлическая входная дверь, межкомнатные двери массив.

Комфортные условия для проживания. Чистый аккуратный подъезд, хорошие приветливые соседи. Уютный зеленый двор. Возле дома оборудована детская игровая площадка, где Ваши дети с радостью смогут провести время. Во дворе всегда найдется место для Вашего автомобиля.

Район с хорошо развитой инфраструктурой. Всё необходимое в шаговой доступности. Продуктовые магазины, школы, детские сады, салоны красоты, банки, почтовое отделения и многое другое. Всего в 5-х минутах ходьбы от дома расположен живописный Севастопольский парк – экологически чистый островок для отдыха и прогулок, где можно здорово провести время на свежем воздухе.

Недалеко Цнянское водохранилище - излюбленное место отдыха минчан.

Удобное транспортное сообщение. Остановка общественного транспорта расположена недалеко от дома. Вы легко сможете комфортно добираться в любую часть города. В 7 минутах от дома планируется к строительству станция метро "Кольцова" (Зеленая ветка метро), что в будущем значительно увеличит стоимость жилья.

Сделайте шаг навстречу своей мечте! Звоните, согласуем удобное время осмотра. Поможем выгодно продать вашу недвижимость для покупки данного объекта. Бесплатно проконсультируем, окажем профессиональную помощь в сложных вопросах с недвижимостью, обеспечим юридическое сопровождение сделки и безопасность взаиморасчетов. Квалифицированные специалисты с большим опытом работы.

ОДО "Риэлтерский Дом", г.Минск, ул.Берестянская д.12 оф.110, 111. УНП 190113134, лицензия на право осуществления деятельности по оказанию юридических услуг (риэлтерские услуги) №02240/55 выдана 06.06.2005 Министерством юстиции Республики Беларусь, договор №44/1 от 10.07.2024

Информация об объекте
Этаж / этажность 5 / 6
Комнат 4
Общая площадь 144.9 м²
Жилая площадь 77.2 м²
Площадь кухни 26.3 м²
Тип дома кирпичный
Год постройки 2000
Планировка улучшеный проект
Ремонт отличный ремонт
Полы ламинирование
Балкон / Лоджия два
Санузел два
Условие сделки чистая продажа
Условие сделки чистая продажа
Собственность частная
Дата обновления 25.11.2025
Дата добавления 25.11.2025
Квартира на карте
Микрорайон Сельхозпосёлок
г. Минск, пер. Полиграфический 1-й д. 4
4 комнаты (этаж 5 / 6)
218 000 $  
Продается 4-комнатная квартира, г.Минск, 1-й Полиграфический пер. д.4 (м-н Зеленый Луг). Общая площадь квартиры 144.9м2, жилая 77.2м2 состоит из 4 изолированных комнат, выходящих на разные стороны дома, просторная кухня-гостиная 26.3м2, два санузла. Квартира двухуровневая, расположена на 5 и 6 этажах 6 этажного кирпичного дома 2000 года постройки. Толстые стены, железобетонные перекрытия,...
375 ... показать телефон Риэлтерский Дом ОДО
г. Минск, ул. Розы Люксембург д. 99
2 комнаты (этаж 2 / 5)
87 000 $  
Продается 2-комнатная квартира, г.Минск, ул.Люксембург,99 Видео о квартире можно посмотреть по ссылке ниже https://youtu.be/Koef4Xzr4tY Общая площадь квартиры 43.4м2, площадь жилая 31.5м2, площадь кухни 6.0м2, санузел совмещенный, высота потолков 2.5м. Жилое помещение расположено на 2 этаже 5 этажного кирпичного дома (1964 г./кап.ремонт 2011 г.). Толстые стены и отличная звукоизоляция...
375 ... показать телефон Риэлтерский Дом ОДО
Минская обл. г. Смолевичи
3 комнаты (этаж 2 / 3)
65 000 $  
Продается просторная 3-комнатная квартира, г.Смолевичи, ул.Связистов,7 (м-н Крыница). Видео о квартире можно посмотреть по ссылке ниже https://youtu.be/qoHxJ7QngEc Общая площадь квартиры составляет 77.5м2 (по СНБ 79.9м2), жилая 47.4м2 состоит из трех изолированных комнат, выходящих на разные стороны дома, большая уютная кухня площадью 9.5м2, санузел раздельный, застекленная лоджия 2.4м2...
375 ... показать телефон Риэлтерский Дом ОДО
г. Минск, ул. Лынькова Михася д. 23 к. г
3 комнаты (этаж 5 / 9)
125 000 $  
3-комнатая квартира в тихом районе г.Минска по адресу: ул.Лынькова, 23Г. Видео о квартире можно посмотреть по ссылке ниже https://youtu.be/kQJuD995aZo Улучшенный проект. Просторная квартира общей площадью 71.6м2 (по СНБ 75.6м2). Жилая 43.6м2 состоит из трех изолированных комнат (17.9м2 + 14.0м2 + 11.7м2), выходящих на две стороны дома. Большая кухня 9.3м2. Квартира расположена на 5 этаже...
375 ... показать телефон Риэлтерский Дом ОДО
г. Минск, ул. Щербакова д. 29
2 комнаты (этаж 2 / 5)
72 800 $  
Продается 2-комнатная квартира, г. Минск, ул.Щербакова,29. Видео о квартире можно посмотреть по ссылке ниже https://youtu.be/ANzqzhLibeI Общая площадь составляет 44.5м2, жилая 30.5м2 состоит из двух изолированных комнат, уютная кухня 5.9м2, санузел совмещенный, высота потолков 2.56м. Квартира расположена на 2 этаже 5 этажного панельного дома (1966 г.). В 2009 году в доме прошел капитальный...
375 ... показать телефон Риэлтерский Дом ОДО
г. Минск, ул. Ауэзова д. 12
3 комнаты (этаж 5 / 5)
95 000 $  
Продается 3-комнатная квартира, г.Минск, ул.Ауэзова, 12 (м-н Чижовка). Видео о квартире можно посмотреть по ссылке https://www.youtube.com/watch?v=ij7LIDkBuPk Общая площадь квартиры составляет 61.4м2 (по СНБ 62.2м2). Жилая 45.9м2 состоит из трёх изолированных комнат, выходящих на разные стороны дома. Уютная кухня 6.2м2. Санузел раздельный. Высота потолков 2.51м. Есть застекленный балкон...
375 ... показать телефон Риэлтерский Дом ОДО
Минская обл. д. Слобода, ул. Машерова д. 7а
2 комнаты (этаж 1 / 9)
77 000 $  
Продается 2-комнатная квартира в 15 минутах от метро Уручье (р-н Кургана Славы, аг.Слобода, ул.Машерова,7а). Удобная современная планировка. Общая площадь 59.2м2 (по СНБ 61.9м2), жилая 29.8м2 состоит из двух изолированных комнат (17.0м2 и 12.8м2), просторная кухня 11.5м2, высота потолков 2.7м, площадь лоджии 3.8м2, санузел раздельный. Квартира расположена на 1 высоком этаже 9 этажного блочного...
375 ... показать телефон Риэлтерский Дом ОДО
Зарегистрируйтесь через ваш аккаунт в соцсетях:
или через нашу форму:
Войдите через ваш аккаунт в соцсетях:
или введите логин и пароль:
Регистрация
Еще можно просмотреть номера телефона.

Для снятия ограничения нужна всего лишь регистрация.

Так мы защищаем информацию клиентов от роботов

Выбери квартиру за 2.99 BYN

  • Мы собираем и обрабатываем для вас информацию с 10 сайтов
  • Звоним по всем объявлениям со всего интернета
  • Задаем уточняющие вопросы
  • Получаем дополнительную информацию

Все это, чтобы вам было проще сделать выбор

Стоимость к этой информации - от 2.99 рублей в месяц

Выбрать тариф
Получите больше просмотров Вашего объявления

Получите х10 показов! Закрепите объявление в ТОПе и выделите его цветом.

Стоимость услуги - 15 рублей за 30 дней или 22 рубля за 60 дней.

Как это работает.

Ваше объявление будет выделено цветом и будет закреплено в результатах поиска под спецпозициями.

Для оплаты через ЕРИП:

Перейдите в раздел "Интернет-магазины/сервисы" -> "H" -> "Hata.by" -> "Оплата по номеру заказа"

Введите один номер заказа - либо , и проведите оплату.

В течение 30 минут мы обработаем оплату в автоматическом режиме и реклама начнет работать.

Получите больше просмотров Вашего объявления

Закрепите объявление в начале первой страницы каталога. Объявление будет находится над простыми объявлениями. Стоимость услуги - 50р. за 2 недели.

Как это работает.

Объявление закрепляется под спецпозициями на первой странице каталога. Бесплатные объявления находятся внизу результатов поиска. Таким образом, посетители сайта увидят ваше объявление в первую очередь.

Для оплаты через ЕРИП:

Перейдите в раздел "Интернет-магазины/сервисы" -> "H" -> "Hata.by" -> "Оплата по номеру заказа"

Введите номер заказа - 0 и проведите оплату.

В течение 30 минут мы обработаем оплату в автоматическом режиме и реклама начнет работать.

Забронировать объект
Ваше имя:
Заезд:
Дата заезда:
Время заезда:
Количество гостей:
Отезд:
Дата отезда:
Время отезда:
Ваш вопрос владельцу объявления:
Больше не выводить для меня
Я хочу сообщить, что данное объявление более не актуально.
Удаление объявления
У Вас есть доступ к номеру +375296390459 куда мы можем прислать код для подтверждения?
Изменить объявление
У Вас есть доступ к номеру +375296390459 куда мы можем прислать код для подтверждения?
Подписаться на изменение цены объекта
Введите ваш email:
Распечатать объявление
Заказать фотографа

Профессиональные фотографии интерьера

Для того что бы отразить все преимущества вашего объекта недвижимости и привлечь больше внимания от потенциальных клиентов, вы можете заказать услуги профессионального фотографа у нас.

Готовые фотографии вы получаете на электронную почту в течении 2-х рабочих дней.

Снимки делаются на широкоугольный объектив.

Заказы принимаются только по городу Минску

Вид объекта/Цена

1-комнатная квартира 60 руб.

2-комнатная квартира 80 руб.

3-комнатная квартира 100 руб.

Другое - Договорная

Для заказа услуг фотографа и консультации свяжитесь с нашими менеджерами по тел.: +375-44-550-45-45

Отображение на карте
Сохраните поиск
Введите Ваш email:
Период рассылки:
Добавить в избранное
Добавить объект в:
Чтобы добавить объект в список, создайте список