Выберите улицу
Применить Сбросить
Выберите услуги

Двухкомнатная квартира, Колодищи.

56 просмотров за все время, 7 с мобильных сегодня 0, неделя 13, месяц 56 Добавлено - 10.11.2025
89 900 $  
цена действительна ТОЛЬКО при ссылке на hata.by
Подписаться на изменение цены
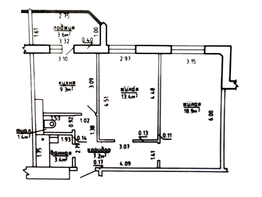
Площадь57.2 м2
Агентство недвижимости ООО «ДИНАС-недвижимость»
Почта
office@dinas.by
Телефон
+375 (29) 117-66-69
Описание
Продается светлая, очень уютная квартира в аг. Колодищи.

Тихое место, окруженное лесным массивом; закрытая территория.

До метро 4 остановки на общественном транспорте или 5 мин на машине.

В квартире сделан аккуратный ремонт.

Мебель остаётся.

Две небольшие раздельные комнаты, гостиная и кухня.

Раздельный санузел, просторный балкон.

На данный момент квартира сдаётся, если кто то рассматривает этот вариант под инвестицию, можно дальше сдавать им.

Информация об объекте
Общая площадь 57.2 м²
Жилая площадь 32.3 м²
Площадь кухни 9.3 м²
Год постройки 2010
Балкон / Лоджия лоджия
Санузел раздельный
Дата обновления 05.12.2025
Дата добавления 10.11.2025
Квартира на карте
Район
г. Могилев, ул. Челюскинцев д. 170
44 000 $  
Продается трехкомнатная квартира в уютном спальном районепо ул.Челюскинцев, д.170Б. Предлагаем Вашему вниманию светлую и просторную трехкомнатную квартиру на 3 этаже 5-этажного крупнопанельного дома, построенного в 1974 году. Общая площадь квартиры составляет 57,20 м2, а жилая — 40,90 м2. Особенности квартиры: • Изолированные комнаты: две комнаты (10,60 м2 и 12,40 м2) и одна проходная (17,20...
г. Могилев, ул. Краснозвездная д. 48
62 000 $  
Продаётся 2-комнатная квартира в Казимировке — новый дом 2025 года! Идеальный вариант для тех, кто хочет переехать в современный, развивающийся район с продуманной инфраструктурой Площадь: 55,4 м2 (по СНБ 57,9) Этаж: 4 из 7 Дом: панельный, новострой 2025 года Состояние: чистовое, готова к вашим дизайнерским решениям Преимущества квартиры: • Удобная планировка — комнаты правильной формы, легко...
г. Минск, ул. Ландера д. 64
70 000 $  
Развитая инфраструктура района: детсады, школы, гимназии, взрослая и детская поликлиника.Торгово-развлекательныецентры. Рядом с домом несколько зеленых зон: Заказник «Солнечная Долина» для прогулок с местами отдыха и занятий спортом, велодорожками и лыже-роллерной трассой. Множество фитнесс центров, салонов красоты, кафе, ресторанов, развивающих центров. По улице Ландера 64 продается 2-ух...
г. Минск, ул. Аэродромная д. 26
137 000 $  
3-комнатная квартира с современным ремонтом в доме "Лиллехаммер"в квартале Чемпионов! Современный стиль и комфорт - квартира площадью 60,1 кв.м по СНБ с продуманной планировкой: просторная кухня-гостиная и 2 отдельные комнаты. Данный вариант идеально подойдет любому, кто ценит функциональность пространства. Квартира готова к проживанию без дополнительных вложений! Вся техника и мебель...
г. Минск, ул. Лобанка д. 32
129 900 $  
Продается уютная квартира с удобной планировкой. Дом повышенной комфортности 2000 года. Квартира расположена на 4-м этаже 12 дома. Общая площадь по СНБ – 79,6 м2, жилая - 44,6 м2, кухня – 9 м2. Высота потолков 2,61 м. Ремонт выполнен из качественных материалов, в светлых тонах. Стены, потолок и пол идеально выровнены, на полу ламинат/плитка, теплый пол, ПВХ стеклопакеты,артезианская вода +...
г. Минск, ул. Жудро д. 35
122 000 $  
Продается просторная квартира с тремя раздельными комнатами в престижном районе нашей столицы! Три раздельные комнаты! Две лоджии! Красивая придомовая территория, уютный двор, чистый подъезд. Дом после капитального ремонта. Квартира полностью готова к проживанию! Напольное покрытие- ламинат и плитка. Стеклопакеты, межкомнатные двери, входная металлическая дверь. Натяжные потолки. Ванная комната...
Минская обл. д. Копище д. 2
135 000 $  
Готовое решение для жизни! Возможность купить полностью укомплектованную квартиру с качественным ремонтом, в комфортном, современном и зеленом районе! Инфраструктура: - новый детсад с бассейном - школа №1 в шаговой доступности - медицинские учреждения, - магазины: круглосуточный «Евроопт», «Green», «Соседи Экспресс», «Гиппо»Тамбур на две квартиры, кухня оборудована качественной техникой,...
Минская обл. г. Марьина Горка, ул. Советская д. 20
45 000 $  
Уникальное месторасположение до ж.д 5 мин.пешком, а также отдельный вход с отдельной огороженной территорией. Квартира в квартирном дерево-кирпичном доме на 4 комнаты из них одна зальная с камином. Еще одна мансардная комната на 2 этаже. Комбинированные полы дерево + линолеум+ кафельная плитка+ бетонка. Стеклопакеты. У дома находиться сарай, гараж, обустроенная баня. Двухконтурный котел –...
г. Минск, ул. Аэродромная д. 18
159 000 $  
Расположена в очень удобном месте, в шаговой доступности ТЦ Авиа молл и Метро. Счётчики воды, фильтр для воды, бойлер, стеклопакеты, домофон, металлическая дверь, детская площадка, прекрасный вид из окон на запад. Рядом с домом большая парковка. При продаже ищем встречный вариант большей площади. Рядом находятся 2 детских сада и 2 современных школы, тихий двор, отличные соседи, очень развитая...
г. Минск, ул. Розы Люксембург д. 173
73 000 $  
По улице Р.Люксембург 173 продается уютная двухкомнатная квартира(с отдельной спальней) с ремонтом, частично с мебелью и техникой. Дом утопает в зелени деревьев.Отличный вариант для жизни! Удобная планировка. Стеклопакеты с профилем из ПВХ. Шкаф-купе в спальне. Высота потолков - 2,9м, что придает пространству легкость и простор. 3 этаж позволит вам насладиться великолепным видом на окружающую...
Зарегистрируйтесь через ваш аккаунт в соцсетях:
или через нашу форму:
Войдите через ваш аккаунт в соцсетях:
или введите логин и пароль:
Регистрация
Еще можно просмотреть номера телефона.

Для снятия ограничения нужна всего лишь регистрация.

Так мы защищаем информацию клиентов от роботов

Выбери квартиру за 2.99 BYN

  • Мы собираем и обрабатываем для вас информацию с 10 сайтов
  • Звоним по всем объявлениям со всего интернета
  • Задаем уточняющие вопросы
  • Получаем дополнительную информацию

Все это, чтобы вам было проще сделать выбор

Стоимость к этой информации - от 2.99 рублей в месяц

Выбрать тариф
Получите больше просмотров Вашего объявления

Получите х10 показов! Закрепите объявление в ТОПе и выделите его цветом.

Стоимость услуги - 15 рублей за 30 дней или 22 рубля за 60 дней.

Как это работает.

Ваше объявление будет выделено цветом и будет закреплено в результатах поиска под спецпозициями.

Для оплаты через ЕРИП:

Перейдите в раздел "Интернет-магазины/сервисы" -> "H" -> "Hata.by" -> "Оплата по номеру заказа"

Введите один номер заказа - либо , и проведите оплату.

В течение 30 минут мы обработаем оплату в автоматическом режиме и реклама начнет работать.

Получите больше просмотров Вашего объявления

Закрепите объявление в начале первой страницы каталога. Объявление будет находится над простыми объявлениями. Стоимость услуги - 50р. за 2 недели.

Как это работает.

Объявление закрепляется под спецпозициями на первой странице каталога. Бесплатные объявления находятся внизу результатов поиска. Таким образом, посетители сайта увидят ваше объявление в первую очередь.

Для оплаты через ЕРИП:

Перейдите в раздел "Интернет-магазины/сервисы" -> "H" -> "Hata.by" -> "Оплата по номеру заказа"

Введите номер заказа - 0 и проведите оплату.

В течение 30 минут мы обработаем оплату в автоматическом режиме и реклама начнет работать.

Забронировать объект
Ваше имя:
Заезд:
Дата заезда:
Время заезда:
Количество гостей:
Отезд:
Дата отезда:
Время отезда:
Ваш вопрос владельцу объявления:
Больше не выводить для меня
Я хочу сообщить, что данное объявление более не актуально.
Удаление объявления
У Вас есть доступ к номеру +375291176669 куда мы можем прислать код для подтверждения?
Изменить объявление
У Вас есть доступ к номеру +375291176669 куда мы можем прислать код для подтверждения?
Подписаться на изменение цены объекта
Введите ваш email:
Распечатать объявление
Заказать фотографа

Профессиональные фотографии интерьера

Для того что бы отразить все преимущества вашего объекта недвижимости и привлечь больше внимания от потенциальных клиентов, вы можете заказать услуги профессионального фотографа у нас.

Готовые фотографии вы получаете на электронную почту в течении 2-х рабочих дней.

Снимки делаются на широкоугольный объектив.

Заказы принимаются только по городу Минску

Вид объекта/Цена

1-комнатная квартира 60 руб.

2-комнатная квартира 80 руб.

3-комнатная квартира 100 руб.

Другое - Договорная

Для заказа услуг фотографа и консультации свяжитесь с нашими менеджерами по тел.: +375-44-550-45-45

Отображение на карте
Сохраните поиск
Введите Ваш email:
Период рассылки:
Добавить в избранное
Добавить объект в:
Чтобы добавить объект в список, создайте список