Выберите улицу
Применить Сбросить
Выберите район
Применить
Выберите услуги
Выберите метро
Выберите микрорайон

Продается 2-комнатная квартира, г.Минск, ул.Асаналиева,20/1.

66 просмотров за все время, 12 с мобильных сегодня 1, неделя 17, месяц 66 Добавлено - 03.11.2025
79 900 $  
цена действительна ТОЛЬКО при ссылке на hata.by
Подписаться на изменение цены
Площадь49.7 м2 (2 комнаты)
Агентство недвижимости Риэлтерский Дом
Почта
rd-odo@mail.ru
Телефон
+375 (29) 665-10-52
Описание
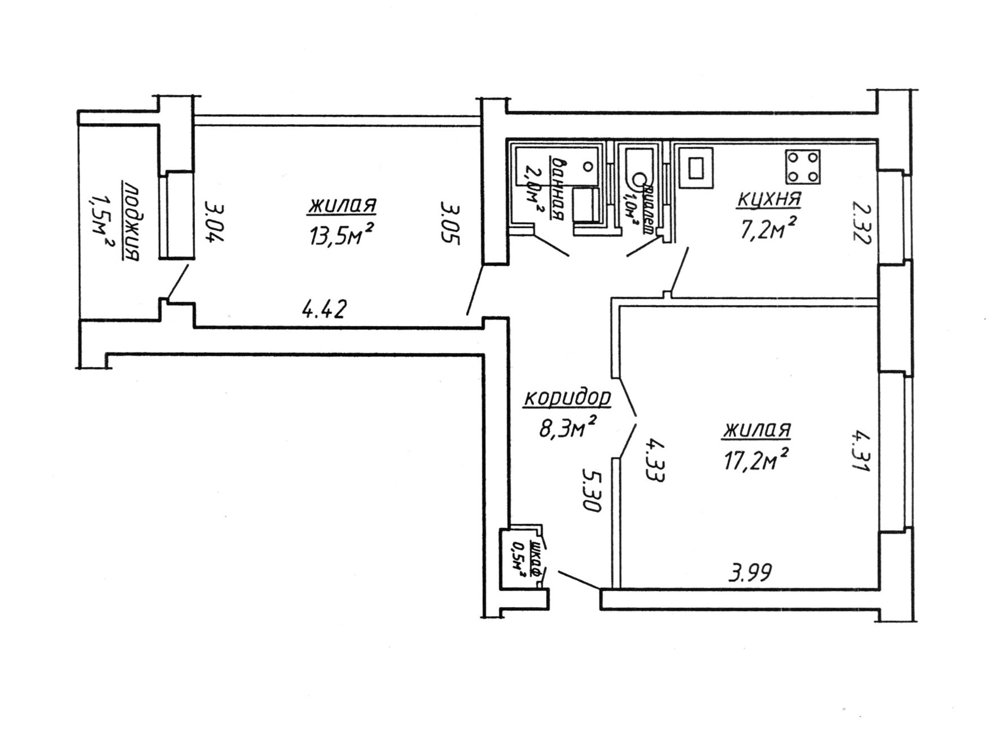
Продается 2-комнатная квартира, г.Минск, ул.Асаналиева,20/1.

Квартира расположена на 3 этаже 5 этажного кирпичного дома (1974 г. / кап.рем.2005 г.). Общая площадь составляет 49.7м2 (по СНБ 51.2м2), площадь жилая 30.7м2 состоит из двух изолированных комнат (17.2м2 + 13.5м2), выходящих на разные стороны дома, просторная кухня 7.2м2, раздельный санузел, высота потолков 2.5м, застекленная лоджия 1.5м2.

В доме прошел капитальный ремонт. Фасад утеплили и покрасили, отремонтировали подъезды, на окнах установили деревянные стеклопакеты, заменили коммуникации, установили счетчики на воду и газ. В жилых комнатах на полу уложен паркет.

Комфортные условия для проживания. Тихий спокойный двор, всегда достаточно парковочных мест, оборудована стоянка для велосипедов, благоустроенная детская площадка. Возле дома две школы и два детских сада, зеленая зона для прогулок, Лошицкий парк 10 мин пешком.

Вся необходимая инфраструктура в шаговой доступности. Вблизи дома есть магазины Гиппо и Евроопт, банки, поликлиники. Хорошее транспортное сообщение, рядом остановка общественного транспорта, до станции метро Неморшанский сад 12 минут пешком.

Чистая продажа, ключи отдадим в день сделки. Сделайте шаг навстречу своей мечте! Звоните, согласуем удобное время осмотра. Поможем выгодно продать вашу недвижимость для покупки данного объекта. Бесплатно проконсультируем, окажем профессиональную помощь в сложных вопросах с недвижимостью, обеспечим юридическое сопровождение сделки и безопасность взаиморасчетов. Квалифицированные специалисты с большим опытом работы.

ОДО "Риэлтерский Дом", г.Минск, ул.Берестянская д.12 оф.110, 111. УНП 190113134, лицензия на право осуществления деятельности по оказанию юридических услуг (риэлтерские услуги) №02240/55 выдана 06.06.2005 Министерством юстиции Республики Беларусь, договор №59/1 от 30.10.2025.

Информация об объекте
Этаж / этажность 3 / 5
Комнат 2
Общая площадь 49.7 м²
Жилая площадь 30.7 м²
Площадь кухни 7.2 м²
Тип дома кирпичный
Год постройки 1974
Год кап. ремонта 2005
Планировка брежневка
Ремонт косметический ремонт
Полы паркет
Балкон / Лоджия лоджия
Санузел раздельный
Условие сделки чистая продажа
Условие сделки чистая продажа
Собственность частная
Дата обновления 15.11.2025
Дата добавления 03.11.2025
Квартира на карте
Микрорайон Кижеватова, Асаналиева
г. Минск, ул. Асаналиева д. 2
1 комната (этаж 5 / 9)
59 000 $  
г. Минск, ул. Асаналиева д. 20 к. 1
2 комнаты (этаж 3 / 5)
79 900 $  
Продается 2-комнатная квартира, г.Минск, ул.Асаналиева,20/1. Квартира расположена на 3 этаже 5 этажного кирпичного дома (1974 г. / кап.рем.2005 г.). Общая площадь составляет 49.7м2 (по СНБ 51.2м2), площадь жилая 30.7м2 состоит из двух изолированных комнат (17.2м2 + 13.5м2), выходящих на разные стороны дома, просторная кухня 7.2м2, раздельный санузел, высота потолков 2.5м, застекленная лоджия...
375 ... показать телефон Риэлтерский Дом
г. Минск, ул. Кижеватова д. 80 к. 2
2 комнаты (этаж 8 / 9)
88 000 $  
Продается 2 комнатная квартира с отличным ремонтом, вблизи метро, 2 мин. пешком ул. Кижеватова, 80 кор.2 8 этаж 9-ти этажного панельного дома 1977 г.п.. По СНБ 40,8 кв.м. Общая 38,7 кв.м. Жилая 23,6 кв.м. Кухня 6,4 кв.м. Уютная современная квартира с ремонтом и мебелью: - полы ламинат, - межкомнатные двери МДФ, - кухонная мебель с газовой варочной поверхностью и духовым...
г. Минск, ул. Асаналиева д. 2
1 комната (этаж 5 / 9)
59 000 $  
г. Минск, ул. Корженевского д. 13
1 комната (этаж 4 / 9)
61 900 $  
Квартира в зеленом районе Минска с развитой инфраструктурой. Есть все необходимое для жизни. Прямо около дома находится остановка общественного транспорта, в 10 минутах две станции метро - Малиновка и Слуцкий гостинец. Идеальный 4 этаж с лифтом, окна выходят на зеленую зону. На кухне все продумано до мелочей, использовались современные отделочные материалы. Новая кухня, обустроенная...
г. Минск, ул. Лынькова Михася д. 23 к. г
3 комнаты (этаж 5 / 9)
120 900 $  
3-комнатая квартира в тихом районе г.Минска по адресу: ул.Лынькова, 23Г. Улучшенный проект. Просторная квартира общей площадью 71.6м2 (по СНБ 75.6м2). Жилая 43.6м2 состоит из трех изолированных комнат (17.9м2 + 14.0м2 + 11.7м2), выходящих на две стороны дома. Большая кухня 9.3м2. Квартира расположена на 5 этаже 9-ти этажного панельного дома (1978 г.) Раздельный санузел. Вместительный коридор...
375 ... показать телефон Риэлтерский Дом ОДО
г. Минск, пер. Уральский д. 11
1 комната (этаж 3 / 5)
64 500 $  
Продаётся 1-комнатная квартира, г.Минск, пер.Уральский,11. Видео о квартире можно посмотреть по ссылке ниже https://youtu.be/e1cA_zFhshk 3 этаж 5 этажного кирпичного дома (1964 г./кап.ремонт 2023 г.). Площадь общая 30.5м2 (по СНБ 31.3м2), площадь жилая 18.2м2, площадь кухни 6м2, застекленный балкон, санузел совмещенный, высота потолков 2.52м. За квартирой закреплен подвал. Отличное...
375 ... показать телефон Риэлтерский Дом ОДО
г. Минск, ул. Щербакова д. 29
2 комнаты (этаж 2 / 5)
73 500 $  
Продается 2-комнатная квартира, г. Минск, ул.Щербакова,29. Видео о квартире можно посмотреть по ссылке ниже https://youtu.be/ANzqzhLibeI Общая площадь составляет 44.5м2, жилая 30.5м2 состоит из двух изолированных комнат, уютная кухня 5.9м2, санузел совмещенный, высота потолков 2.56м. Квартира расположена на 2 этаже 5 этажного панельного дома (1966 г.). В 2009 г. в доме прошел капитальный...
375 ... показать телефон Риэлтерский Дом ОДО
г. Минск, ул. Ауэзова д. 12
3 комнаты (этаж 5 / 5)
85 000 $  
Продается 3-комнатная квартира, г.Минск, ул.Ауэзова, 12 (м-н Чижовка). Видео о квартире можно посмотреть по ссылке https://www.youtube.com/watch?v=ij7LIDkBuPk Общая площадь квартиры составляет 61.4м2 (по СНБ 62.2м2). Жилая 45.9м2 состоит из трёх изолированных комнат, выходящих на разные стороны дома. Уютная кухня 6.2м2. Санузел раздельный. Высота потолков 2.51м. Есть застекленный балкон...
375 ... показать телефон Риэлтерский Дом ОДО
Минская обл. д. Слобода, ул. Машерова д. 7а
2 комнаты (этаж 1 / 9)
77 000 $  
Продается 2-комнатная квартира в 15 минутах от метро Уручье (р-н Кургана Славы, аг.Слобода, ул.Машерова,7а). Удобная современная планировка. Общая площадь 59.2м2 (по СНБ 61.9м2), жилая 29.8м2 состоит из двух изолированных комнат (17.0м2 и 12.8м2), просторная кухня 11.5м2, высота потолков 2.7м, площадь лоджии 3.8м2, санузел раздельный. Квартира расположена на 1 высоком этаже 9 этажного блочного...
375 ... показать телефон Риэлтерский Дом ОДО
Минская обл. д. Вишневец, ул. Школьная
3 комнаты (этаж 1 / 2)
39 000 $  
3-комнатная квартира, аг.Вишневец, ул.Школьная (Столбцовский р-н). Квартира расположена на 1 этаже 2-х этажного панельного дома (1986 г.). В доме (таунхаусе) имеется две квартиры. Общая площадь составляет 78.5м2, жилая состоит из трех изолированных комнат 41.1м2, просторная кухня 8.7м2, высота потолков 2.55м, санузел раздельный, 2 балкона. Сделан хороший свежий ремонт. Стеклопакеты ПВХ,...
375 ... показать телефон Риэлтерский Дом ОДО
г. Минск, ул. Беды Леонида д. 36
3 комнаты (этаж 6 / 19)
279 000 $  
Продается прекрасная 3-х комнатная квартира г.Минск, ул.Беды д.36. Жилое помещение расположено на 6 этаже 19 этажного каркасно-блочного дома 2016 года постройки. Общая площадь 90,4м2 (по СНБ 96.6м2). Жилая 69.4м2 состоит просторной гостиной 38.9м2 с кухонным оборудованием, большой спальни 16.1м2 и уютной детской 14.4м2. В квартире есть два санузла, две застекленных балкона и просторная...
375 ... показать телефон Риэлтерский Дом ОДО
г. Минск, пер. Полиграфический 1-й д. 4
4 комнаты (этаж 5 / 6)
169 900 $  
4-х комнатная квартира, г.Минск, 1-й Полиграфический пер.4.Двухуровневая. с отличным качественным ремонтом. Ламинированные полы, стеклопакеты ПВХ, металлическая входная дверь, межкомнатные двери массив.
375 ... показать телефон Риэлтерский Дом ОДО
Зарегистрируйтесь через ваш аккаунт в соцсетях:
или через нашу форму:
Войдите через ваш аккаунт в соцсетях:
или введите логин и пароль:
Регистрация
Еще можно просмотреть номера телефона.

Для снятия ограничения нужна всего лишь регистрация.

Так мы защищаем информацию клиентов от роботов

Выбери квартиру за 2.99 BYN

  • Мы собираем и обрабатываем для вас информацию с 10 сайтов
  • Звоним по всем объявлениям со всего интернета
  • Задаем уточняющие вопросы
  • Получаем дополнительную информацию

Все это, чтобы вам было проще сделать выбор

Стоимость к этой информации - от 2.99 рублей в месяц

Выбрать тариф
Получите больше просмотров Вашего объявления

Получите х10 показов! Закрепите объявление в ТОПе и выделите его цветом.

Стоимость услуги - 15 рублей за 30 дней или 22 рубля за 60 дней.

Как это работает.

Ваше объявление будет выделено цветом и будет закреплено в результатах поиска под спецпозициями.

Для оплаты через ЕРИП:

Перейдите в раздел "Интернет-магазины/сервисы" -> "H" -> "Hata.by" -> "Оплата по номеру заказа"

Введите один номер заказа - либо , и проведите оплату.

В течение 30 минут мы обработаем оплату в автоматическом режиме и реклама начнет работать.

Получите больше просмотров Вашего объявления

Закрепите объявление в начале первой страницы каталога. Объявление будет находится над простыми объявлениями. Стоимость услуги - 50р. за 2 недели.

Как это работает.

Объявление закрепляется под спецпозициями на первой странице каталога. Бесплатные объявления находятся внизу результатов поиска. Таким образом, посетители сайта увидят ваше объявление в первую очередь.

Для оплаты через ЕРИП:

Перейдите в раздел "Интернет-магазины/сервисы" -> "H" -> "Hata.by" -> "Оплата по номеру заказа"

Введите номер заказа - 0 и проведите оплату.

В течение 30 минут мы обработаем оплату в автоматическом режиме и реклама начнет работать.

Забронировать объект
Ваше имя:
Заезд:
Дата заезда:
Время заезда:
Количество гостей:
Отезд:
Дата отезда:
Время отезда:
Ваш вопрос владельцу объявления:
Больше не выводить для меня
Я хочу сообщить, что данное объявление более не актуально.
Удаление объявления
У Вас есть доступ к номеру +375296651052 куда мы можем прислать код для подтверждения?
Изменить объявление
У Вас есть доступ к номеру +375296651052 куда мы можем прислать код для подтверждения?
Подписаться на изменение цены объекта
Введите ваш email:
Распечатать объявление
Заказать фотографа

Профессиональные фотографии интерьера

Для того что бы отразить все преимущества вашего объекта недвижимости и привлечь больше внимания от потенциальных клиентов, вы можете заказать услуги профессионального фотографа у нас.

Готовые фотографии вы получаете на электронную почту в течении 2-х рабочих дней.

Снимки делаются на широкоугольный объектив.

Заказы принимаются только по городу Минску

Вид объекта/Цена

1-комнатная квартира 60 руб.

2-комнатная квартира 80 руб.

3-комнатная квартира 100 руб.

Другое - Договорная

Для заказа услуг фотографа и консультации свяжитесь с нашими менеджерами по тел.: +375-44-550-45-45

Отображение на карте
Сохраните поиск
Введите Ваш email:
Период рассылки:
Добавить в избранное
Добавить объект в:
Чтобы добавить объект в список, создайте список