Выберите улицу
Применить Сбросить
Выберите район
Применить
Выберите услуги
Выберите метро
Выберите микрорайон

Покупайте квартиру сегодня, чтобы не переплачивать завтра!

25 просмотров за все время, 4 с мобильных сегодня 1, неделя 5, месяц 25 Добавлено - 31.10.2025
119 109 $  
цена действительна ТОЛЬКО при ссылке на hata.by
Подписаться на изменение цены
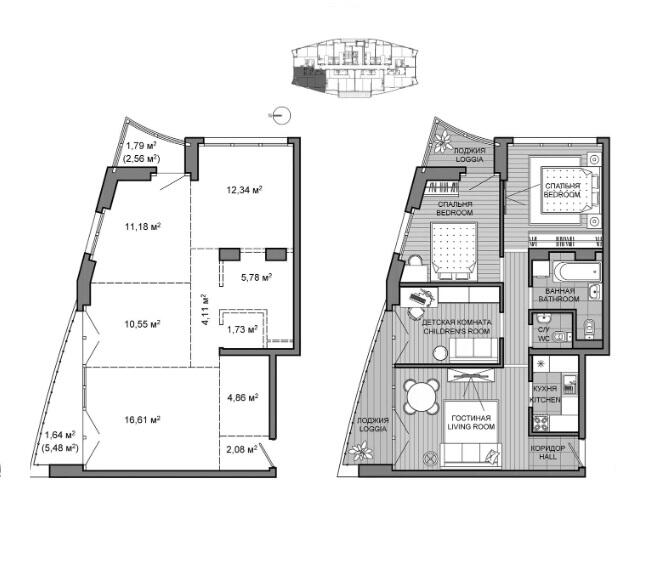
Площадь71.3 м2
Агентство недвижимости АН Этажи Юнайтед
Почта
zukgalina98@gmail.com
Телефон
+375 (29) 175-30-61
Описание
Квартира в готовом доме "Новый Орлеан" в центре ЖК Минск Мир! Акция «Скидка за быструю оплату – 3%», выгодная рассрочка на спец.условиях (действуют на дату размещения объявления, срок действия акции уточняйте!).Квартира на момент ввода дома в эксплуатацию является однокомнатной с возможностью ее разделения на жилые зоны по вашей задумке, а количество окон позволит организовать как минимум две жилые зоны и отдельную кухню!Покупая квартиру в доме "Новый Орлеан" Вы обеспечиваете себе комфортную жизнь или выгодную инвестицию в центре белорусской столицы.Дом сдан в 2021г., имеет 25 этажей, в которых представлены квартиры свободной планировки с панорамными окнами. Все уже сделали ремонт, остался только ваш!При входе всех встречает дизайнерское лобби, зона ожидания, букшеринг и, конечно же, много естественного света. Обслуживают жителей дома два лифта: грузовой и пассажирский панорамный.Дом расположен рядом с визитной карточкой ЖК историческим зданием старого аэропорта, до крупнейшего ТРЦ Avia Mall, строящегося Международного финансового центра 10-12 минут ходьбы, там же открылась станция метро "Аэродромная".Покупка возможна:100% оплата;- с помощью кредита;- на условиях рассрочки до 48 мес., первоначальный платеж от 10% (цена м2 в рассрочку регулируется специальным калькулятором).- выгодная рассрочка на спец.условиях.Квартира приобретается по цене застройщика без комиссий и переплат агентству!Наличие и стоимость октуальны на 31.10.2025г.Для покупки квартиры:- подберем выгодный кредит, рассрочку;- поможем продать вашу недвижимость.ООО «ЭТАЖИ юнайтед»УНП: 193673318Договор 53/1 от 05.01.2024г.Лицензия на оказание риэлтерских услуг №02240/460 МЮ РБ от 03.04.2023г.

Ознакомиться с политикой обработки персональных данных ООО «ЭТАЖИ юнайтед» можно здесьСовершая звонок, вы даете согласие на обработку персональных данных

Информация об объекте
Общая площадь 71.3 м²
Жилая площадь 45 м²
Площадь кухни 5 м²
Год постройки 2021
Ремонт без отделки
Балкон / Лоджия есть
Санузел два
Дата обновления 14.11.2025
Дата добавления 31.10.2025
Квартира на карте
Микрорайон Октябрьский район
г. Минск, ул. Савицкого д. 8
107 367 $  
Квартира дня! Дом 25.3 Манила, Квартира №6, ул. Михаила Савицкого, д. 8 Уникальное предложение! Продается светлая и удобная 3-комнатная квартира 56.7 м2 на 1-м этаже. · ✅ Высокие потолки 3.3 м — ощущение простора и свободы. · ✅ Удобная и продуманная планировка. · ✅ Раздельный санузел — максимум комфорта для всей семьи. · ✅ Первый этаж — идеально для семей с детьми, колясками и домашними...
г. Минск, ул. Левина д. 5
77 051 $  
Вы заслужили дом, в котором утро начинается с вида, а не со спешки.Дом «Марракеш» — место, где комфорт чувствуется в каждой детали. Представьте: вы просыпаетесь, открываете панорамное окно —и перед вами вид, от которого хочется вдохнуть глубже.Это не отпуск. Это ваш новый дом — в доме «Марракеш». Современный 16-этажный дом с продуманным дизайном и продуманным до мелочей пространством:...
г. Минск, пр. Мира д. 2
177 000 $  
-В одном из самых перспективных районов столицы - ЖК «Минск Мир», в доме «Сидней Люкс» продаётся современная и очень уютная евротрёшка 63,3 кв. м. с качественным ремонтом и продуманной планировкой. Юго-восточная сторона - это солнечное утро без жары днём. Хороший вид из окон во двор. -Функциональная планировка: большая кухня-гостиная. -В квартире сделан современный ремонт. Использованы только...
г. Минск, ул. Леонида Щемелёва д. 26
115 272 $  
КВАРТИРА ДНЯ! ЖК Минск Мир ️ Дом Мадрид Просторная готовая квартира площадью 73,5 м2, расположенная на 6 этаже. В ближайшее время рядом откроется современный 4-уровневый паркинг — удобно и безопасно для вашей семьи! Самая выгодная цена на сегодня с учётом скидки 3 %. Подробности по телефону. Возможна оплата и в кредит! Условия приобретения: Кредит от Беларусбанка до конца октября:...
г. Минск, ул. Казинца д. 66
63 000 $  
Современное место для комфортной жизни! Предлагаем вашему вниманию светлую однокомнатную квартиру расположенную по адресу: г.Минск, ул.Казинца, дом 66. Жилой дом построен в 1977 году, в 2020 году выполнен капитальный ремонт. Квартира располагается на 4 этаже пятиэтажного жилого дома.Общая площадь квартиры 34,59 м.кв. Квартира без балкона. В квартире расположены – жилая комната площадью 17,9...
г. Минск, ул. Игоря Лученка д. 24
125 000 $  
Квартира в современном и перспективном районе. Расположена на 15 этаже каркасно- блочного дома. Год постройки -2022. Площадь по СНБ- 73,2 кв.м.. Общая площадь -69,1 кв.м.. Квартира очень светлая, французкие окна выходят на две стороны, имеется застекленные балкон и лоджия. В доме 3 бесшумных скоростных лифта OTIS, один - панорамный. Современно и дизайнерски оформлено лобби с местом для...
г. Минск, ул. Братская д. 13
102 000 $  
Продажа квартиры г. Минск, ул. Брестская, 13 . 2023 год постройки. Дизайнерское оформление подъезда, 3 лифта (в т.ч. панорамный и грузовой). Окна на юг и запад. Рядом остановка общественного транспорта, возможность парковки машины, детский сад, магазины, банк, поликлиника, школа. Хорошее транспортное сообщение. Оборудованная детская площадка во дворе. Станция метро «Аэродромная», универсам...
г. Минск, ул. Игоря Лученка д. 4
143 702 $  
Пентхаус в доме «Сад Эрмитаж», в центре квартала «Хэппи Плэнет» . В доме всего 77 квартир. В квартире есть антресольный этаж. Панорамные окна всех квартир жилого дома обращены на парк. Стильная архитектура, эксклюзивное дизайнерское лобби. Уникальные условия покупки! Квартира продаётся по цене застройщика без комиссии! Наличие и стоимость актуальны на 14.11.2025 г. 30 дней бесплатной...
г. Минск, ул. Игоря Лученка д. 8
113 993 $  
Квартиры напрямую от застройщика, по ценам застройщика, без комиссий агентству Б Е С П Л А Т Н О консультации и помощь в покупке! Квартиру можно приобрести в кредит (до 20 лет в рублях) или в рассрочку до 48 (без справок и поручителей). Б Е С П Л А Т Н О проконсультирую и помогу выбрать наиболее выгодный вариант! Помогу выбрать нужную Вам планировку и лучший вид из окна в любом доме Минск-Мир!...
г. Минск, ул. Брилевская д. 54
64 935 $  
ВНИМАНИЕ! Продажа напрямую от застройщика, без комиссий агентству! - Б Е С П Л А Т Н О и профессионально поможем подобрать самый лучший для Вас вид из окна, вариант планировки и расположения дома! - Б Е С П Л А Т Н О полное сопровождение сделки до момента покупки квартиры! - Б Е З комиссий агентству (работаем по партнерской программе со всеми застройщиками Минска и Минской области)!...
г. Минск, ул. Игоря Лученка д. 4
152 655 $  
Жилой дом «Сад Эрмитаж» в центре квартала «Хэппи Плэнет». 77 квартир, стильная архитектура, высота потолков более 5-ти метров, эксклюзивное дизайнерское лобби. Панорамные окна всех квартир жилого дома обращены на парк. Этот квартал – «зелёное сердце» проекта «Минск-Мир». Панорамные окна высотой до 4,4 м и шириной 3 м наполняют квартиры светом и открывают захватывающие виды на зелёные зоны и...
г. Минск, ул. Леонида Щемелёва д. 16
114 128 $  
Продажа квартир напрямую от застройщика, без комиссий агентству! Б Е С П Л А Т Н О помощь в подборе и оформлении квартиры! самые привлекательные цены выгодный кредит (от 6% до 20 лет) рассрочка ЖК " Минск Мир". Квартал "Южная Америка", дом «Панама-Сити». Описание дома: 19-этажный монолитно-каркасный дом Квартиры свободной планировки с возможностью объединения Высота...
г. Минск, ул. Брилевская д. 54
64 935 $  
ВНИМАНИЕ! Продажа напрямую от застройщика, без комиссий агентству! - Б Е С П Л А Т Н О и профессионально поможем подобрать самый лучший для Вас вид из окна, вариант планировки и расположения дома! - Б Е С П Л А Т Н О полное сопровождение сделки до момента покупки квартиры! - Б Е З комиссий агентству (работаем по партнерской программе со всеми застройщиками Минска и Минской области)!...
г. Минск, ул. Игоря Лученка д. 4
169 765 $  
Дом «Сад Эрмитаж», в центре квартала «Хэппи Плэнет» . Всего 77 квартир, стильная архитектура, высота потолков более 5-ти метров, эксклюзивное дизайнерское лобби. Панорамные окна всех квартир жилого дома обращены на парк. Этот квартал – «зелёное сердце» проекта «Минск-Мир». Панорамные окна высотой до 4,4 м и шириной 3 м наполняют квартиры светом и открывают захватывающие виды на зелёные зоны...
г. Минск, ул. Игоря Лученка д. 4
144 293 $  
Квартира в доме «Сад Эрмитаж», в центре квартала «Хэппи Плэнет» . В доме всего 77 квартир. В квартире есть антресольный этаж. Панорамные окна всех квартир жилого дома обращены на парк. Стильная архитектура, эксклюзивное дизайнерское лобби. Уникальные условия покупки! Квартира продаётся по цене застройщика без комиссии! Наличие и стоимость актуальны на 14.11.2025 г. 30 дней бесплатной...
г. Минск, ул. Леонида Щемелёва д. 16
113 962 $  
Продажа квартир напрямую от застройщика, без комиссий агентству! Б Е С П Л А Т Н О помощь в подборе и оформлении квартиры! самые привлекательные цены выгодный кредит (от 6% до 20 лет) рассрочка ЖК " Минск Мир". Квартал "Южная Америка", дом «Панама-Сити». Описание дома: 19-этажный монолитно-каркасный дом Квартиры свободной планировки с возможностью объединения Высота...
г. Минск д. 1
108 042 $  
Продажа квартир напрямую от застройщика, по цене застройщика + СКИДКИ! Все консультации и помощь в покупке БЕСПЛАТНЫЕ! Поможем выбрать нужную Вам планировку, вид из окна! Поможем решить вопросы по кредитованию, а также поможем продать Вашу недвижимость! Дом «Бангкок» в квартале «Азия» комплекса Минск-Мир! Дом СДАН! Новостройка полностью готова! Покупайте квартиру и начинайте ремонт сразу же...
г. Минск, ул. Леонида Щемелёва д. 16
114 128 $  
Продажа квартир напрямую от застройщика, без комиссий агентству! Б Е С П Л А Т Н О помощь в подборе и оформлении квартиры! самые привлекательные цены выгодный кредит (от 6% до 20 лет) рассрочка ЖК " Минск Мир". Квартал "Южная Америка", дом «Панама-Сити». Описание дома: 19-этажный монолитно-каркасный дом Квартиры свободной планировки с возможностью объединения Высота...
г. Минск, ул. Брилевская д. 54
83 014 $  
Наличные! Кредит! Рассрочка! 1. Услуги по подбору новостроек - бесплатные!!! 2. Напрямую от застройщика, Вы покупаете по цене застройщика и заключаете договор только с застройщиком! 3. Выполняем функцию отдела продаж застройщика Планировки и цены актуальны на 14.11.2025 ООО "Этажи юнайтед" УНП: 193673318 Договор №52/1 от 05.01.24 по 03.01.2026 Лицензия на оказание риэлтерских услуг...
г. Минск, ул. Пензенская д. 31
120 000 $  
Заголовок: Двухкомнатная Сталинка у самого метро! В двух минутах ходьбы до метро, продается двухкомнатная квартира! Квартира расположена вблизи станции метро Ковальская Слобода. В пешей доступности вся инфраструктура: магазины, детские сады, школы, банки, рынки. Отличное транспортное сообщение по всем направлениям. Квартира просторная. Большие комнаты, высокие потолки. Выполнен частичный...
г. Минск, ул. Леонида Щемелёва д. 16
114 461 $  
Продажа квартир напрямую от застройщика, без комиссий агентству! Б Е С П Л А Т Н О помощь в подборе и оформлении квартиры! самые привлекательные цены выгодный кредит (от 6% до 20 лет) рассрочка ЖК " Минск Мир". Квартал "Южная Америка", дом «Панама-Сити». Описание дома: 19-этажный монолитно-каркасный дом Квартиры свободной планировки с возможностью объединения Высота...
г. Минск д. 1
108 042 $  
Продажа квартир напрямую от застройщика, по цене застройщика + СКИДКИ! Все консультации и помощь в покупке БЕСПЛАТНЫЕ! Поможем выбрать нужную Вам планировку, вид из окна! Поможем решить вопросы по кредитованию, а также поможем продать Вашу недвижимость! Дом «Бангкок» в квартале «Азия» комплекса Минск-Мир! Дом СДАН! Новостройка полностью готова! Покупайте квартиру и начинайте ремонт сразу же...
г. Минск, ул. Леонида Щемелёва д. 16
113 464 $  
Продажа квартир напрямую от застройщика, без комиссий агентству! Б Е С П Л А Т Н О помощь в подборе и оформлении квартиры! самые привлекательные цены выгодный кредит (от 6% до 20 лет) рассрочка ЖК " Минск Мир". Квартал "Южная Америка", дом «Панама-Сити». Описание дома: 19-этажный монолитно-каркасный дом Квартиры свободной планировки с возможностью объединения Высота...
г. Минск, пр. Мира д. 2
111 515 $  
ДОМ «Сидней Люкс», квартал «Чемпионов», ЖК «Минск-Мир». Возможна покупка в КРЕДИТ! Звоните узнать подробнее! Все консультации и помощь в покупке БЕСПЛАТНЫЕ! Квалифицированная помощь в подборе лучшей квартиры и планировки! Поможем решить вопросы по кредитованию, а также поможем продать Вашу недвижимость! Дом «Сидней Люкс» в квартале «Чемпионов» комплекса Минск-Мир! Новостройка полностью готова!...
г. Минск, ул. Савицкого д. 1
97 539 $  
Квартиры напрямую от застройщика, по ценам застройщика, без комиссий агентству Б Е С П Л А Т Н О консультации и помощь в покупке! Квартиру можно приобрести в кредит (до 20 лет в рублях) или в рассрочку до 48 (без справок и поручителей). Б Е С П Л А Т Н О проконсультирую и помогу выбрать наиболее выгодный вариант! Помогу выбрать нужную Вам планировку и лучший вид из окна в любом доме Минск-Мир!...
г. Минск, ул. Авакяна д. 32
90 000 $  
Уютная квартира в центре – идеальный выбор! - Площадь квартиры по СНБ 37,6 м2. - В квартире выполнен современный ремонт из качественных материалов. - Оборудованная кухня со встроенной мебелью и техникой. - Изолированная уютная спальня. - Раздельный сан. узел с качественной современной сантехникой. - Полы – ламинат и плитка. - 2 утепленные и застекленные лоджии с теплыми полами. - Бойлер. - К...
г. Минск, ул. Игоря Лученка д. 8
106 093 $  
Квартиры напрямую от застройщика, по ценам застройщика, без комиссий агентству Б Е С П Л А Т Н О консультации и помощь в покупке! Квартиру можно приобрести в кредит (до 20 лет в рублях) или в рассрочку до 48 (без справок и поручителей). Б Е С П Л А Т Н О проконсультирую и помогу выбрать наиболее выгодный вариант! Помогу выбрать нужную Вам планировку и лучший вид из окна в любом доме Минск-Мир!...
г. Минск, ул. Игоря Лученка д. 4
152 081 $  
Жилой 8 -этажный дом «Сад Эрмитаж» в центре квартала «Хэппи Плэнет». 77 квартир, стильная архитектура, высота потолков более 5-ти метров, эксклюзивное дизайнерское лобби. Панорамные окна всех квартир жилого дома обращены на парк. Этот квартал – «зелёное сердце» проекта «Минск-Мир». Панорамные окна высотой до 4,4 м и шириной 3 м наполняют квартиры светом и открывают захватывающие виды на...
г. Минск, ул. Савицкого д. 1
97 539 $  
Квартиры напрямую от застройщика, по ценам застройщика, без комиссий агентству Б Е С П Л А Т Н О консультации и помощь в покупке! Квартиру можно приобрести в кредит (до 20 лет в рублях) или в рассрочку до 48 (без справок и поручителей). Б Е С П Л А Т Н О проконсультирую и помогу выбрать наиболее выгодный вариант! Помогу выбрать нужную Вам планировку и лучший вид из окна в любом доме Минск-Мир!...
г. Минск, ул. Леонида Щемелёва д. 16
114 128 $  
Продажа квартир напрямую от застройщика, без комиссий агентству! Б Е С П Л А Т Н О помощь в подборе и оформлении квартиры! самые привлекательные цены выгодный кредит (от 6% до 20 лет) рассрочка ЖК " Минск Мир". Квартал "Южная Америка", дом «Панама-Сити». Описание дома: 19-этажный монолитно-каркасный дом Квартиры свободной планировки с возможностью объединения Высота...
г. Минск, ул. Игоря Лученка д. 4
143 702 $  
Квартира в доме «Сад Эрмитаж», в центре квартала «Хэппи Плэнет» . В доме всего 77 квартир. В квартире есть антресольный этаж. Панорамные окна всех квартир жилого дома обращены на парк. Стильная архитектура, эксклюзивное дизайнерское лобби. Уникальные условия покупки! Квартира продаётся по цене застройщика без комиссии! Наличие и стоимость актуальны на 14.11.2025 г. 30 дней бесплатной...
г. Минск, ул. Игоря Лученка д. 4
170 594 $  
Дом «Сад Эрмитаж», в центре квартала «Хэппи Плэнет» . Всего 77 квартир, стильная архитектура, высота потолков более 5-ти метров, эксклюзивное дизайнерское лобби. Панорамные окна всех квартир жилого дома обращены на парк. Этот квартал – «зелёное сердце» проекта «Минск-Мир». Панорамные окна высотой до 4,4 м и шириной 3 м наполняют квартиры светом и открывают захватывающие виды на зелёные зоны...
г. Минск, пр. Мира д. 2
119 199 $  
ДОМ «Сидней Люкс», квартал «Чемпионов», ЖК «Минск-Мир». Возможна покупка в КРЕДИТ! Звоните узнать подробнее! Все консультации и помощь в покупке БЕСПЛАТНЫЕ! Квалифицированная помощь в подборе лучшей квартиры и планировки! Поможем решить вопросы по кредитованию, а также поможем продать Вашу недвижимость! Дом «Сидней Люкс» в квартале «Чемпионов» комплекса Минск-Мир! Новостройка полностью готова!...
г. Минск, ул. Леонида Щемелёва д. 16
113 962 $  
Продажа квартир напрямую от застройщика, без комиссий агентству! Б Е С П Л А Т Н О помощь в подборе и оформлении квартиры! самые привлекательные цены выгодный кредит (от 6% до 20 лет) рассрочка ЖК " Минск Мир". Квартал "Южная Америка", дом «Панама-Сити». Описание дома: 19-этажный монолитно-каркасный дом Квартиры свободной планировки с возможностью объединения Высота...
г. Минск, ул. Брилевская д. 54
64 935 $  
Работаем напрямую от застройщика по партнерской программе (без комиссий)!!! Расчет рассрочки. Выгодная рассрочка! Акция, скидки 3%. Цены и наличие актуальны на 14.11.2025. Стать владельцем недвижимости в Minsk World можно: За собственные средства. В рассрочку без справок и поручителей (только паспорт!). Все дома в комплексе каркасно-блочные, от 10 до 25 этажей. Скоростные бесшумные лифты...
г. Минск, ул. Леонида Щемелёва д. 16
111 803 $  
Продажа квартир напрямую от застройщика, без комиссий агентству! Б Е С П Л А Т Н О помощь в подборе и оформлении квартиры! самые привлекательные цены выгодный кредит (от 6% до 20 лет) рассрочка ЖК " Минск Мир". Квартал "Южная Америка", дом «Панама-Сити». Описание дома: 19-этажный монолитно-каркасный дом Квартиры свободной планировки с возможностью объединения Высота...
г. Минск, ул. Брилевская д. 31
112 341 $  
Квартиры напрямую от застройщика, по ценам застройщика, без комиссий агентству Б Е С П Л А Т Н О консультации и помощь в покупке! Квартиру можно приобрести в кредит (до 20 лет в рублях) или в рассрочку до 48 (без справок и поручителей). Б Е С П Л А Т Н О проконсультирую и помогу выбрать наиболее выгодный вариант! Помогу выбрать нужную Вам планировку и лучший вид из окна в любом доме Минск-Мир!...
г. Минск, ул. Леонида Щемелёва д. 16
113 962 $  
Продажа квартир напрямую от застройщика, без комиссий агентству! Б Е С П Л А Т Н О помощь в подборе и оформлении квартиры! самые привлекательные цены выгодный кредит (от 6% до 20 лет) рассрочка ЖК " Минск Мир". Квартал "Южная Америка", дом «Панама-Сити». Описание дома: 19-этажный монолитно-каркасный дом Квартиры свободной планировки с возможностью объединения Высота...
г. Минск, ул. Брилевская д. 54
86 916 $  
Наличные! Кредит! Рассрочка! 1. Услуги по подбору новостроек - бесплатные!!! 2. Напрямую от застройщика, Вы покупаете по цене застройщика и заключаете договор только с застройщиком! 3. Выполняем функцию отдела продаж застройщика Планировки и цены актуальны на 14.11.2025 ООО "Этажи юнайтед" УНП: 193673318 Договор №52/1 от 05.01.24 по 03.01.2026 Лицензия на оказание риэлтерских услуг...
г. Минск, пр. Мира д. 2
119 883 $  
ДОМ «Сидней Люкс», квартал «Чемпионов», ЖК «Минск-Мир». Возможна покупка в КРЕДИТ! Звоните узнать подробнее! Все консультации и помощь в покупке БЕСПЛАТНЫЕ! Квалифицированная помощь в подборе лучшей квартиры и планировки! Поможем решить вопросы по кредитованию, а также поможем продать Вашу недвижимость! Дом «Сидней Люкс» в квартале «Чемпионов» комплекса Минск-Мир! Новостройка полностью готова!...
г. Минск, ул. Брилевская д. 31
112 341 $  
Квартиры напрямую от застройщика, по ценам застройщика, без комиссий агентству Б Е С П Л А Т Н О консультации и помощь в покупке! Квартиру можно приобрести в кредит (до 20 лет в рублях) или в рассрочку до 48 (без справок и поручителей). Б Е С П Л А Т Н О проконсультирую и помогу выбрать наиболее выгодный вариант! Помогу выбрать нужную Вам планировку и лучший вид из окна в любом доме Минск-Мир!...
г. Минск, ул. Савицкого д. 3
141 367 $  
Работаем напрямую от застройщика по партнерской программе (без комиссий)!!! Выгодное предложение!!! Звоните за более подробной информацией! Стоимость актуальна на дату размещения 14.11.2025. Подробную актуальную информацию уточняйте по телефону. Успейте купить квартиру в доме «Александрия» в жилом квартале «Африка». Возможность забронировать квартиру на месяц при продаже своей квартиры через АН...
375 ... показать телефон Спиридонов Дмитрий
г. Минск, ул. Леонида Щемелёва д. 16
111 803 $  
Продажа квартир напрямую от застройщика, без комиссий агентству! Б Е С П Л А Т Н О помощь в подборе и оформлении квартиры! самые привлекательные цены выгодный кредит (от 6% до 20 лет) рассрочка ЖК " Минск Мир". Квартал "Южная Америка", дом «Панама-Сити». Описание дома: 19-этажный монолитно-каркасный дом Квартиры свободной планировки с возможностью объединения Высота...
г. Минск, ул. Игоря Лученка д. 4
143 998 $  
Квартира в доме «Сад Эрмитаж», в центре квартала «Хэппи Плэнет» . В доме всего 77 квартир. В квартире есть антресольный этаж. Панорамные окна всех квартир жилого дома обращены на парк. Стильная архитектура, эксклюзивное дизайнерское лобби. Уникальные условия покупки! Квартира продаётся по цене застройщика без комиссии! Наличие и стоимость актуальны на 14.11.2025 г. 30 дней бесплатной...
г. Минск, ул. Леонида Щемелёва д. 16
114 461 $  
Продажа квартир напрямую от застройщика, без комиссий агентству! Б Е С П Л А Т Н О помощь в подборе и оформлении квартиры! самые привлекательные цены выгодный кредит (от 6% до 20 лет) рассрочка ЖК " Минск Мир". Квартал "Южная Америка", дом «Панама-Сити». Описание дома: 19-этажный монолитно-каркасный дом Квартиры свободной планировки с возможностью объединения Высота...
г. Минск, ул. Николы Теслы д. 4
170 708 $  
Работаем напрямую от застройщика по партнерской программе (без комиссий)!!! Выгодное предложение!!! Звоните за более подробной информацией! Стоимость актуальна на дату размещения 14.11.2025. Подробную актуальную информацию уточняйте по телефону. Успейте купить квартиру в доме «Найроби» в жилом квартале «Африка». Возможность забронировать квартиру на месяц при продаже своей квартиры через АН...
375 ... показать телефон Спиридонов Дмитрий
г. Минск, ул. Брилевская д. 37
108 314 $  
Работаем напрямую от застройщика по партнерской программе (без комиссий)!!! Выгодное предложение!!! Звоните за более подробной информацией! Стоимость актуальна на дату размещения 13.11.2025. Подробную актуальную информацию уточняйте по телефону. Успейте купить квартиру в доме «Мумбаи» в жилом квартале «Азия». Возможность забронировать квартиру на месяц при продаже своей квартиры через АН «Этажи...
375 ... показать телефон Спиридонов Дмитрий
г. Минск, ул. Игоря Лученка д. 9
95 451 $  
Квартиры напрямую от застройщика, по ценам застройщика, без комиссий агентству Б Е С П Л А Т Н О консультации и помощь в покупке! Квартиру можно приобрести в кредит (до 20 лет в рублях) или в рассрочку до 48 (без справок и поручителей). Б Е С П Л А Т Н О проконсультирую и помогу выбрать наиболее выгодный вариант! Помогу выбрать нужную Вам планировку и лучший вид из окна в любом доме Минск-Мир!...
г. Минск, ул. Игоря Лученка д. 4
151 794 $  
Дом «Сад Эрмитаж», в центре квартала «Хэппи Плэнет» . Всего 77 квартир, стильная архитектура, высота потолков более 5-ти метров, эксклюзивное дизайнерское лобби. Панорамные окна всех квартир жилого дома обращены на парк. Этот квартал – «зелёное сердце» проекта «Минск-Мир». Панорамные окна высотой до 4,4 м и шириной 3 м наполняют квартиры светом и открывают захватывающие виды на зелёные зоны...
г. Минск, ул. Левина д. 2
103 663 $  
Работаем напрямую от застройщика по партнерской программе (без комиссий)!!! Выгодное предложение!!! Звоните за более подробной информацией! Стоимость актуальна на дату размещения 13.11.2025. Подробную актуальную информацию уточняйте по телефону. Успейте купить квартиру в доме «Марракеш» в жилом квартале «Африка». Возможность забронировать квартиру на месяц при продаже своей квартиры через АН...
375 ... показать телефон Спиридонов Дмитрий
Минская обл. п. Колодищи
113 724 $  
НАПРЯМУЮ от ЗАСТРОЙЩИКА !!! ПРОДАЕТСЯ 3к-КВАРТИРА - НОВОСТРОЙКА в ЖК "Зеленая гавань"!!! Квартира в Зеленой гавани – это идеальный выбор для тех, кто ценит баланс между природой и городской жизнью. Это не просто жилье, а пространство для вдохновения и отдыха. С 1 по 30 ноября действует эксклюзивная ставка кредитования 13,75 % на покупку квартир в новостройках при оформлении кредита...
г. Минск, ул. Мстиславца д. 18
185 040 $  
Квартира в центре города с красивыми видами и парковой зоной — идеальное место для жизни!Тихий и спокойный район в центре города — вы будете в шаговой доступности от всех важных объектов инфраструктуры, но при этом сможете наслаждаться тишиной и уединением.Развита инфраструктура комплекса: детские площадки, места для прогулок с питомцами, парковочные места для жителей комплекса. ООО «ЭТАЖИ...
г. Минск, ул. Игоря Лученка д. 4
143 702 $  
Пентхаус в доме «Сад Эрмитаж», в центре квартала «Хэппи Плэнет» . В доме всего 77 квартир. В квартире есть антресольный этаж. Панорамные окна всех квартир жилого дома обращены на парк. Стильная архитектура, эксклюзивное дизайнерское лобби. Уникальные условия покупки! Квартира продаётся по цене застройщика без комиссии! Наличие и стоимость актуальны на 14.11.2025 г. 30 дней бесплатной...
г. Минск, ул. Игоря Лученка д. 8
113 993 $  
Квартиры напрямую от застройщика, по ценам застройщика, без комиссий агентству Б Е С П Л А Т Н О консультации и помощь в покупке! Квартиру можно приобрести в кредит (до 20 лет в рублях) или в рассрочку до 48 (без справок и поручителей). Б Е С П Л А Т Н О проконсультирую и помогу выбрать наиболее выгодный вариант! Помогу выбрать нужную Вам планировку и лучший вид из окна в любом доме Минск-Мир!...
г. Минск, ул. Брилевская д. 54
64 935 $  
ВНИМАНИЕ! Продажа напрямую от застройщика, без комиссий агентству! - Б Е С П Л А Т Н О и профессионально поможем подобрать самый лучший для Вас вид из окна, вариант планировки и расположения дома! - Б Е С П Л А Т Н О полное сопровождение сделки до момента покупки квартиры! - Б Е З комиссий агентству (работаем по партнерской программе со всеми застройщиками Минска и Минской области)!...
г. Минск, ул. Игоря Лученка д. 4
152 655 $  
Жилой дом «Сад Эрмитаж» в центре квартала «Хэппи Плэнет». 77 квартир, стильная архитектура, высота потолков более 5-ти метров, эксклюзивное дизайнерское лобби. Панорамные окна всех квартир жилого дома обращены на парк. Этот квартал – «зелёное сердце» проекта «Минск-Мир». Панорамные окна высотой до 4,4 м и шириной 3 м наполняют квартиры светом и открывают захватывающие виды на зелёные зоны и...
г. Минск, ул. Мстиславца д. 18
163 230 $  
Квартиры в элитном ЖК «Маяк Минска»! Успейте купить! Квартир осталось мало! Видовые квартиры на Национальную библиотеку, на набережную Свислочи и на бульвар Пикассо! Квартиры с террасами, балконами или лоджиями! Поможем выбрать лучшую квартиру! Покупка от застройщика, БЕЗ комиссий агентству! Б Е С П Л А Т Н О проконсультируем, организуем просмотр квартир и поможем выбрать лучшую квартиру по...
г. Минск, ул. Леонида Щемелёва д. 16
114 128 $  
Продажа квартир напрямую от застройщика, без комиссий агентству! Б Е С П Л А Т Н О помощь в подборе и оформлении квартиры! самые привлекательные цены выгодный кредит (от 6% до 20 лет) рассрочка ЖК " Минск Мир". Квартал "Южная Америка", дом «Панама-Сити». Описание дома: 19-этажный монолитно-каркасный дом Квартиры свободной планировки с возможностью объединения Высота...
г. Минск, ул. Брилевская д. 54
64 935 $  
ВНИМАНИЕ! Продажа напрямую от застройщика, без комиссий агентству! - Б Е С П Л А Т Н О и профессионально поможем подобрать самый лучший для Вас вид из окна, вариант планировки и расположения дома! - Б Е С П Л А Т Н О полное сопровождение сделки до момента покупки квартиры! - Б Е З комиссий агентству (работаем по партнерской программе со всеми застройщиками Минска и Минской области)!...
г. Минск, ул. К. Туровского д. 26
162 290 $  
Уникальное предложение!В квартире выполнена частичная черновая отделка, окна смотрят на запад — видна Национальная библиотека. Возможна покупка в рассрочку *без удорожания на 1 год со взносом от 50%*или приобретение в кредит до 20 лет:Беларусбанка под 13,75% годовых Планировки актуальны на 14.11.2025.Договор 1253/1 от 05.01.2024Лицензия на оказание риэлтерских услуг №02240/460 МЮ РБ от...
г. Минск, ул. Игоря Лученка д. 4
169 765 $  
Дом «Сад Эрмитаж», в центре квартала «Хэппи Плэнет» . Всего 77 квартир, стильная архитектура, высота потолков более 5-ти метров, эксклюзивное дизайнерское лобби. Панорамные окна всех квартир жилого дома обращены на парк. Этот квартал – «зелёное сердце» проекта «Минск-Мир». Панорамные окна высотой до 4,4 м и шириной 3 м наполняют квартиры светом и открывают захватывающие виды на зелёные зоны...
Зарегистрируйтесь через ваш аккаунт в соцсетях:
или через нашу форму:
Войдите через ваш аккаунт в соцсетях:
или введите логин и пароль:
Регистрация
Еще можно просмотреть номера телефона.

Для снятия ограничения нужна всего лишь регистрация.

Так мы защищаем информацию клиентов от роботов

Выбери квартиру за 2.99 BYN

  • Мы собираем и обрабатываем для вас информацию с 10 сайтов
  • Звоним по всем объявлениям со всего интернета
  • Задаем уточняющие вопросы
  • Получаем дополнительную информацию

Все это, чтобы вам было проще сделать выбор

Стоимость к этой информации - от 2.99 рублей в месяц

Выбрать тариф
Получите больше просмотров Вашего объявления

Получите х10 показов! Закрепите объявление в ТОПе и выделите его цветом.

Стоимость услуги - 15 рублей за 30 дней или 22 рубля за 60 дней.

Как это работает.

Ваше объявление будет выделено цветом и будет закреплено в результатах поиска под спецпозициями.

Для оплаты через ЕРИП:

Перейдите в раздел "Интернет-магазины/сервисы" -> "H" -> "Hata.by" -> "Оплата по номеру заказа"

Введите один номер заказа - либо , и проведите оплату.

В течение 30 минут мы обработаем оплату в автоматическом режиме и реклама начнет работать.

Получите больше просмотров Вашего объявления

Закрепите объявление в начале первой страницы каталога. Объявление будет находится над простыми объявлениями. Стоимость услуги - 50р. за 2 недели.

Как это работает.

Объявление закрепляется под спецпозициями на первой странице каталога. Бесплатные объявления находятся внизу результатов поиска. Таким образом, посетители сайта увидят ваше объявление в первую очередь.

Для оплаты через ЕРИП:

Перейдите в раздел "Интернет-магазины/сервисы" -> "H" -> "Hata.by" -> "Оплата по номеру заказа"

Введите номер заказа - 0 и проведите оплату.

В течение 30 минут мы обработаем оплату в автоматическом режиме и реклама начнет работать.

Забронировать объект
Ваше имя:
Заезд:
Дата заезда:
Время заезда:
Количество гостей:
Отезд:
Дата отезда:
Время отезда:
Ваш вопрос владельцу объявления:
Больше не выводить для меня
Я хочу сообщить, что данное объявление более не актуально.
Удаление объявления
У Вас есть доступ к номеру +375291753061 куда мы можем прислать код для подтверждения?
Изменить объявление
У Вас есть доступ к номеру +375291753061 куда мы можем прислать код для подтверждения?
Подписаться на изменение цены объекта
Введите ваш email:
Распечатать объявление
Заказать фотографа

Профессиональные фотографии интерьера

Для того что бы отразить все преимущества вашего объекта недвижимости и привлечь больше внимания от потенциальных клиентов, вы можете заказать услуги профессионального фотографа у нас.

Готовые фотографии вы получаете на электронную почту в течении 2-х рабочих дней.

Снимки делаются на широкоугольный объектив.

Заказы принимаются только по городу Минску

Вид объекта/Цена

1-комнатная квартира 60 руб.

2-комнатная квартира 80 руб.

3-комнатная квартира 100 руб.

Другое - Договорная

Для заказа услуг фотографа и консультации свяжитесь с нашими менеджерами по тел.: +375-44-550-45-45

Отображение на карте
Сохраните поиск
Введите Ваш email:
Период рассылки:
Добавить в избранное
Добавить объект в:
Чтобы добавить объект в список, создайте список