Выберите улицу
Применить Сбросить
Выберите район
Применить
Выберите услуги
Выберите метро
Выберите микрорайон

Покупайте квартиру сегодня, чтобы не переплачивать завтра!

21 просмотров за все время, 5 с мобильных сегодня 0, неделя 13, месяц 21 Добавлено - 31.10.2025
117 858 $  
цена действительна ТОЛЬКО при ссылке на hata.by
Подписаться на изменение цены
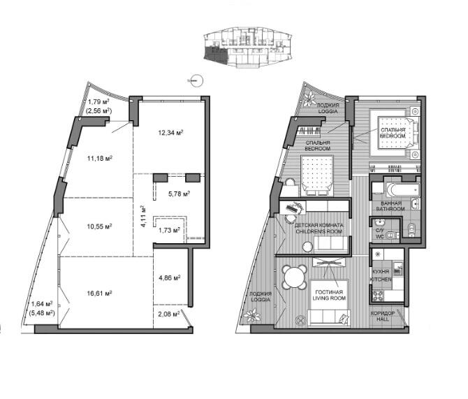
Площадь71.3 м2
Агентство недвижимости АН Этажи Юнайтед
Почта
zukgalina98@gmail.com
Телефон
+375 (29) 175-30-61
Описание
Квартира в готовом доме "Новый Орлеан" в центре ЖК Минск Мир! Акция «Скидка за быструю оплату – 3%», выгодная рассрочка на спец.условиях (действуют на дату размещения объявления, срок действия акции уточняйте!).Квартира на момент ввода дома в эксплуатацию является однокомнатной с возможностью ее разделения на жилые зоны по вашей задумке, а количество окон позволит организовать как минимум две жилые зоны и отдельную кухню!Покупая квартиру в доме "Новый Орлеан" Вы обеспечиваете себе комфортную жизнь или выгодную инвестицию в центре белорусской столицы.Дом сдан в 2021г., имеет 25 этажей, в которых представлены квартиры свободной планировки с панорамными окнами. Все уже сделали ремонт, остался только ваш!При входе всех встречает дизайнерское лобби, зона ожидания, букшеринг и, конечно же, много естественного света. Обслуживают жителей дома два лифта: грузовой и пассажирский панорамный.Дом расположен рядом с визитной карточкой ЖК историческим зданием старого аэропорта, до крупнейшего ТРЦ Avia Mall, строящегося Международного финансового центра 10-12 минут ходьбы, там же открылась станция метро "Аэродромная".Покупка возможна:100% оплата;- с помощью кредита;- на условиях рассрочки до 48 мес., первоначальный платеж от 10% (цена м2 в рассрочку регулируется специальным калькулятором).- выгодная рассрочка на спец.условиях.Квартира приобретается по цене застройщика без комиссий и переплат агентству!Наличие и стоимость октуальны на 31.10.2025г.Для покупки квартиры:- подберем выгодный кредит, рассрочку;- поможем продать вашу недвижимость.ООО «ЭТАЖИ юнайтед»УНП: 193673318Договор 53/1 от 05.01.2024г.Лицензия на оказание риэлтерских услуг №02240/460 МЮ РБ от 03.04.2023г.

Ознакомиться с политикой обработки персональных данных ООО «ЭТАЖИ юнайтед» можно здесьСовершая звонок, вы даете согласие на обработку персональных данных

Информация об объекте
Общая площадь 71.3 м²
Жилая площадь 45 м²
Площадь кухни 5 м²
Год постройки 2021
Ремонт без отделки
Балкон / Лоджия есть
Санузел два
Дата обновления 06.11.2025
Дата добавления 31.10.2025
Квартира на карте
Микрорайон Октябрьский район
г. Минск, ул. Савицкого д. 8
106 090 $  
Квартира дня! Дом 25.3 Манила, Квартира №6, ул. Михаила Савицкого, д. 8 Уникальное предложение! Продается светлая и удобная 3-комнатная квартира 56.7 м2 на 1-м этаже. · ✅ Высокие потолки 3.3 м — ощущение простора и свободы. · ✅ Удобная и продуманная планировка. · ✅ Раздельный санузел — максимум комфорта для всей семьи. · ✅ Первый этаж — идеально для семей с детьми, колясками и домашними...
г. Минск, ул. Казинца д. 66
63 500 $  
Современное место для комфортной жизни! Предлагаем вашему вниманию светлую однокомнатную квартиру расположенную по адресу: г.Минск, ул.Казинца, дом 66. Жилой дом построен в 1977 году, в 2020 году выполнен капитальный ремонт. Квартира располагается на 4 этаже пятиэтажного жилого дома.Общая площадь квартиры 34,59 м.кв. Квартира без балкона. В квартире расположены – жилая комната площадью 17,9...
г. Минск, ул. Леонида Щемелёва д. 26
113 901 $  
КВАРТИРА ДНЯ! ЖК Минск Мир ️ Дом Мадрид Просторная готовая квартира площадью 73,5 м2, расположенная на 6 этаже. В ближайшее время рядом откроется современный 4-уровневый паркинг — удобно и безопасно для вашей семьи! Самая выгодная цена на сегодня с учётом скидки 3 %. Подробности по телефону. Возможна оплата и в кредит! Условия приобретения: Кредит от Беларусбанка до конца октября:...
г. Минск, пр. Мира д. 2
177 000 $  
-В одном из самых перспективных районов столицы - ЖК «Минск Мир», в доме «Сидней Люкс» продаётся современная и очень уютная евротрёшка 63,3 кв. м. с качественным ремонтом и продуманной планировкой. Юго-восточная сторона - это солнечное утро без жары днём. Хороший вид из окон во двор. -Функциональная планировка: большая кухня-гостиная. -В квартире сделан современный ремонт. Использованы только...
г. Минск, ул. Левина д. 5
76 135 $  
Вы заслужили дом, в котором утро начинается с вида, а не со спешки.Дом «Марракеш» — место, где комфорт чувствуется в каждой детали. Представьте: вы просыпаетесь, открываете панорамное окно —и перед вами вид, от которого хочется вдохнуть глубже.Это не отпуск. Это ваш новый дом — в доме «Марракеш». Современный 16-этажный дом с продуманным дизайном и продуманным до мелочей пространством:...
г. Минск, ул. Жореса Алферова д. 2
134 869 $  
Рассрочка! Кредит! Скидки! Современный проект! Престиж и стиль! Крупнейший застройщик в Беларуси! Минск Мир!!! В комплексе предусмотрены: школы, детские сады, поликлиники, музыкальные школы, детские площадки, кинотеатр, развлекательный центр, парикмахерские, стоматология, спортивная арена, велодорожки по всему комплексу, теннисные площадки, волейбольные и баскетбольные площадки. Дома с...
375 ... показать телефон Светлана Скурат
г. Минск, ул. Братская д. 17
118 000 $  
Квартира с дизайнерским ремонтом в доме «Гавайи»! Площадь квартиры по СНБ 37,8 м2. В квартире выполнен современный ремонт из качественных материалов. Оборудованная кухня-гостиная со встроенной мебелью и техникой. Изолированная уютная спальня. Совмещенный сан. узел с качественной современной сантехникой. Полы – ламинат и плитка. Входная металлическая дверь. Потолки 2,74 м. Квартира на 17 этаже...
г. Минск, ул. Леонида Щемелёва д. 18
121 660 $  
Работаем напрямую от застройщика по партнерской программе (без комиссий)!!! Цены и наличие на 06.11.2025г. Продадим Вашу квартиру для покупки этой! Стать владельцем квартиры в Minsk World можно: 1. За собственные средства 2. Кредит от 6% 3. В рассрочку без справок и поручителей (только паспорт!) Все дома в комплексе каркасно-блочные. Скоростные бесшумные лифты импортного производства. Почти...
г. Минск, пр. Мира д. 16
102 244 $  
Наличные! Кредит! Рассрочка! 1. Услуги по подбору новостроек - бесплатные!!! 2. Напрямую от застройщика, Вы покупаете по цене застройщика и заключаете договор только с застройщиком! 3. Выполняем функцию отдела продаж застройщика Планировки и цены актуальны на 06.11.2025 ООО "Этажи юнайтед" УНП: 193673318 Договор №52/1 от 05.01.24 по 03.01.2026 Лицензия на оказание риэлтерских услуг...
г. Минск, ул. Жореса Алферова д. 2
125 191 $  
Рассрочка! Кредит! Скидки! Современный проект! Престиж и стиль! Крупнейший застройщик в Беларуси! Минск Мир!!! В комплексе предусмотрены: школы, детские сады, поликлиники, музыкальные школы, детские площадки, кинотеатр, развлекательный центр, парикмахерские, стоматология, спортивная арена, велодорожки по всему комплексу, теннисные площадки, волейбольные и баскетбольные площадки. Дома с...
375 ... показать телефон Светлана Скурат
г. Минск, ул. Жореса Алферова д. 2
92 783 $  
Работаем напрямую от застройщика по партнерской программе! Выгодное предложение!!! Звоните за более подробной информацией! Стоимость актуальна на дату размещения 05.11.2025. Подробную актуальную информацию уточняйте по телефону. Успейте купить квартиру в доме «Валлета» в жилом квартале «Средиземноморский». Возможность бесплатно забронировать квартиру на месяц при продаже своей квартиры через АН...
г. Минск, ул. Леонида Щемелёва д. 16
112 115 $  
Работаем напрямую от застройщика по партнерской программе! Выгодное предложение!!! Звоните за более подробной информацией! Стоимость актуальна на дату размещения 05.11.2025. Подробную актуальную информацию уточняйте по телефону. Успейте купить квартиру в доме «Панама-Сити» в жилом квартале «Южная Америка». Возможность бесплатно забронировать квартиру на месяц при продаже своей квартиры через АН...
г. Минск, ул. Брилевская д. 29
117 754 $  
Работаем напрямую от застройщика по партнерской программе (без комиссий)!!! Цены и наличие на 05.11.2025г. Продадим Вашу квартиру для покупки этой! Стать владельцем квартиры в Minsk World можно: 1. За собственные средства 2. Кредит от 6%. Кредит 13,75% от Беларусбанка. 3. В рассрочку без справок и поручителей (только паспорт!) Все дома в комплексе каркасно-блочные. Скоростные бесшумные лифты...
г. Минск, ул. Леонида Щемелёва д. 16
112 115 $  
Работаем напрямую от застройщика по партнерской программе (без комиссий)!!! Выгодное предложение!!! Звоните за более подробной информацией! Стоимость актуальна на дату размещения 06.11.2025. Подробную актуальную информацию уточняйте по телефону. Успейте купить квартиру в доме «Панама-Сити» в жилом квартале «Южная Америка». Возможность забронировать квартиру на месяц при продаже своей квартиры...
375 ... показать телефон Спиридонов Дмитрий
г. Минск, ул. Жореса Алферова д. 13
122 817 $  
Работаем напрямую от застройщика по партнерской программе (без комиссий)!!! Цены и наличие на 06.11.2025г. Продадим Вашу квартиру для покупки этой! Стать владельцем квартиры в Minsk World можно: 1. За собственные средства 2. Кредит от 6% 3. В рассрочку без справок и поручителей (только паспорт!) Все дома в комплексе каркасно-блочные. Скоростные бесшумные лифты импортного производства. Почти...
г. Минск, ул. Жореса Алферова д. 13
124 966 $  
Работаем напрямую от застройщика по партнерской программе (без комиссий)!!! Цены и наличие на 06.11.2025г. Продадим Вашу квартиру для покупки этой! Стать владельцем квартиры в Minsk World можно: 1. За собственные средства 2. Кредит от 6% 3. В рассрочку без справок и поручителей (только паспорт!) Все дома в комплексе каркасно-блочные. Скоростные бесшумные лифты импортного производства. Почти...
г. Минск, ул. Леонида Щемелёва д. 18
120 668 $  
Работаем напрямую от застройщика по партнерской программе (без комиссий)!!! Цены и наличие на 06.11.2025г. Продадим Вашу квартиру для покупки этой! Стать владельцем квартиры в Minsk World можно: 1. За собственные средства 2. Кредит от 6% 3. В рассрочку без справок и поручителей (только паспорт!) Все дома в комплексе каркасно-блочные. Скоростные бесшумные лифты импортного производства. Почти...
г. Минск, ул. Леонида Щемелёва д. 28
116 957 $  
Работаем напрямую от застройщика по партнерской программе (без комиссий)!!! Цены и наличие на 06.11.2025г. Продадим Вашу квартиру для покупки этой! Стать владельцем квартиры в Minsk World можно: 1. За собственные средства 2. Кредит от 6% 3. В рассрочку без справок и поручителей (только паспорт!) Все дома в комплексе каркасно-блочные. Скоростные бесшумные лифты импортного производства. Почти...
г. Минск, ул. Леонида Щемелёва д. 26
114 986 $  
Работаем напрямую от застройщика по партнерской программе (без комиссий)!!! Цены и наличие на 06.11.2025г. Продадим Вашу квартиру для покупки этой! Стать владельцем квартиры в Minsk World можно: 1. За собственные средства 2. Кредит от 6% 3. В рассрочку без справок и поручителей (только паспорт!) Все дома в комплексе каркасно-блочные. Скоростные бесшумные лифты импортного производства. Почти...
г. Минск, ул. Жореса Алферова д. 2
134 869 $  
Рассрочка! Кредит! Скидки! Современный проект! Престиж и стиль! Крупнейший застройщик в Беларуси! Минск Мир!!! В комплексе предусмотрены: школы, детские сады, поликлиники, музыкальные школы, детские площадки, кинотеатр, развлекательный центр, парикмахерские, стоматология, спортивная арена, велодорожки по всему комплексу, теннисные площадки, волейбольные и баскетбольные площадки. Дома с...
375 ... показать телефон Светлана Скурат
г. Минск, ул. Аэродромная д. 20
122 619 $  
Работаем напрямую от застройщика по партнерской программе (без комиссий)!!! Цены и наличие на 05.11.2025г. Продадим Вашу квартиру для покупки этой! Стать владельцем квартиры в Minsk World можно: 1. За собственные средства 2. Кредит от 6%. Кредит 13,75% от Беларусбанка. 3. В рассрочку без справок и поручителей (только паспорт!) Все дома в комплексе каркасно-блочные. Скоростные бесшумные лифты...
г. Минск, ул. Леонида Щемелёва д. 16
112 115 $  
Работаем напрямую от застройщика по партнерской программе! Выгодное предложение!!! Звоните за более подробной информацией! Стоимость актуальна на дату размещения 05.11.2025. Подробную актуальную информацию уточняйте по телефону. Успейте купить квартиру в доме «Панама-Сити» в жилом квартале «Южная Америка». Возможность бесплатно забронировать квартиру на месяц при продаже своей квартиры через АН...
г. Минск, ул. Леонида Щемелёва д. 18
121 164 $  
Работаем напрямую от застройщика по партнерской программе (без комиссий)!!! Цены и наличие на 06.11.2025г. Продадим Вашу квартиру для покупки этой! Стать владельцем квартиры в Minsk World можно: 1. За собственные средства 2. Кредит от 6% 3. В рассрочку без справок и поручителей (только паспорт!) Все дома в комплексе каркасно-блочные. Скоростные бесшумные лифты импортного производства. Почти...
г. Минск, ул. Леонида Щемелёва д. 16
112 115 $  
Работаем напрямую от застройщика по партнерской программе! Выгодное предложение!!! Звоните за более подробной информацией! Стоимость актуальна на дату размещения 05.11.2025. Подробную актуальную информацию уточняйте по телефону. Успейте купить квартиру в доме «Панама-Сити» в жилом квартале «Южная Америка». Возможность бесплатно забронировать квартиру на месяц при продаже своей квартиры через АН...
г. Минск, ул. Игоря Лученка д. 2
117 431 $  
Современная квартира в сданном доме от застройщика. Кредит! Рассрочка! Грандиозный жилой комплекс с продуманной инфраструктурой: · школы, детские сады, поликлиники, музыкальная школа; · спортивная арена, теннисные и волейбольные площадки, велодорожки, скейт- и детские зоны; · кинотеатр, развлекательный центр, кафе и магазины. Дома с панорамным остеклением, дизайнерскими лобби, местами для...
г. Минск, ул. Жореса Алферова д. 2
134 214 $  
Рассрочка! Кредит! Скидки! Современный проект! Престиж и стиль! Крупнейший застройщик в Беларуси! Минск Мир!!! В комплексе предусмотрены: школы, детские сады, поликлиники, музыкальные школы, детские площадки, кинотеатр, развлекательный центр, парикмахерские, стоматология, спортивная арена, велодорожки по всему комплексу, теннисные площадки, волейбольные и баскетбольные площадки. Дома с...
375 ... показать телефон Светлана Скурат
г. Минск, ул. Жореса Алферова д. 9
122 155 $  
Работаем напрямую от застройщика по партнерской программе (без комиссий)!!! Цены и наличие на 06.11.2025г. Продадим Вашу квартиру для покупки этой! Стать владельцем квартиры в Minsk World можно: 1. За собственные средства 2. Кредит от 6% 3. В рассрочку без справок и поручителей (только паспорт!) Все дома в комплексе каркасно-блочные. Скоростные бесшумные лифты импортного производства. Почти...
г. Минск, ул. Аэродромная д. 18
113 534 $  
Работаем напрямую от застройщика по партнерской программе (без комиссий)!!! Цены и наличие на 05.11.2025г. Продадим Вашу квартиру для покупки этой! Стать владельцем квартиры в Minsk World можно: 1. За собственные средства 2. Кредит от 6%. Кредит 13,75% от Беларусбанка. 3. В рассрочку без справок и поручителей (только паспорт!) Все дома в комплексе каркасно-блочные. Скоростные бесшумные лифты...
г. Минск, ул. Жореса Алферова д. 2
114 475 $  
Рассрочка! Кредит! Скидки! Современный проект! Престиж и стиль! Крупнейший застройщик в Беларуси! Минск Мир!!! В комплексе предусмотрены: школы, детские сады, поликлиники, музыкальные школы, детские площадки, кинотеатр, развлекательный центр, парикмахерские, стоматология, спортивная арена, велодорожки по всему комплексу, теннисные площадки, волейбольные и баскетбольные площадки. Дома с...
375 ... показать телефон Светлана Скурат
г. Минск, ул. Леонида Щемелёва д. 18
120 337 $  
Работаем напрямую от застройщика по партнерской программе (без комиссий)!!! Цены и наличие на 06.11.2025г. Продадим Вашу квартиру для покупки этой! Стать владельцем квартиры в Minsk World можно: 1. За собственные средства 2. Кредит от 6% 3. В рассрочку без справок и поручителей (только паспорт!) Все дома в комплексе каркасно-блочные. Скоростные бесшумные лифты импортного производства. Почти...
г. Минск, ул. Леонида Щемелёва д. 14
94 909 $  
Наличные! Кредит! Рассрочка! 1. Услуги по подбору новостроек - бесплатные!!! 2. Напрямую от застройщика, Вы покупаете по цене застройщика и заключаете договор только с застройщиком! 3. Выполняем функцию отдела продаж застройщика Планировки и цены актуальны на 06.11.2025 ООО "Этажи юнайтед" УНП: 193673318 Договор №52/1 от 05.01.24 по 03.01.2026 Лицензия на оказание риэлтерских услуг...
г. Минск, ул. Леонида Щемелёва д. 26
95 500 $  
Продам евротрешку, расположенную на 14-м этаже в 25-м доме квартала Западная Европа в доме Мадрид. Площадь по СНБ 53,9 кв.м. Высокие потолки 2,73м. Окна в пол, выходят на две стороны. Отличный вид (не окна в окна).В доме три бесшумных скоростных лифта, один из которых панорамный.Рядом вся необходимая инфраструктура. Возле дома большой паркинг. Приезжайте на просмотр и оставляйте свои...
г. Минск, ул. Леонида Щемелёва д. 26
113 901 $  
Современная квартира в сданном доме от застройщика. Кредит! Рассрочка! Грандиозный жилой комплекс с продуманной инфраструктурой: · школы, детские сады, поликлиники, музыкальная школа; · спортивная арена, теннисные и волейбольные площадки, велодорожки, скейт- и детские зоны; · кинотеатр, развлекательный центр, кафе и магазины. Дома с панорамным остеклением, дизайнерскими лобби, местами для...
г. Минск, ул. Игоря Лученка д. 8
104 831 $  
Квартиры напрямую от застройщика, по ценам застройщика, без комиссий агентству Б Е С П Л А Т Н О консультации и помощь в покупке! Квартиру можно приобрести в кредит (до 20 лет в рублях) или в рассрочку до 48 (без справок и поручителей). Б Е С П Л А Т Н О проконсультирую и помогу выбрать наиболее выгодный вариант! Помогу выбрать нужную Вам планировку и лучший вид из окна в любом доме Минск-Мир!...
г. Минск, пр. Мира д. 2
110 189 $  
ДОМ «Сидней Люкс», квартал «Чемпионов», ЖК «Минск-Мир». Возможна покупка в КРЕДИТ! Звоните узнать подробнее! Все консультации и помощь в покупке БЕСПЛАТНЫЕ! Квалифицированная помощь в подборе лучшей квартиры и планировки! Поможем решить вопросы по кредитованию, а также поможем продать Вашу недвижимость! Дом «Сидней Люкс» в квартале «Чемпионов» комплекса Минск-Мир! Новостройка полностью готова!...
г. Минск, ул. Леонида Щемелёва д. 26
113 746 $  
Современная квартира в сданном доме от застройщика. Кредит! Рассрочка! Грандиозный жилой комплекс с продуманной инфраструктурой: · школы, детские сады, поликлиники, музыкальная школа; · спортивная арена, теннисные и волейбольные площадки, велодорожки, скейт- и детские зоны; · кинотеатр, развлекательный центр, кафе и магазины. Дома с панорамным остеклением, дизайнерскими лобби, местами для...
г. Минск, ул. Леонида Щемелёва д. 18
121 329 $  
Работаем напрямую от застройщика по партнерской программе (без комиссий)!!! Цены и наличие на 06.11.2025г. Продадим Вашу квартиру для покупки этой! Стать владельцем квартиры в Minsk World можно: 1. За собственные средства 2. Кредит от 6% 3. В рассрочку без справок и поручителей (только паспорт!) Все дома в комплексе каркасно-блочные. Скоростные бесшумные лифты импортного производства. Почти...
г. Минск, ул. Леонида Щемелёва д. 30
117 116 $  
Работаем напрямую от застройщика по партнерской программе (без комиссий)!!! Цены и наличие на 06.11.2025г. Продадим Вашу квартиру для покупки этой! Стать владельцем квартиры в Minsk World можно: 1. За собственные средства 2. Кредит от 6% 3. В рассрочку без справок и поручителей (только паспорт!) Все дома в комплексе каркасно-блочные. Скоростные бесшумные лифты импортного производства. Почти...
г. Минск, ул. Брилевская д. 27
118 074 $  
Работаем напрямую от застройщика по партнерской программе (без комиссий)!!! Цены и наличие на 05.11.2025г. Продадим Вашу квартиру для покупки этой! Стать владельцем квартиры в Minsk World можно: 1. За собственные средства 2. Кредит от 6%. Кредит 13,75% от Беларусбанка. 3. В рассрочку без справок и поручителей (только паспорт!) Все дома в комплексе каркасно-блочные. Скоростные бесшумные лифты...
г. Минск, ул. Игоря Лученка д. 28
134 245 $  
Работаем напрямую от застройщика по партнерской программе (без комиссий)!!! Цены и наличие на 06.11.2025г. Продадим Вашу квартиру для покупки этой! Стать владельцем квартиры в Minsk World можно: 1. За собственные средства 2. Кредит от 6% 3. В рассрочку без справок и поручителей (только паспорт!) Все дома в комплексе каркасно-блочные. Скоростные бесшумные лифты импортного производства. Почти...
г. Минск, ул. Жореса Алферова д. 2
92 783 $  
Работаем напрямую от застройщика по партнерской программе! Выгодное предложение!!! Звоните за более подробной информацией! Стоимость актуальна на дату размещения 05.11.2025. Подробную актуальную информацию уточняйте по телефону. Успейте купить квартиру в доме «Валлета» в жилом квартале «Средиземноморский». Возможность бесплатно забронировать квартиру на месяц при продаже своей квартиры через АН...
г. Минск, ул. Жореса Алферова д. 2
115 136 $  
Рассрочка! Кредит! Скидки! Современный проект! Престиж и стиль! Крупнейший застройщик в Беларуси! Минск Мир!!! В комплексе предусмотрены: школы, детские сады, поликлиники, музыкальные школы, детские площадки, кинотеатр, развлекательный центр, парикмахерские, стоматология, спортивная арена, велодорожки по всему комплексу, теннисные площадки, волейбольные и баскетбольные площадки. Дома с...
375 ... показать телефон Светлана Скурат
г. Минск, ул. Жореса Алферова д. 2
92 783 $  
Работаем напрямую от застройщика по партнерской программе! Выгодное предложение!!! Звоните за более подробной информацией! Стоимость актуальна на дату размещения 05.11.2025. Подробную актуальную информацию уточняйте по телефону. Успейте купить квартиру в доме «Валлета» в жилом квартале «Средиземноморский». Возможность бесплатно забронировать квартиру на месяц при продаже своей квартиры через АН...
г. Минск, ул. Леонида Щемелёва д. 18
120 833 $  
Работаем напрямую от застройщика по партнерской программе (без комиссий)!!! Цены и наличие на 06.11.2025г. Продадим Вашу квартиру для покупки этой! Стать владельцем квартиры в Minsk World можно: 1. За собственные средства 2. Кредит от 6% 3. В рассрочку без справок и поручителей (только паспорт!) Все дома в комплексе каркасно-блочные. Скоростные бесшумные лифты импортного производства. Почти...
г. Минск, ул. Жореса Алферова д. 9
122 651 $  
Работаем напрямую от застройщика по партнерской программе (без комиссий)!!! Цены и наличие на 06.11.2025г. Продадим Вашу квартиру для покупки этой! Стать владельцем квартиры в Minsk World можно: 1. За собственные средства 2. Кредит от 6% 3. В рассрочку без справок и поручителей (только паспорт!) Все дома в комплексе каркасно-блочные. Скоростные бесшумные лифты импортного производства. Почти...
г. Минск, ул. Жореса Алферова д. 2
92 783 $  
Работаем напрямую от застройщика по партнерской программе! Выгодное предложение!!! Звоните за более подробной информацией! Стоимость актуальна на дату размещения 05.11.2025. Подробную актуальную информацию уточняйте по телефону. Успейте купить квартиру в доме «Валлета» в жилом квартале «Средиземноморский». Возможность бесплатно забронировать квартиру на месяц при продаже своей квартиры через АН...
г. Минск, ул. Леонида Щемелёва д. 18
122 651 $  
Работаем напрямую от застройщика по партнерской программе (без комиссий)!!! Цены и наличие на 06.11.2025г. Продадим Вашу квартиру для покупки этой! Стать владельцем квартиры в Minsk World можно: 1. За собственные средства 2. Кредит от 6% 3. В рассрочку без справок и поручителей (только паспорт!) Все дома в комплексе каркасно-блочные. Скоростные бесшумные лифты импортного производства. Почти...
г. Минск, ул. Леонида Щемелёва д. 28
117 116 $  
Работаем напрямую от застройщика по партнерской программе (без комиссий)!!! Цены и наличие на 06.11.2025г. Продадим Вашу квартиру для покупки этой! Стать владельцем квартиры в Minsk World можно: 1. За собственные средства 2. Кредит от 6% 3. В рассрочку без справок и поручителей (только паспорт!) Все дома в комплексе каркасно-блочные. Скоростные бесшумные лифты импортного производства. Почти...
г. Минск, ул. Леонида Щемелёва д. 28
116 797 $  
Работаем напрямую от застройщика по партнерской программе (без комиссий)!!! Цены и наличие на 06.11.2025г. Продадим Вашу квартиру для покупки этой! Стать владельцем квартиры в Minsk World можно: 1. За собственные средства 2. Кредит от 6% 3. В рассрочку без справок и поручителей (только паспорт!) Все дома в комплексе каркасно-блочные. Скоростные бесшумные лифты импортного производства. Почти...
г. Минск, ул. Жореса Алферова д. 2
92 783 $  
Рассрочка! Кредит! Скидки! Современный проект! Престиж и стиль! Крупнейший застройщик в Беларуси! Минск Мир!!! В комплексе предусмотрены: школы, детские сады, поликлиники, музыкальные школы, детские площадки, кинотеатр, развлекательный центр, парикмахерские, стоматология, спортивная арена, велодорожки по всему комплексу, теннисные площадки, волейбольные и баскетбольные площадки. Дома с...
375 ... показать телефон Светлана Скурат
г. Минск, ул. Жореса Алферова д. 2
134 869 $  
Рассрочка! Кредит! Скидки! Современный проект! Престиж и стиль! Крупнейший застройщик в Беларуси! Минск Мир!!! В комплексе предусмотрены: школы, детские сады, поликлиники, музыкальные школы, детские площадки, кинотеатр, развлекательный центр, парикмахерские, стоматология, спортивная арена, велодорожки по всему комплексу, теннисные площадки, волейбольные и баскетбольные площадки. Дома с...
375 ... показать телефон Светлана Скурат
г. Минск, ул. Братская д. 17
118 000 $  
Квартира с дизайнерским ремонтом в доме «Гавайи»! Площадь квартиры по СНБ 37,8 м2. В квартире выполнен современный ремонт из качественных материалов. Оборудованная кухня-гостиная со встроенной мебелью и техникой. Изолированная уютная спальня. Совмещенный сан. узел с качественной современной сантехникой. Полы – ламинат и плитка. Входная металлическая дверь. Потолки 2,74 м. Квартира на 17 этаже...
г. Минск, ул. Леонида Щемелёва д. 18
121 660 $  
Работаем напрямую от застройщика по партнерской программе (без комиссий)!!! Цены и наличие на 06.11.2025г. Продадим Вашу квартиру для покупки этой! Стать владельцем квартиры в Minsk World можно: 1. За собственные средства 2. Кредит от 6% 3. В рассрочку без справок и поручителей (только паспорт!) Все дома в комплексе каркасно-блочные. Скоростные бесшумные лифты импортного производства. Почти...
г. Минск, ул. Минина Кузьмы д. 8
91 208 $  
ЖК Дубравинский. Напрямую от застройщика. Кредит 13,75% на 20 лет. Сдача дома – февраль 2027 год (планируется конец 2026года). Наличие квартиры и цена актуальны на 06.11.2025г. Приобрести квартиру можно: - 100 % оплаты собственными средствами - в кредит - в рассрочку от застройщика Конструктивная схема здания – монолитный каркас. Наружные стены выполнены из газосиликатного блока с утеплением...
г. Минск, ул. Минина Кузьмы д. 8
115 770 $  
ЖК «Дубравинский» - Дом №3 Работаем напрямую от застройщика по партнерской программе!!! Звоните,подберем выгодный вариант кредитования или рассрочки! Срок сдачи дома – 2027 год. · Конструктивная схема здания – монолитный каркас + силикатные блоки · Этажность – 21; · 3 лифта; Черновая отделка; Входная дверь, из сантехпосуды – унитаз; Установка счетчиков воды и электроэнергии; Стеклопакеты ПВХ...
г. Минск, пр. Мира д. 16
102 244 $  
Наличные! Кредит! Рассрочка! 1. Услуги по подбору новостроек - бесплатные!!! 2. Напрямую от застройщика, Вы покупаете по цене застройщика и заключаете договор только с застройщиком! 3. Выполняем функцию отдела продаж застройщика Планировки и цены актуальны на 06.11.2025 ООО "Этажи юнайтед" УНП: 193673318 Договор №52/1 от 05.01.24 по 03.01.2026 Лицензия на оказание риэлтерских услуг...
г. Минск, ул. Жореса Алферова д. 2
125 191 $  
Рассрочка! Кредит! Скидки! Современный проект! Престиж и стиль! Крупнейший застройщик в Беларуси! Минск Мир!!! В комплексе предусмотрены: школы, детские сады, поликлиники, музыкальные школы, детские площадки, кинотеатр, развлекательный центр, парикмахерские, стоматология, спортивная арена, велодорожки по всему комплексу, теннисные площадки, волейбольные и баскетбольные площадки. Дома с...
375 ... показать телефон Светлана Скурат
г. Минск, ул. Жореса Алферова д. 2
92 783 $  
Работаем напрямую от застройщика по партнерской программе! Выгодное предложение!!! Звоните за более подробной информацией! Стоимость актуальна на дату размещения 05.11.2025. Подробную актуальную информацию уточняйте по телефону. Успейте купить квартиру в доме «Валлета» в жилом квартале «Средиземноморский». Возможность бесплатно забронировать квартиру на месяц при продаже своей квартиры через АН...
г. Минск, ул. Леонида Щемелёва д. 16
112 115 $  
Работаем напрямую от застройщика по партнерской программе! Выгодное предложение!!! Звоните за более подробной информацией! Стоимость актуальна на дату размещения 05.11.2025. Подробную актуальную информацию уточняйте по телефону. Успейте купить квартиру в доме «Панама-Сити» в жилом квартале «Южная Америка». Возможность бесплатно забронировать квартиру на месяц при продаже своей квартиры через АН...
г. Минск, ул. Брилевская д. 29
117 754 $  
Работаем напрямую от застройщика по партнерской программе (без комиссий)!!! Цены и наличие на 05.11.2025г. Продадим Вашу квартиру для покупки этой! Стать владельцем квартиры в Minsk World можно: 1. За собственные средства 2. Кредит от 6%. Кредит 13,75% от Беларусбанка. 3. В рассрочку без справок и поручителей (только паспорт!) Все дома в комплексе каркасно-блочные. Скоростные бесшумные лифты...
г. Минск, ул. Леонида Щемелёва д. 16
112 115 $  
Работаем напрямую от застройщика по партнерской программе (без комиссий)!!! Выгодное предложение!!! Звоните за более подробной информацией! Стоимость актуальна на дату размещения 06.11.2025. Подробную актуальную информацию уточняйте по телефону. Успейте купить квартиру в доме «Панама-Сити» в жилом квартале «Южная Америка». Возможность забронировать квартиру на месяц при продаже своей квартиры...
375 ... показать телефон Спиридонов Дмитрий
Зарегистрируйтесь через ваш аккаунт в соцсетях:
или через нашу форму:
Войдите через ваш аккаунт в соцсетях:
или введите логин и пароль:
Регистрация
Еще можно просмотреть номера телефона.

Для снятия ограничения нужна всего лишь регистрация.

Так мы защищаем информацию клиентов от роботов

Выбери квартиру за 2.99 BYN

  • Мы собираем и обрабатываем для вас информацию с 10 сайтов
  • Звоним по всем объявлениям со всего интернета
  • Задаем уточняющие вопросы
  • Получаем дополнительную информацию

Все это, чтобы вам было проще сделать выбор

Стоимость к этой информации - от 2.99 рублей в месяц

Выбрать тариф
Получите больше просмотров Вашего объявления

Получите х10 показов! Закрепите объявление в ТОПе и выделите его цветом.

Стоимость услуги - 15 рублей за 30 дней или 22 рубля за 60 дней.

Как это работает.

Ваше объявление будет выделено цветом и будет закреплено в результатах поиска под спецпозициями.

Для оплаты через ЕРИП:

Перейдите в раздел "Интернет-магазины/сервисы" -> "H" -> "Hata.by" -> "Оплата по номеру заказа"

Введите один номер заказа - либо , и проведите оплату.

В течение 30 минут мы обработаем оплату в автоматическом режиме и реклама начнет работать.

Получите больше просмотров Вашего объявления

Закрепите объявление в начале первой страницы каталога. Объявление будет находится над простыми объявлениями. Стоимость услуги - 50р. за 2 недели.

Как это работает.

Объявление закрепляется под спецпозициями на первой странице каталога. Бесплатные объявления находятся внизу результатов поиска. Таким образом, посетители сайта увидят ваше объявление в первую очередь.

Для оплаты через ЕРИП:

Перейдите в раздел "Интернет-магазины/сервисы" -> "H" -> "Hata.by" -> "Оплата по номеру заказа"

Введите номер заказа - 0 и проведите оплату.

В течение 30 минут мы обработаем оплату в автоматическом режиме и реклама начнет работать.

Забронировать объект
Ваше имя:
Заезд:
Дата заезда:
Время заезда:
Количество гостей:
Отезд:
Дата отезда:
Время отезда:
Ваш вопрос владельцу объявления:
Больше не выводить для меня
Я хочу сообщить, что данное объявление более не актуально.
Удаление объявления
У Вас есть доступ к номеру +375291753061 куда мы можем прислать код для подтверждения?
Изменить объявление
У Вас есть доступ к номеру +375291753061 куда мы можем прислать код для подтверждения?
Подписаться на изменение цены объекта
Введите ваш email:
Распечатать объявление
Заказать фотографа

Профессиональные фотографии интерьера

Для того что бы отразить все преимущества вашего объекта недвижимости и привлечь больше внимания от потенциальных клиентов, вы можете заказать услуги профессионального фотографа у нас.

Готовые фотографии вы получаете на электронную почту в течении 2-х рабочих дней.

Снимки делаются на широкоугольный объектив.

Заказы принимаются только по городу Минску

Вид объекта/Цена

1-комнатная квартира 60 руб.

2-комнатная квартира 80 руб.

3-комнатная квартира 100 руб.

Другое - Договорная

Для заказа услуг фотографа и консультации свяжитесь с нашими менеджерами по тел.: +375-44-550-45-45

Отображение на карте
Сохраните поиск
Введите Ваш email:
Период рассылки:
Добавить в избранное
Добавить объект в:
Чтобы добавить объект в список, создайте список