Выберите услуги

Продается атмосферный дом в 15 км от Минска

40 просмотров за все время, 9 с мобильных сегодня 0, неделя 11, месяц 40 Добавлено - 29.10.2025
261 000 $  
цена действительна ТОЛЬКО при ссылке на hata.by
Подписаться на изменение цены
Площадь159.6 м2
Агентство недвижимости ООО «ДИНАС-недвижимость»
Почта
office@dinas.by
Телефон
+375 (29) 234-52-17
Описание
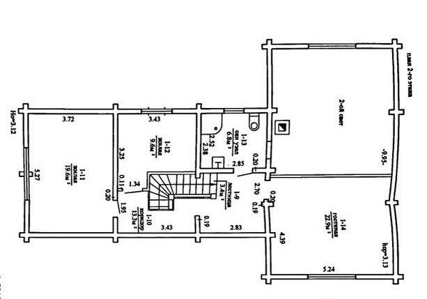
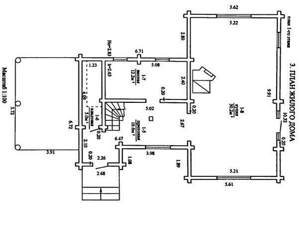
Продается дом с необычным дизайном в 15 км от Минска в д. Околица (Раубичи).

100% готовность. Дом деревянный, построен по индивидуальному проекту, 2 уровня, с навесом для авто, баня с комнатой отдыха и мини-бассейном. 2013 год постройки. Дом строили для себя. Крыша - метало-черепица, общая площадь дома 159 м2 (по СНБ 186,7 м2), жилая 91 м2, кухня-гостиная – 50м2. Высокие потолки, окна в пол, 1 - уровень гостиная совмещённая с кухней, в гостиной камин и русская печь, 2- х уровневое освещение, санузел. 2 уровень – 3 спальни, санузел. Дом продается с мебелью(частично) и бытовой техникой (вся мебель изготовлена под заказ). На полу доска массив. Роскошный вид из окон. Терраса с великолепным видом. Есть обустроенный подвал. Дом находится на возвышенности, признан в Гугле самым красивым домом 2014 года. Все коммуникации: газ, свет, вода (своя скважина), оптоволокно, спутниковое тв., местная канализация.

Автоматически открывающиеся въездные ворота на участок. Отличные подъездные пути, в 10 метрах через дорогу - лес.

Участок 9 соток, частная собственность. Огорожен. Ландшафтный дизайн.

В шаговой доступности: магазины (продовольственный, овощной), кафе, спорткомплекс РАУБИЧИ: стадион, ледовый дворец, теннисные корты, волейбольные и баскетбольные площадки, тренажерные залы (открытые и закрытые). Также: рестораны, бары, сауна, церковь, костел.

Асфальтированные дорожки для прогулок. В вечернее, ночное время прогулочные маршруты постоянно освещены. Зимой горки для катаний на санках, лыже роллерная трасса (500м), велосипедные дорожки.

Остановка общественного транспорта (автобусы, маршрутки) в 10 мин, 12 мин езды на машине до Минска, 30 мин до аэропорта.

Если Вы хотите наслаждаться тишиной, природой, уникальным домом, цените красоту, любите прогулки, рыбалку, занимаетесь спортом, ведете активный образ жизни и одновременно цените свое время- это место для ВАС!!!

Звоните! Приезжайте на просмотр! Покупайте!

Информация об объекте
Расстояние от МКАД 13.4 км
Общая площадь 159.6 м²
Жилая площадь 91 м²
Площадь кухни 50.2 м²
Год постройки 2013
Материал стен дерево
Отопление паровое
Свет есть
Вода горячая
Газ нет
Дата обновления 06.11.2025
Дата добавления 29.10.2025
Квартира на карте
Минская обл. д. Мара-Росинка
134 900 $  
Садовое товарищество «Мара-Росинка» в 1 км от г. Заславль, рядом (10 минут) красивые озёра. Дом подходит для круглогодичного проживания, современный и уютный. Постройка 2017 года, из силикатных блоков площадью 184 кв. м. и жилой 62.8 кв. м.Коммуникации: отопление – газовое, имеется печь с камином и лежанкой. Крыша – металлочерепица. К дому подведена электролиния 380 В, стабильное...
Минская обл. д. Любячка
9 500 $  
Внесите свою яркую мечту в добротный деревенский дом с просторными светлыми комнатами, хорошими окнами. Аккуратные потолки и крепкие полы из широких досок. Новая крыша с коньком, привлекательным фронтоном. Паровое отопление, а также печное две действующие печки – печь лежанка и печь для приготовления. Новый электросчетчик. Газ-баллон. Питьевая вода из колодца на 7 колец подведена к дому через...
г. Могилев, ул. Крупской
30 000 $  
Продаётся дом общей площадью 46,63 м2 — идеальный вариант для тех, кто ищет спокойную жизнь рядом с городской инфраструктурой. Улица Крупской — это удобное место с хорошим подъездом, развитым транспортным сообщением и всем необходимым поблизости: магазины, школа, остановка, детский сад — всё рядом! Вода подведена прямо к дому. Канализация местная, в планах было провести электроотопление....
Брестская обл. Ивацевичский р-н г. Ивацевичи, ул. Ленина д. 12
39 000 $  
Продается двухэтажный таунхаус в центре с небольшим участком для отдыха или барбекю. Кирпичный дом 1998 года постройки, сама квартира с потолками 2,7м и с косметическим ремонтом: - четыре комнаты - центральное водоснабжение и канализация, - 2 санузла (по 1 на каждом этаже) - подвал - лоджия из кухни Площадь по СНБ 124,3 м2. На первом этаже санузел, кухня и гостинная. На втором три спальни и...
Минская обл. д. Дуброва
45 000 $  
Продается участок в живописном месте с шикарным видом на «Дубровское водохранилище». Чудесное место в 20 км от МКАД. Логойское направление, д. Дуброва (Раубичи). Площадь участка 13,09 соток. Пожизненное наследуемое владение. Целевое назначение участка – строительство и обслуживание жилого дома. Есть консервация. Газ рядом с участком, электричество. Респектабельное место для жизни и отдыха рядом...
Минская обл. г. Марьина Горка, ул. Советская
45 000 $  
Уникальное месторасположение до ж.д 5 мин.пешком, а также отдельный вход с отдельной огороженной территорией. Квартира в квартирном дерево-кирпичном доме на 4 комнаты из них одна зальная с камином. Еще одна мансардная комната на 2 этаже. Комбинированные полы дерево + линолеум+ кафельная плитка+ бетонка. Стеклопакеты. У дома находиться сарай, гараж, обустроенная баня. Двухконтурный котел –...
Минская обл. д. Городище д. 29
225 000 $  
Предлагается к продаже просторный уютный дом в поселке Городище, в 12 км от МКАД в Московском направлении. Дом построен в 2018 г, материал стен - силикатные блоки. Общая площадь дома 230,5м2, жилая 121,4м2, площадь участка-0,14 га. В доме два уровня - первый этаж и мансардный. На первом этаже размещаются:  Гостиная - 29,7 м2  Жилая комната – 15,5 м2  Кухня – 14,4 м2  Веранда – 10,3 м2 ...
Минская обл. д. Пралеска-10
110 000 $  
Шикарный Земельный участок с домом в живописном месте! В частной собственности 8 соток. Природный газ и центральный водопровод заведены в дом, проведена канализация, разведена внутренняя и наружная электрика. Дом готов под чистовую отделку.Закрытая территория, хорошая инфраструктура. Просторный земельный участок - Удобное расположение участка - Участок ровный, прямоугольной формы. Удобные...
Минская обл. д. Мираж-95
20 000 $  
Ухоженный участок с садом с плодовыми деревьями, и оборудованной зоной отдыха. Также на участке и хоз.постройка. 1 Новая мебель 2 Окна ПВХ 3 Дом бревенчатый 4 Забор сетка. 5 Вода сезонная Удобное расположение, прекрасное транспортное сообщение (скоростная трасса рядом . Участок находится на возвышенности - на нем сухо даже в сильные...
Минская обл. д. Зазерка д. 10
290 000 $  
Предлагается к покупке двухэтажный дом в агрогородке Зазерка! Планировка дома включает в себя: 1 этаж - просторную гостиную с зоной TV, столовой зоной и кухней (65,5 м2); - жилую комнату (21,6 м2), которая может использоваться как кабинет/детская/четвертая спальня; - санузел (8,8 м2) с душевой - котельная (4,5 м2)- коридор (16,7 м2) 2 этаж- 3 полноценные спальни 33,3 м2; 32,6 м2 и 22,5...
Зарегистрируйтесь через ваш аккаунт в соцсетях:
или через нашу форму:
Войдите через ваш аккаунт в соцсетях:
или введите логин и пароль:
Регистрация
Еще можно просмотреть номера телефона.

Для снятия ограничения нужна всего лишь регистрация.

Так мы защищаем информацию клиентов от роботов

Выбери квартиру за 2.99 BYN

  • Мы собираем и обрабатываем для вас информацию с 10 сайтов
  • Звоним по всем объявлениям со всего интернета
  • Задаем уточняющие вопросы
  • Получаем дополнительную информацию

Все это, чтобы вам было проще сделать выбор

Стоимость к этой информации - от 2.99 рублей в месяц

Выбрать тариф
Получите больше просмотров Вашего объявления

Получите х10 показов! Закрепите объявление в ТОПе и выделите его цветом.

Стоимость услуги - 15 рублей за 30 дней или 22 рубля за 60 дней.

Как это работает.

Ваше объявление будет выделено цветом и будет закреплено в результатах поиска под спецпозициями.

Для оплаты через ЕРИП:

Перейдите в раздел "Интернет-магазины/сервисы" -> "H" -> "Hata.by" -> "Оплата по номеру заказа"

Введите один номер заказа - либо , и проведите оплату.

В течение 30 минут мы обработаем оплату в автоматическом режиме и реклама начнет работать.

Получите больше просмотров Вашего объявления

Закрепите объявление в начале первой страницы каталога. Объявление будет находится над простыми объявлениями. Стоимость услуги - 50р. за 2 недели.

Как это работает.

Объявление закрепляется под спецпозициями на первой странице каталога. Бесплатные объявления находятся внизу результатов поиска. Таким образом, посетители сайта увидят ваше объявление в первую очередь.

Для оплаты через ЕРИП:

Перейдите в раздел "Интернет-магазины/сервисы" -> "H" -> "Hata.by" -> "Оплата по номеру заказа"

Введите номер заказа - 0 и проведите оплату.

В течение 30 минут мы обработаем оплату в автоматическом режиме и реклама начнет работать.

Забронировать объект
Ваше имя:
Заезд:
Дата заезда:
Время заезда:
Количество гостей:
Отезд:
Дата отезда:
Время отезда:
Ваш вопрос владельцу объявления:
Больше не выводить для меня
Я хочу сообщить, что данное объявление более не актуально.
Удаление объявления
У Вас есть доступ к номеру +375292345217 куда мы можем прислать код для подтверждения?
Изменить объявление
У Вас есть доступ к номеру +375292345217 куда мы можем прислать код для подтверждения?
Подписаться на изменение цены объекта
Введите ваш email:
Распечатать объявление
Заказать фотографа

Профессиональные фотографии интерьера

Для того что бы отразить все преимущества вашего объекта недвижимости и привлечь больше внимания от потенциальных клиентов, вы можете заказать услуги профессионального фотографа у нас.

Готовые фотографии вы получаете на электронную почту в течении 2-х рабочих дней.

Снимки делаются на широкоугольный объектив.

Заказы принимаются только по городу Минску

Вид объекта/Цена

1-комнатная квартира 60 руб.

2-комнатная квартира 80 руб.

3-комнатная квартира 100 руб.

Другое - Договорная

Для заказа услуг фотографа и консультации свяжитесь с нашими менеджерами по тел.: +375-44-550-45-45

Отображение на карте
Сохраните поиск
Введите Ваш email:
Период рассылки:
Добавить в избранное
Добавить объект в:
Чтобы добавить объект в список, создайте список