Выберите улицу
Применить Сбросить
Выберите район
Применить
Выберите услуги
Выберите метро
Выберите микрорайон

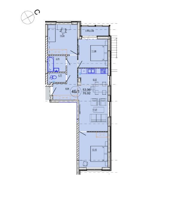
Квартира в ЖК Дубравинский. Метро Михалово. Кредит 13,75%.

29 просмотров за все время, 7 с мобильных сегодня 0, неделя 4, месяц 29 Добавлено - 24.10.2025
129 234 $  
цена действительна ТОЛЬКО при ссылке на hata.by
Подписаться на изменение цены
Площадь76.02 м2
Агентство недвижимости АН Этажи Юнайтед
Почта
barashenkoirina99@gmail.com
Телефон
+375 (44) 508-97-80
Описание
ЖК Дубравинский. Напрямую от застройщика. Кредит 13,75% на 20 лет.

Сдача дома – февраль 2027 год (планируется конец 2026года).

Наличие квартиры и цена актуальны на 25.10.2025г.

Приобрести квартиру можно:

- 100 % оплаты собственными средствами

- в кредит

- в рассрочку от застройщика

Конструктивная схема здания – монолитный каркас. Наружные стены выполнены из газосиликатного блока с утеплением (минеральная вата). Внутренние стены, внутриквартирные перегородки из блоков.

В квартире выполняется стяжка пола и штукатурка стен.

Стеклопакеты ПВХ двухкамерные в квартирах, лоджии остеклены.

Разводка электрики с установкой розеток и выключателей, подводка оптоволокна.

Установка счетчиков воды и электроэнергии.

Горизонтальная разводка труб отопления с установкой счетчиков тепла.

Кладовые помещения

Высота потолка - 2,5 м (21 этаж – 3м).

Вход в подъезд только со двора.

ООО «ЭТАЖИ юнайтед»

УНП: 193673318

Договор 3007/1 от 07.06.2024

Лицензия на оказание риэлтерских услуг №02240/460 МЮ РБ от 03.04.2023

Ознакомиться с политикой обработки персональных данных ООО «ЭТАЖИ юнайтед» можно .

Информация об объекте
Общая площадь 76.02 м²
Жилая площадь 66 м²
Год постройки 2027
Ремонт без отделки
Балкон / Лоджия лоджия
Дата обновления 10.11.2025
Дата добавления 24.10.2025
Квартира на карте
Микрорайон Московский район
г. Минск, ул. Минина Кузьмы д. 8
91 208 $  
ЖК Дубравинский. Напрямую от застройщика. Кредит 13,75% на 20 лет. Сдача дома – февраль 2027 год (планируется конец 2026года). Наличие квартиры и цена актуальны на 06.11.2025г. Приобрести квартиру можно: - 100 % оплаты собственными средствами - в кредит - в рассрочку от застройщика Конструктивная схема здания – монолитный каркас. Наружные стены выполнены из газосиликатного блока с утеплением...
г. Минск, ул. Минина Кузьмы д. 8
115 770 $  
ЖК «Дубравинский» - Дом №3 Работаем напрямую от застройщика по партнерской программе!!! Звоните,подберем выгодный вариант кредитования или рассрочки! Срок сдачи дома – 2027 год. · Конструктивная схема здания – монолитный каркас + силикатные блоки · Этажность – 21; · 3 лифта; Черновая отделка; Входная дверь, из сантехпосуды – унитаз; Установка счетчиков воды и электроэнергии; Стеклопакеты ПВХ...
г. Минск, ул. Минина Кузьмы д. 8
115 770 $  
ЖК «Дубравинский» - Дом №3 Работаем напрямую от застройщика по партнерской программе!!! Звоните,подберем выгодный вариант кредитования или рассрочки! Срок сдачи дома – 2027 год. · Конструктивная схема здания – монолитный каркас + силикатные блоки · Этажность – 21; · 3 лифта; Черновая отделка; Входная дверь, из сантехпосуды – унитаз; Установка счетчиков воды и электроэнергии; Стеклопакеты ПВХ...
г. Минск, ул. Минина Кузьмы д. 8
93 674 $  
ЖК Дубравинский. Напрямую от застройщика. Кредит 13,75% на 20 лет. Сдача дома – февраль 2027 год (планируется конец 2026года). Наличие квартиры и цена актуальны на 06.11.2025г. Приобрести квартиру можно: - 100 % оплаты собственными средствами - в кредит - в рассрочку от застройщика Конструктивная схема здания – монолитный каркас. Наружные стены выполнены из газосиликатного блока с утеплением...
г. Минск, ул. Минина Кузьмы д. 8
129 217 $  
ЖК «Дубравинский» - Дом №3 Работаем напрямую от застройщика по партнерской программе!!! Звоните,подберем выгодный вариант кредитования или рассрочки! Срок сдачи дома – 2027 год. · Конструктивная схема здания – монолитный каркас + силикатные блоки · Этажность – 21; · 3 лифта; Черновая отделка; Входная дверь, из сантехпосуды – унитаз; Установка счетчиков воды и электроэнергии; Стеклопакеты ПВХ...
г. Минск, ул. Минина Кузьмы д. 8
129 217 $  
ЖК «Дубравинский» - Дом №3 Работаем напрямую от застройщика по партнерской программе!!! Звоните,подберем выгодный вариант кредитования или рассрочки! Срок сдачи дома – 2027 год. · Конструктивная схема здания – монолитный каркас + силикатные блоки · Этажность – 21; · 3 лифта; Черновая отделка; Входная дверь, из сантехпосуды – унитаз; Установка счетчиков воды и электроэнергии; Стеклопакеты ПВХ...
г. Минск, ул. Минина Кузьмы д. 8
96 728 $  
ЖК «Дубравинский» - Дом №3 Работаем напрямую от застройщика по партнерской программе!!! Звоните,подберем выгодный вариант кредитования или рассрочки! Срок сдачи дома – 2027 год. · Конструктивная схема здания – монолитный каркас + силикатные блоки · Этажность – 21; · 3 лифта; Черновая отделка; Входная дверь, из сантехпосуды – унитаз; Установка счетчиков воды и электроэнергии; Стеклопакеты ПВХ...
г. Минск, ул. Минина Кузьмы д. 8
96 728 $  
ЖК «Дубравинский» - Дом №3 Работаем напрямую от застройщика по партнерской программе!!! Звоните,подберем выгодный вариант кредитования или рассрочки! Срок сдачи дома – 2027 год. · Конструктивная схема здания – монолитный каркас + силикатные блоки · Этажность – 21; · 3 лифта; Черновая отделка; Входная дверь, из сантехпосуды – унитаз; Установка счетчиков воды и электроэнергии; Стеклопакеты ПВХ...
г. Минск, ул. Минина Кузьмы д. 8
92 952 $  
ЖК «Дубравинский» - Дом №3 Работаем напрямую от застройщика по партнерской программе!!! Звоните,подберем выгодный вариант кредитования или рассрочки! Срок сдачи дома – 2027 год. · Конструктивная схема здания – монолитный каркас + силикатные блоки · Этажность – 21; · 3 лифта; Черновая отделка; Входная дверь, из сантехпосуды – унитаз; Установка счетчиков воды и электроэнергии; Стеклопакеты ПВХ...
г. Минск, ул. Минина Кузьмы д. 8
92 952 $  
ЖК «Дубравинский» - Дом №3 Работаем напрямую от застройщика по партнерской программе!!! Звоните,подберем выгодный вариант кредитования или рассрочки! Срок сдачи дома – 2027 год. · Конструктивная схема здания – монолитный каркас + силикатные блоки · Этажность – 21; · 3 лифта; Черновая отделка; Входная дверь, из сантехпосуды – унитаз; Установка счетчиков воды и электроэнергии; Стеклопакеты ПВХ...
г. Минск, ул. Минина Кузьмы д. 8
91 208 $  
ЖК «Дубравинский» - Дом №3 Работаем напрямую от застройщика по партнерской программе!!! Звоните,подберем выгодный вариант кредитования или рассрочки! Срок сдачи дома – 2027 год. · Конструктивная схема здания – монолитный каркас + силикатные блоки · Этажность – 21; · 3 лифта; Черновая отделка; Входная дверь, из сантехпосуды – унитаз; Установка счетчиков воды и электроэнергии; Стеклопакеты ПВХ...
г. Минск, ул. Минина Кузьмы д. 8
96 729 $  
ЖК «Дубравинский» - Дом №3 Работаем напрямую от застройщика по партнерской программе!!! Звоните,подберем выгодный вариант кредитования или рассрочки! Срок сдачи дома – 2027 год. · Конструктивная схема здания – монолитный каркас + силикатные блоки · Этажность – 21; · 3 лифта; Черновая отделка; Входная дверь, из сантехпосуды – унитаз; Установка счетчиков воды и электроэнергии; Стеклопакеты ПВХ...
г. Минск, ул. Минина Кузьмы д. 8
115 770 $  
ЖК «Дубравинский» - Дом №3 Работаем напрямую от застройщика по партнерской программе!!! Звоните,подберем выгодный вариант кредитования или рассрочки! Срок сдачи дома – 2027 год. · Конструктивная схема здания – монолитный каркас + силикатные блоки · Этажность – 21; · 3 лифта; Черновая отделка; Входная дверь, из сантехпосуды – унитаз; Установка счетчиков воды и электроэнергии; Стеклопакеты ПВХ...
г. Минск, ул. Минина Кузьмы д. 8
129 217 $  
ЖК «Дубравинский» - Дом №3 Работаем напрямую от застройщика по партнерской программе!!! Звоните,подберем выгодный вариант кредитования или рассрочки! Срок сдачи дома – 2027 год. · Конструктивная схема здания – монолитный каркас + силикатные блоки · Этажность – 21; · 3 лифта; Черновая отделка; Входная дверь, из сантехпосуды – унитаз; Установка счетчиков воды и электроэнергии; Стеклопакеты ПВХ...
г. Минск, ул. Минина Кузьмы д. 8
96 729 $  
ЖК «Дубравинский» - Дом №3 Работаем напрямую от застройщика по партнерской программе!!! Звоните,подберем выгодный вариант кредитования или рассрочки! Срок сдачи дома – 2027 год. · Конструктивная схема здания – монолитный каркас + силикатные блоки · Этажность – 21; · 3 лифта; Черновая отделка; Входная дверь, из сантехпосуды – унитаз; Установка счетчиков воды и электроэнергии; Стеклопакеты ПВХ...
г. Минск, ул. Минина Кузьмы д. 8
129 217 $  
ЖК «Дубравинский» - Дом №3 Работаем напрямую от застройщика по партнерской программе!!! Звоните,подберем выгодный вариант кредитования или рассрочки! Срок сдачи дома – 2027 год. · Конструктивная схема здания – монолитный каркас + силикатные блоки · Этажность – 21; · 3 лифта; Черновая отделка; Входная дверь, из сантехпосуды – унитаз; Установка счетчиков воды и электроэнергии; Стеклопакеты ПВХ...
г. Минск, ул. Минина Кузьмы д. 8
118 048 $  
ЖК «Дубравинский» - Дом №3 Работаем напрямую от застройщика по партнерской программе!!! Звоните,подберем выгодный вариант кредитования или рассрочки! Срок сдачи дома – 2027 год. · Конструктивная схема здания – монолитный каркас + силикатные блоки · Этажность – 21; · 3 лифта; Черновая отделка; Входная дверь, из сантехпосуды – унитаз; Установка счетчиков воды и электроэнергии; Стеклопакеты ПВХ...
г. Минск, ул. Минина Кузьмы д. 8
115 039 $  
ЖК «Дубравинский» - Дом №3 Работаем напрямую от застройщика по партнерской программе!!! Звоните,подберем выгодный вариант кредитования или рассрочки! Срок сдачи дома – 2027 год. · Конструктивная схема здания – монолитный каркас + силикатные блоки · Этажность – 21; · 3 лифта; Черновая отделка; Входная дверь, из сантехпосуды – унитаз; Установка счетчиков воды и электроэнергии; Стеклопакеты ПВХ...
г. Минск, ул. Минина Кузьмы д. 8
92 592 $  
ЖК «Дубравинский» - Дом №3 Работаем напрямую от застройщика по партнерской программе!!! Звоните,подберем выгодный вариант кредитования или рассрочки! Срок сдачи дома – 2027 год. · Конструктивная схема здания – монолитный каркас + силикатные блоки · Этажность – 21; · 3 лифта; Черновая отделка; Входная дверь, из сантехпосуды – унитаз; Установка счетчиков воды и электроэнергии; Стеклопакеты ПВХ...
г. Минск, ул. Минина Кузьмы д. 8
92 592 $  
ЖК «Дубравинский» - Дом №3 Работаем напрямую от застройщика по партнерской программе!!! Звоните,подберем выгодный вариант кредитования или рассрочки! Срок сдачи дома – 2027 год. · Конструктивная схема здания – монолитный каркас + силикатные блоки · Этажность – 21; · 3 лифта; Черновая отделка; Входная дверь, из сантехпосуды – унитаз; Установка счетчиков воды и электроэнергии; Стеклопакеты ПВХ...
г. Минск, ул. Минина Кузьмы д. 8
92 592 $  
ЖК «Дубравинский» - Дом №3 Работаем напрямую от застройщика по партнерской программе!!! Звоните,подберем выгодный вариант кредитования или рассрочки! Срок сдачи дома – 2027 год. · Конструктивная схема здания – монолитный каркас + силикатные блоки · Этажность – 21; · 3 лифта; Черновая отделка; Входная дверь, из сантехпосуды – унитаз; Установка счетчиков воды и электроэнергии; Стеклопакеты ПВХ...
г. Минск, ул. Минина Кузьмы д. 8
92 592 $  
ЖК «Дубравинский» - Дом №3 Работаем напрямую от застройщика по партнерской программе!!! Звоните,подберем выгодный вариант кредитования или рассрочки! Срок сдачи дома – 2027 год. · Конструктивная схема здания – монолитный каркас + силикатные блоки · Этажность – 21; · 3 лифта; Черновая отделка; Входная дверь, из сантехпосуды – унитаз; Установка счетчиков воды и электроэнергии; Стеклопакеты ПВХ...
г. Минск, ул. Минина Кузьмы д. 8
92 592 $  
ЖК «Дубравинский» - Дом №3 Работаем напрямую от застройщика по партнерской программе!!! Звоните,подберем выгодный вариант кредитования или рассрочки! Срок сдачи дома – 2027 год. · Конструктивная схема здания – монолитный каркас + силикатные блоки · Этажность – 21; · 3 лифта; Черновая отделка; Входная дверь, из сантехпосуды – унитаз; Установка счетчиков воды и электроэнергии; Стеклопакеты ПВХ...
г. Минск, ул. Минина Кузьмы д. 8
115 753 $  
ЖК «Дубравинский» - Дом №3 Работаем напрямую от застройщика по партнерской программе!!! Звоните,подберем выгодный вариант кредитования или рассрочки! Срок сдачи дома – 2027 год. · Конструктивная схема здания – монолитный каркас + силикатные блоки · Этажность – 21; · 3 лифта; Черновая отделка; Входная дверь, из сантехпосуды – унитаз; Установка счетчиков воды и электроэнергии; Стеклопакеты ПВХ...
г. Минск, ул. Минина Кузьмы д. 8
92 160 $  
Жилая многоквартирная застройка «Дубравинский» с объектами общественного назначения на пересечении ул.Железнодорожной и ул.Кузьмы Минина в центре г.Минска. Самый ответственный , качественный и быстрый Застройщик! Срок сдачи июнь 2027 года, вероятная сдача -конец 2026!!! Конструктивная схема здания – монолитный каркас. Наружные стены выполнены из газосиликатного блока с утеплением (минеральная...
г. Минск, ул. Минина Кузьмы д. 8
118 048 $  
Жилая многоквартирная застройка «Дубравинский» с объектами общественного назначения на пересечении ул.Железнодорожной и ул.Кузьмы Минина в центре г.Минска. Самый ответственный , качественный и быстрый Застройщик! Срок сдачи июнь 2027 года, вероятная сдача -конец 2026!!! Конструктивная схема здания – монолитный каркас. Наружные стены выполнены из газосиликатного блока с утеплением (минеральная...
г. Минск, ул. Минина Кузьмы д. 8
129 217 $  
Жилая многоквартирная застройка «Дубравинский» с объектами общественного назначения на пересечении ул.Железнодорожной и ул.Кузьмы Минина в центре г.Минска. Самый ответственный , качественный и быстрый Застройщик! Срок сдачи июнь 2027 года, вероятная сдача -конец 2026 !!! Конструктивная схема здания – монолитный каркас. Наружные стены выполнены из газосиликатного блока с утеплением...
г. Минск, ул. Минина Кузьмы д. 3
92 952 $  
Квартира в центре города с красивыми видами и парковой зоной — идеальное место для жизни!Тихий и спокойный район в центре города — вы будете в шаговой доступности от всех важных объектов инфраструктуры, но при этом сможете наслаждаться тишиной и уединением.Развита инфраструктура комплекса: детские площадки, места для прогулок с питомцами, парковочные места для жителей комплекса. ООО «ЭТАЖИ...
г. Минск, ул. Минина Кузьмы д. 8
91 208 $  
ЖК Дубравинский. Напрямую от застройщика. Кредит 13,75% на 20 лет. Сдача дома – февраль 2027 год (планируется конец 2026года). Наличие квартиры и цена актуальны на 06.11.2025г. Приобрести квартиру можно: - 100 % оплаты собственными средствами - в кредит - в рассрочку от застройщика Конструктивная схема здания – монолитный каркас. Наружные стены выполнены из газосиликатного блока с утеплением...
г. Минск, ул. Минина Кузьмы д. 8
115 770 $  
ЖК «Дубравинский» - Дом №3 Работаем напрямую от застройщика по партнерской программе!!! Звоните,подберем выгодный вариант кредитования или рассрочки! Срок сдачи дома – 2027 год. · Конструктивная схема здания – монолитный каркас + силикатные блоки · Этажность – 21; · 3 лифта; Черновая отделка; Входная дверь, из сантехпосуды – унитаз; Установка счетчиков воды и электроэнергии; Стеклопакеты ПВХ...
г. Минск, ул. Минина Кузьмы д. 8
115 770 $  
ЖК «Дубравинский» - Дом №3 Работаем напрямую от застройщика по партнерской программе!!! Звоните,подберем выгодный вариант кредитования или рассрочки! Срок сдачи дома – 2027 год. · Конструктивная схема здания – монолитный каркас + силикатные блоки · Этажность – 21; · 3 лифта; Черновая отделка; Входная дверь, из сантехпосуды – унитаз; Установка счетчиков воды и электроэнергии; Стеклопакеты ПВХ...
г. Минск, ул. Минина Кузьмы д. 3
91 208 $  
ЖК Дубравинский. Напрямую от застройщика. Кредит 13,75% на 20 лет. Сдача дома – февраль 2027 год (планируется конец 2026года). Наличие квартиры и цена актуальны на 06.11.2025г. Приобрести квартиру можно: - 100 % оплаты собственными средствами - в кредит - в рассрочку от застройщика Конструктивная схема здания – монолитный каркас. Наружные стены выполнены из газосиликатного блока с утеплением...
г. Минск, ул. Минина Кузьмы д. 6
115 039 $  
ЖК «Дубравинский» - Дом №3 Работаем напрямую от застройщика по партнерской программе!!! Звоните,подберем выгодный вариант кредитования или рассрочки! Срок сдачи дома – 2027 год. · Конструктивная схема здания – монолитный каркас + силикатные блоки · Этажность – 21; · 3 лифта; Черновая отделка; Входная дверь, из сантехпосуды – унитаз; Установка счетчиков воды и электроэнергии; Стеклопакеты ПВХ...
г. Минск, ул. Минина Кузьмы д. 8
93 674 $  
ЖК Дубравинский. Напрямую от застройщика. Кредит 13,75% на 20 лет. Сдача дома – февраль 2027 год (планируется конец 2026года). Наличие квартиры и цена актуальны на 06.11.2025г. Приобрести квартиру можно: - 100 % оплаты собственными средствами - в кредит - в рассрочку от застройщика Конструктивная схема здания – монолитный каркас. Наружные стены выполнены из газосиликатного блока с утеплением...
г. Минск, ул. Минина Кузьмы д. 8
129 217 $  
ЖК «Дубравинский» - Дом №3 Работаем напрямую от застройщика по партнерской программе!!! Звоните,подберем выгодный вариант кредитования или рассрочки! Срок сдачи дома – 2027 год. · Конструктивная схема здания – монолитный каркас + силикатные блоки · Этажность – 21; · 3 лифта; Черновая отделка; Входная дверь, из сантехпосуды – унитаз; Установка счетчиков воды и электроэнергии; Стеклопакеты ПВХ...
г. Минск, ул. Минина Кузьмы д. 8
129 217 $  
ЖК «Дубравинский» - Дом №3 Работаем напрямую от застройщика по партнерской программе!!! Звоните,подберем выгодный вариант кредитования или рассрочки! Срок сдачи дома – 2027 год. · Конструктивная схема здания – монолитный каркас + силикатные блоки · Этажность – 21; · 3 лифта; Черновая отделка; Входная дверь, из сантехпосуды – унитаз; Установка счетчиков воды и электроэнергии; Стеклопакеты ПВХ...
г. Минск, ул. Минина Кузьмы д. 3
129 217 $  
Квартира в центре города с красивыми видами и парковой зоной — идеальное место для жизни!Тихий и спокойный район в центре города — вы будете в шаговой доступности от всех важных объектов инфраструктуры, но при этом сможете наслаждаться тишиной и уединением.Развита инфраструктура комплекса: детские площадки, места для прогулок с питомцами, парковочные места для жителей комплекса. ООО «ЭТАЖИ...
г. Минск, ул. Минина Кузьмы д. 6
91 208 $  
ЖК «Дубравинский» - Дом №3 Работаем напрямую от застройщика по партнерской программе!!! Звоните,подберем выгодный вариант кредитования или рассрочки! Срок сдачи дома – 2027 год. · Конструктивная схема здания – монолитный каркас + силикатные блоки · Этажность – 21; · 3 лифта; Черновая отделка; Входная дверь, из сантехпосуды – унитаз; Установка счетчиков воды и электроэнергии; Стеклопакеты ПВХ...
г. Минск, ул. Минина Кузьмы д. 8
96 728 $  
ЖК «Дубравинский» - Дом №3 Работаем напрямую от застройщика по партнерской программе!!! Звоните,подберем выгодный вариант кредитования или рассрочки! Срок сдачи дома – 2027 год. · Конструктивная схема здания – монолитный каркас + силикатные блоки · Этажность – 21; · 3 лифта; Черновая отделка; Входная дверь, из сантехпосуды – унитаз; Установка счетчиков воды и электроэнергии; Стеклопакеты ПВХ...
г. Минск, ул. Минина Кузьмы д. 6
92 952 $  
ЖК «Дубравинский» - Дом №3 Работаем напрямую от застройщика по партнерской программе!!! Звоните,подберем выгодный вариант кредитования или рассрочки! Срок сдачи дома – 2027 год. · Конструктивная схема здания – монолитный каркас + силикатные блоки · Этажность – 21; · 3 лифта; Черновая отделка; Входная дверь, из сантехпосуды – унитаз; Установка счетчиков воды и электроэнергии; Стеклопакеты ПВХ...
г. Минск, ул. Минина Кузьмы д. 3
118 048 $  
Квартира в центре города с красивыми видами и парковой зоной — идеальное место для жизни!Тихий и спокойный район в центре города — вы будете в шаговой доступности от всех важных объектов инфраструктуры, но при этом сможете наслаждаться тишиной и уединением.Развита инфраструктура комплекса: детские площадки, места для прогулок с питомцами, парковочные места для жителей комплекса. ООО «ЭТАЖИ...
г. Минск, ул. Минина Кузьмы д. 6
92 952 $  
ЖК «Дубравинский» - Дом №3 Работаем напрямую от застройщика по партнерской программе!!! Звоните,подберем выгодный вариант кредитования или рассрочки! Срок сдачи дома – 2027 год. · Конструктивная схема здания – монолитный каркас + силикатные блоки · Этажность – 21; · 3 лифта; Черновая отделка; Входная дверь, из сантехпосуды – унитаз; Установка счетчиков воды и электроэнергии; Стеклопакеты ПВХ...
г. Минск, ул. Минина Кузьмы д. 8
96 728 $  
ЖК «Дубравинский» - Дом №3 Работаем напрямую от застройщика по партнерской программе!!! Звоните,подберем выгодный вариант кредитования или рассрочки! Срок сдачи дома – 2027 год. · Конструктивная схема здания – монолитный каркас + силикатные блоки · Этажность – 21; · 3 лифта; Черновая отделка; Входная дверь, из сантехпосуды – унитаз; Установка счетчиков воды и электроэнергии; Стеклопакеты ПВХ...
г. Минск, ул. Минина Кузьмы д. 8
92 952 $  
ЖК «Дубравинский» - Дом №3 Работаем напрямую от застройщика по партнерской программе!!! Звоните,подберем выгодный вариант кредитования или рассрочки! Срок сдачи дома – 2027 год. · Конструктивная схема здания – монолитный каркас + силикатные блоки · Этажность – 21; · 3 лифта; Черновая отделка; Входная дверь, из сантехпосуды – унитаз; Установка счетчиков воды и электроэнергии; Стеклопакеты ПВХ...
г. Минск, ул. Минина Кузьмы д. 8
92 952 $  
ЖК «Дубравинский» - Дом №3 Работаем напрямую от застройщика по партнерской программе!!! Звоните,подберем выгодный вариант кредитования или рассрочки! Срок сдачи дома – 2027 год. · Конструктивная схема здания – монолитный каркас + силикатные блоки · Этажность – 21; · 3 лифта; Черновая отделка; Входная дверь, из сантехпосуды – унитаз; Установка счетчиков воды и электроэнергии; Стеклопакеты ПВХ...
г. Минск, ул. Минина Кузьмы д. 8
91 208 $  
ЖК «Дубравинский» - Дом №3 Работаем напрямую от застройщика по партнерской программе!!! Звоните,подберем выгодный вариант кредитования или рассрочки! Срок сдачи дома – 2027 год. · Конструктивная схема здания – монолитный каркас + силикатные блоки · Этажность – 21; · 3 лифта; Черновая отделка; Входная дверь, из сантехпосуды – унитаз; Установка счетчиков воды и электроэнергии; Стеклопакеты ПВХ...
г. Минск, ул. Минина Кузьмы д. 3
115 039 $  
Наличные, кредит, рассрочка! * Услуги по продаже новостроек - бесплатные!!! * Напрямую от застройщика, Вы покупаете по цене застройщика и заключаете договор только с застройщиком! * Выполняем функцию отдела продаж застройщика Очень выгодные предложения! О дополнительных скидках расскажу по телефону! Звоните прямо сейчас за подробной информацией! Планировки и цены актуальны на 04.11.2025....
г. Минск, ул. Минина Кузьмы д. 8
96 729 $  
ЖК «Дубравинский» - Дом №3 Работаем напрямую от застройщика по партнерской программе!!! Звоните,подберем выгодный вариант кредитования или рассрочки! Срок сдачи дома – 2027 год. · Конструктивная схема здания – монолитный каркас + силикатные блоки · Этажность – 21; · 3 лифта; Черновая отделка; Входная дверь, из сантехпосуды – унитаз; Установка счетчиков воды и электроэнергии; Стеклопакеты ПВХ...
г. Минск, ул. Минина Кузьмы д. 8
115 770 $  
ЖК «Дубравинский» - Дом №3 Работаем напрямую от застройщика по партнерской программе!!! Звоните,подберем выгодный вариант кредитования или рассрочки! Срок сдачи дома – 2027 год. · Конструктивная схема здания – монолитный каркас + силикатные блоки · Этажность – 21; · 3 лифта; Черновая отделка; Входная дверь, из сантехпосуды – унитаз; Установка счетчиков воды и электроэнергии; Стеклопакеты ПВХ...
г. Минск, ул. Минина Кузьмы д. 8
129 217 $  
ЖК «Дубравинский» - Дом №3 Работаем напрямую от застройщика по партнерской программе!!! Звоните,подберем выгодный вариант кредитования или рассрочки! Срок сдачи дома – 2027 год. · Конструктивная схема здания – монолитный каркас + силикатные блоки · Этажность – 21; · 3 лифта; Черновая отделка; Входная дверь, из сантехпосуды – унитаз; Установка счетчиков воды и электроэнергии; Стеклопакеты ПВХ...
г. Минск, ул. Минина Кузьмы д. 8
96 729 $  
ЖК «Дубравинский» - Дом №3 Работаем напрямую от застройщика по партнерской программе!!! Звоните,подберем выгодный вариант кредитования или рассрочки! Срок сдачи дома – 2027 год. · Конструктивная схема здания – монолитный каркас + силикатные блоки · Этажность – 21; · 3 лифта; Черновая отделка; Входная дверь, из сантехпосуды – унитаз; Установка счетчиков воды и электроэнергии; Стеклопакеты ПВХ...
г. Минск, ул. Минина Кузьмы д. 8
129 217 $  
ЖК «Дубравинский» - Дом №3 Работаем напрямую от застройщика по партнерской программе!!! Звоните,подберем выгодный вариант кредитования или рассрочки! Срок сдачи дома – 2027 год. · Конструктивная схема здания – монолитный каркас + силикатные блоки · Этажность – 21; · 3 лифта; Черновая отделка; Входная дверь, из сантехпосуды – унитаз; Установка счетчиков воды и электроэнергии; Стеклопакеты ПВХ...
г. Минск, ул. Минина Кузьмы д. 8
118 048 $  
ЖК «Дубравинский» - Дом №3 Работаем напрямую от застройщика по партнерской программе!!! Звоните,подберем выгодный вариант кредитования или рассрочки! Срок сдачи дома – 2027 год. · Конструктивная схема здания – монолитный каркас + силикатные блоки · Этажность – 21; · 3 лифта; Черновая отделка; Входная дверь, из сантехпосуды – унитаз; Установка счетчиков воды и электроэнергии; Стеклопакеты ПВХ...
г. Минск, ул. Минина Кузьмы д. 8
115 039 $  
ЖК «Дубравинский» - Дом №3 Работаем напрямую от застройщика по партнерской программе!!! Звоните,подберем выгодный вариант кредитования или рассрочки! Срок сдачи дома – 2027 год. · Конструктивная схема здания – монолитный каркас + силикатные блоки · Этажность – 21; · 3 лифта; Черновая отделка; Входная дверь, из сантехпосуды – унитаз; Установка счетчиков воды и электроэнергии; Стеклопакеты ПВХ...
г. Минск, ул. Минина Кузьмы д. 8
92 592 $  
ЖК «Дубравинский» - Дом №3 Работаем напрямую от застройщика по партнерской программе!!! Звоните,подберем выгодный вариант кредитования или рассрочки! Срок сдачи дома – 2027 год. · Конструктивная схема здания – монолитный каркас + силикатные блоки · Этажность – 21; · 3 лифта; Черновая отделка; Входная дверь, из сантехпосуды – унитаз; Установка счетчиков воды и электроэнергии; Стеклопакеты ПВХ...
г. Минск, ул. Минина Кузьмы д. 8
92 592 $  
ЖК «Дубравинский» - Дом №3 Работаем напрямую от застройщика по партнерской программе!!! Звоните,подберем выгодный вариант кредитования или рассрочки! Срок сдачи дома – 2027 год. · Конструктивная схема здания – монолитный каркас + силикатные блоки · Этажность – 21; · 3 лифта; Черновая отделка; Входная дверь, из сантехпосуды – унитаз; Установка счетчиков воды и электроэнергии; Стеклопакеты ПВХ...
г. Минск, ул. Минина Кузьмы д. 8
92 592 $  
ЖК «Дубравинский» - Дом №3 Работаем напрямую от застройщика по партнерской программе!!! Звоните,подберем выгодный вариант кредитования или рассрочки! Срок сдачи дома – 2027 год. · Конструктивная схема здания – монолитный каркас + силикатные блоки · Этажность – 21; · 3 лифта; Черновая отделка; Входная дверь, из сантехпосуды – унитаз; Установка счетчиков воды и электроэнергии; Стеклопакеты ПВХ...
г. Минск, ул. Минина Кузьмы д. 3
115 039 $  
Наличные, кредит, рассрочка! * Услуги по продаже новостроек - бесплатные!!! * Напрямую от застройщика, Вы покупаете по цене застройщика и заключаете договор только с застройщиком! * Выполняем функцию отдела продаж застройщика Очень выгодные предложения! О дополнительных скидках расскажу по телефону! Звоните прямо сейчас за подробной информацией! Планировки и цены актуальны на 03.11.2025....
г. Минск, ул. Минина Кузьмы д. 8
92 592 $  
ЖК «Дубравинский» - Дом №3 Работаем напрямую от застройщика по партнерской программе!!! Звоните,подберем выгодный вариант кредитования или рассрочки! Срок сдачи дома – 2027 год. · Конструктивная схема здания – монолитный каркас + силикатные блоки · Этажность – 21; · 3 лифта; Черновая отделка; Входная дверь, из сантехпосуды – унитаз; Установка счетчиков воды и электроэнергии; Стеклопакеты ПВХ...
г. Минск, ул. Минина Кузьмы д. 8
92 592 $  
ЖК «Дубравинский» - Дом №3 Работаем напрямую от застройщика по партнерской программе!!! Звоните,подберем выгодный вариант кредитования или рассрочки! Срок сдачи дома – 2027 год. · Конструктивная схема здания – монолитный каркас + силикатные блоки · Этажность – 21; · 3 лифта; Черновая отделка; Входная дверь, из сантехпосуды – унитаз; Установка счетчиков воды и электроэнергии; Стеклопакеты ПВХ...
г. Минск, ул. Минина Кузьмы д. 8
115 753 $  
ЖК «Дубравинский» - Дом №3 Работаем напрямую от застройщика по партнерской программе!!! Звоните,подберем выгодный вариант кредитования или рассрочки! Срок сдачи дома – 2027 год. · Конструктивная схема здания – монолитный каркас + силикатные блоки · Этажность – 21; · 3 лифта; Черновая отделка; Входная дверь, из сантехпосуды – унитаз; Установка счетчиков воды и электроэнергии; Стеклопакеты ПВХ...
г. Минск, ул. Минина Кузьмы д. 3
92 160 $  
Наличные, кредит, рассрочка! * Услуги по продаже новостроек - бесплатные!!! * Напрямую от застройщика, Вы покупаете по цене застройщика и заключаете договор только с застройщиком! * Выполняем функцию отдела продаж застройщика Очень выгодные предложения! О дополнительных скидках расскажу по телефону! Звоните прямо сейчас за подробной информацией! Планировки и цены актуальны на 31.10.2025....
г. Минск, ул. Минина Кузьмы д. 3
92 952 $  
Наличные, кредит, рассрочка! * Услуги по продаже новостроек - бесплатные!!! * Напрямую от застройщика, Вы покупаете по цене застройщика и заключаете договор только с застройщиком! * Выполняем функцию отдела продаж застройщика Очень выгодные предложения! О дополнительных скидках расскажу по телефону! Звоните прямо сейчас за подробной информацией! Планировки и цены актуальны на 31.10.2025....
г. Минск, ул. Минина Кузьмы д. 3
129 234 $  
Наличные, кредит, рассрочка! * Услуги по продаже новостроек - бесплатные!!! * Напрямую от застройщика, Вы покупаете по цене застройщика и заключаете договор только с застройщиком! * Выполняем функцию отдела продаж застройщика Очень выгодные предложения! О дополнительных скидках расскажу по телефону! Звоните прямо сейчас за подробной информацией! Планировки и цены актуальны на 30.10.2025....
г. Минск, ул. Минина Кузьмы д. 3
129 217 $  
Наличные, кредит, рассрочка! * Услуги по продаже новостроек - бесплатные!!! * Напрямую от застройщика, Вы покупаете по цене застройщика и заключаете договор только с застройщиком! * Выполняем функцию отдела продаж застройщика Очень выгодные предложения! О дополнительных скидках расскажу по телефону! Звоните прямо сейчас за подробной информацией! Планировки и цены актуальны на 30.10.2025....
г. Минск, ул. Минина Кузьмы д. 8
92 160 $  
Жилая многоквартирная застройка «Дубравинский» с объектами общественного назначения на пересечении ул.Железнодорожной и ул.Кузьмы Минина в центре г.Минска. Самый ответственный , качественный и быстрый Застройщик! Срок сдачи июнь 2027 года, вероятная сдача -конец 2026!!! Конструктивная схема здания – монолитный каркас. Наружные стены выполнены из газосиликатного блока с утеплением (минеральная...
г. Минск, ул. Минина Кузьмы д. 3
115 753 $  
Наличные, кредит, рассрочка! * Услуги по продаже новостроек - бесплатные!!! * Напрямую от застройщика, Вы покупаете по цене застройщика и заключаете договор только с застройщиком! * Выполняем функцию отдела продаж застройщика Очень выгодные предложения! О дополнительных скидках расскажу по телефону! Звоните прямо сейчас за подробной информацией! Планировки и цены актуальны на 29.10.2025....
г. Минск, ул. Минина Кузьмы д. 3
115 039 $  
Наличные, кредит, рассрочка! * Услуги по продаже новостроек - бесплатные!!! * Напрямую от застройщика, Вы покупаете по цене застройщика и заключаете договор только с застройщиком! * Выполняем функцию отдела продаж застройщика Очень выгодные предложения! О дополнительных скидках расскажу по телефону! Звоните прямо сейчас за подробной информацией! Планировки и цены актуальны на 29.10.2025....
г. Минск, ул. Минина Кузьмы д. 8
118 048 $  
Жилая многоквартирная застройка «Дубравинский» с объектами общественного назначения на пересечении ул.Железнодорожной и ул.Кузьмы Минина в центре г.Минска. Самый ответственный , качественный и быстрый Застройщик! Срок сдачи июнь 2027 года, вероятная сдача -конец 2026!!! Конструктивная схема здания – монолитный каркас. Наружные стены выполнены из газосиликатного блока с утеплением (минеральная...
г. Минск, ул. Минина Кузьмы д. 3
92 952 $  
Наличные, кредит, рассрочка! * Услуги по продаже новостроек - бесплатные!!! * Напрямую от застройщика, Вы покупаете по цене застройщика и заключаете договор только с застройщиком! * Выполняем функцию отдела продаж застройщика Очень выгодные предложения! О дополнительных скидках расскажу по телефону! Звоните прямо сейчас за подробной информацией! Планировки и цены актуальны на 28.10.2025....
г. Минск, ул. Минина Кузьмы д. 8
129 217 $  
Жилая многоквартирная застройка «Дубравинский» с объектами общественного назначения на пересечении ул.Железнодорожной и ул.Кузьмы Минина в центре г.Минска. Самый ответственный , качественный и быстрый Застройщик! Срок сдачи июнь 2027 года, вероятная сдача -конец 2026 !!! Конструктивная схема здания – монолитный каркас. Наружные стены выполнены из газосиликатного блока с утеплением...
г. Минск, ул. Розы Люксембург д. 147
135 000 $  
Современное место для комфортной жизни - 3-комнатная квартира! Предлагаем вашему вниманию трёхкомнатную квартиру, расположенную в одном из самых благоустроенных современных районов г.Минска, рядом с метро Грушевка. Адрес: г.Минск, ул.Розы Люксембург, дом 147. Многим при выборе жилья важно сразу несколько основных факторов - месторасположение дома и качество ремонта. Здесь вы найдёте и то, и...
г. Минск, ул. Грушевская д. 71
190 000 $  
Продаётся светлая и просторная 3-комнатная квартира площадью 75,6 м2 с современным интерьером в жилом доме по ул.Грушевская,71. Это не просто квадратные метры, это продуманное до мелочей пространство, где каждая деталь создана для вашего максимального комфорта, стиля и уюта. Квартира полностью готова к переезду и проживанию, оборудована всей необходимой бытовой техникой и мебелью! В доме чистый...
375 ... показать телефон Специалист по недвижимости
г. Минск, ул. Минина Кузьмы д. 3
92 952 $  
Квартира в центре города с красивыми видами и парковой зоной — идеальное место для жизни!Тихий и спокойный район в центре города — вы будете в шаговой доступности от всех важных объектов инфраструктуры, но при этом сможете наслаждаться тишиной и уединением.Развита инфраструктура комплекса: детские площадки, места для прогулок с питомцами, парковочные места для жителей комплекса. ООО «ЭТАЖИ...
г. Минск, ул. Минина Кузьмы д. 8
91 208 $  
ЖК Дубравинский. Напрямую от застройщика. Кредит 13,75% на 20 лет. Сдача дома – февраль 2027 год (планируется конец 2026года). Наличие квартиры и цена актуальны на 06.11.2025г. Приобрести квартиру можно: - 100 % оплаты собственными средствами - в кредит - в рассрочку от застройщика Конструктивная схема здания – монолитный каркас. Наружные стены выполнены из газосиликатного блока с утеплением...
г. Минск, ул. Минина Кузьмы д. 8
115 770 $  
ЖК «Дубравинский» - Дом №3 Работаем напрямую от застройщика по партнерской программе!!! Звоните,подберем выгодный вариант кредитования или рассрочки! Срок сдачи дома – 2027 год. · Конструктивная схема здания – монолитный каркас + силикатные блоки · Этажность – 21; · 3 лифта; Черновая отделка; Входная дверь, из сантехпосуды – унитаз; Установка счетчиков воды и электроэнергии; Стеклопакеты ПВХ...
г. Минск, ул. Минина Кузьмы д. 8
115 770 $  
ЖК «Дубравинский» - Дом №3 Работаем напрямую от застройщика по партнерской программе!!! Звоните,подберем выгодный вариант кредитования или рассрочки! Срок сдачи дома – 2027 год. · Конструктивная схема здания – монолитный каркас + силикатные блоки · Этажность – 21; · 3 лифта; Черновая отделка; Входная дверь, из сантехпосуды – унитаз; Установка счетчиков воды и электроэнергии; Стеклопакеты ПВХ...
г. Минск, ул. Курганная д. 35
99 000 $  
Евродвушка в клубном доме из красного кирпича на Курганной! Описание квартиры и дома: · Малоэтажный кирпичный дом 2025 года постройки. · Общая площадь квартиры по СНБ – 47,7 м.кв. · Кухня-гостиная – 17,7 м.кв, спальня – 14,2 м.кв., санузел – 4,5 м.кв. · Стены оштукатурены, ровная стяжка пола, идеальные углы. · Разведена электрика. · Установлены котел, бойлер, полотенцесушитель, унитаз,...
г. Минск, ул. Минина Кузьмы д. 3
91 208 $  
ЖК Дубравинский. Напрямую от застройщика. Кредит 13,75% на 20 лет. Сдача дома – февраль 2027 год (планируется конец 2026года). Наличие квартиры и цена актуальны на 06.11.2025г. Приобрести квартиру можно: - 100 % оплаты собственными средствами - в кредит - в рассрочку от застройщика Конструктивная схема здания – монолитный каркас. Наружные стены выполнены из газосиликатного блока с утеплением...
г. Минск, ул. Минина Кузьмы д. 6
115 039 $  
ЖК «Дубравинский» - Дом №3 Работаем напрямую от застройщика по партнерской программе!!! Звоните,подберем выгодный вариант кредитования или рассрочки! Срок сдачи дома – 2027 год. · Конструктивная схема здания – монолитный каркас + силикатные блоки · Этажность – 21; · 3 лифта; Черновая отделка; Входная дверь, из сантехпосуды – унитаз; Установка счетчиков воды и электроэнергии; Стеклопакеты ПВХ...
г. Минск, ул. Минина Кузьмы д. 8
93 674 $  
ЖК Дубравинский. Напрямую от застройщика. Кредит 13,75% на 20 лет. Сдача дома – февраль 2027 год (планируется конец 2026года). Наличие квартиры и цена актуальны на 06.11.2025г. Приобрести квартиру можно: - 100 % оплаты собственными средствами - в кредит - в рассрочку от застройщика Конструктивная схема здания – монолитный каркас. Наружные стены выполнены из газосиликатного блока с утеплением...
г. Минск, ул. Минина Кузьмы д. 8
129 217 $  
ЖК «Дубравинский» - Дом №3 Работаем напрямую от застройщика по партнерской программе!!! Звоните,подберем выгодный вариант кредитования или рассрочки! Срок сдачи дома – 2027 год. · Конструктивная схема здания – монолитный каркас + силикатные блоки · Этажность – 21; · 3 лифта; Черновая отделка; Входная дверь, из сантехпосуды – унитаз; Установка счетчиков воды и электроэнергии; Стеклопакеты ПВХ...
г. Минск, ул. Минина Кузьмы д. 8
129 217 $  
ЖК «Дубравинский» - Дом №3 Работаем напрямую от застройщика по партнерской программе!!! Звоните,подберем выгодный вариант кредитования или рассрочки! Срок сдачи дома – 2027 год. · Конструктивная схема здания – монолитный каркас + силикатные блоки · Этажность – 21; · 3 лифта; Черновая отделка; Входная дверь, из сантехпосуды – унитаз; Установка счетчиков воды и электроэнергии; Стеклопакеты ПВХ...
г. Минск, ул. Минина Кузьмы д. 3
129 217 $  
Квартира в центре города с красивыми видами и парковой зоной — идеальное место для жизни!Тихий и спокойный район в центре города — вы будете в шаговой доступности от всех важных объектов инфраструктуры, но при этом сможете наслаждаться тишиной и уединением.Развита инфраструктура комплекса: детские площадки, места для прогулок с питомцами, парковочные места для жителей комплекса. ООО «ЭТАЖИ...
г. Минск, ул. Минина Кузьмы д. 6
91 208 $  
ЖК «Дубравинский» - Дом №3 Работаем напрямую от застройщика по партнерской программе!!! Звоните,подберем выгодный вариант кредитования или рассрочки! Срок сдачи дома – 2027 год. · Конструктивная схема здания – монолитный каркас + силикатные блоки · Этажность – 21; · 3 лифта; Черновая отделка; Входная дверь, из сантехпосуды – унитаз; Установка счетчиков воды и электроэнергии; Стеклопакеты ПВХ...
г. Минск, ул. Минина Кузьмы д. 8
96 728 $  
ЖК «Дубравинский» - Дом №3 Работаем напрямую от застройщика по партнерской программе!!! Звоните,подберем выгодный вариант кредитования или рассрочки! Срок сдачи дома – 2027 год. · Конструктивная схема здания – монолитный каркас + силикатные блоки · Этажность – 21; · 3 лифта; Черновая отделка; Входная дверь, из сантехпосуды – унитаз; Установка счетчиков воды и электроэнергии; Стеклопакеты ПВХ...
г. Минск, ул. Минина Кузьмы д. 6
92 952 $  
ЖК «Дубравинский» - Дом №3 Работаем напрямую от застройщика по партнерской программе!!! Звоните,подберем выгодный вариант кредитования или рассрочки! Срок сдачи дома – 2027 год. · Конструктивная схема здания – монолитный каркас + силикатные блоки · Этажность – 21; · 3 лифта; Черновая отделка; Входная дверь, из сантехпосуды – унитаз; Установка счетчиков воды и электроэнергии; Стеклопакеты ПВХ...
г. Минск, ул. Минина Кузьмы д. 3
118 048 $  
Квартира в центре города с красивыми видами и парковой зоной — идеальное место для жизни!Тихий и спокойный район в центре города — вы будете в шаговой доступности от всех важных объектов инфраструктуры, но при этом сможете наслаждаться тишиной и уединением.Развита инфраструктура комплекса: детские площадки, места для прогулок с питомцами, парковочные места для жителей комплекса. ООО «ЭТАЖИ...
г. Минск, ул. Минина Кузьмы д. 6
92 952 $  
ЖК «Дубравинский» - Дом №3 Работаем напрямую от застройщика по партнерской программе!!! Звоните,подберем выгодный вариант кредитования или рассрочки! Срок сдачи дома – 2027 год. · Конструктивная схема здания – монолитный каркас + силикатные блоки · Этажность – 21; · 3 лифта; Черновая отделка; Входная дверь, из сантехпосуды – унитаз; Установка счетчиков воды и электроэнергии; Стеклопакеты ПВХ...
г. Минск, ул. Минина Кузьмы д. 8
96 728 $  
ЖК «Дубравинский» - Дом №3 Работаем напрямую от застройщика по партнерской программе!!! Звоните,подберем выгодный вариант кредитования или рассрочки! Срок сдачи дома – 2027 год. · Конструктивная схема здания – монолитный каркас + силикатные блоки · Этажность – 21; · 3 лифта; Черновая отделка; Входная дверь, из сантехпосуды – унитаз; Установка счетчиков воды и электроэнергии; Стеклопакеты ПВХ...
г. Минск, ул. Минина Кузьмы д. 8
92 952 $  
ЖК «Дубравинский» - Дом №3 Работаем напрямую от застройщика по партнерской программе!!! Звоните,подберем выгодный вариант кредитования или рассрочки! Срок сдачи дома – 2027 год. · Конструктивная схема здания – монолитный каркас + силикатные блоки · Этажность – 21; · 3 лифта; Черновая отделка; Входная дверь, из сантехпосуды – унитаз; Установка счетчиков воды и электроэнергии; Стеклопакеты ПВХ...
г. Минск, ул. Минина Кузьмы д. 8
92 952 $  
ЖК «Дубравинский» - Дом №3 Работаем напрямую от застройщика по партнерской программе!!! Звоните,подберем выгодный вариант кредитования или рассрочки! Срок сдачи дома – 2027 год. · Конструктивная схема здания – монолитный каркас + силикатные блоки · Этажность – 21; · 3 лифта; Черновая отделка; Входная дверь, из сантехпосуды – унитаз; Установка счетчиков воды и электроэнергии; Стеклопакеты ПВХ...
г. Минск, ул. Минина Кузьмы д. 8
91 208 $  
ЖК «Дубравинский» - Дом №3 Работаем напрямую от застройщика по партнерской программе!!! Звоните,подберем выгодный вариант кредитования или рассрочки! Срок сдачи дома – 2027 год. · Конструктивная схема здания – монолитный каркас + силикатные блоки · Этажность – 21; · 3 лифта; Черновая отделка; Входная дверь, из сантехпосуды – унитаз; Установка счетчиков воды и электроэнергии; Стеклопакеты ПВХ...
г. Минск, ул. Минина Кузьмы д. 3
115 039 $  
Наличные, кредит, рассрочка! * Услуги по продаже новостроек - бесплатные!!! * Напрямую от застройщика, Вы покупаете по цене застройщика и заключаете договор только с застройщиком! * Выполняем функцию отдела продаж застройщика Очень выгодные предложения! О дополнительных скидках расскажу по телефону! Звоните прямо сейчас за подробной информацией! Планировки и цены актуальны на 04.11.2025....
г. Минск, ул. Минина Кузьмы д. 8
96 729 $  
ЖК «Дубравинский» - Дом №3 Работаем напрямую от застройщика по партнерской программе!!! Звоните,подберем выгодный вариант кредитования или рассрочки! Срок сдачи дома – 2027 год. · Конструктивная схема здания – монолитный каркас + силикатные блоки · Этажность – 21; · 3 лифта; Черновая отделка; Входная дверь, из сантехпосуды – унитаз; Установка счетчиков воды и электроэнергии; Стеклопакеты ПВХ...
г. Минск, ул. Минина Кузьмы д. 8
115 770 $  
ЖК «Дубравинский» - Дом №3 Работаем напрямую от застройщика по партнерской программе!!! Звоните,подберем выгодный вариант кредитования или рассрочки! Срок сдачи дома – 2027 год. · Конструктивная схема здания – монолитный каркас + силикатные блоки · Этажность – 21; · 3 лифта; Черновая отделка; Входная дверь, из сантехпосуды – унитаз; Установка счетчиков воды и электроэнергии; Стеклопакеты ПВХ...
г. Минск, пр. Дзержинского д. 119
250 000 $  
Высокий этаж и открытый вид из окон делают квартиру особенно уютной и наполненной светом. Общая — 95,9 м2 (по СНБ — 100,6 м2). Окна на две стороны дома — квартира светлая и тихая. Планировка согласована. Подъезд с двумя выходами: во двор и к метро — удобно с коляской и покупками. В стоимость входит машиноместо в подземном паркинге.Зонирование Две изолированные спальни и просторная...
г. Минск, ул. Минина Кузьмы д. 8
129 217 $  
ЖК «Дубравинский» - Дом №3 Работаем напрямую от застройщика по партнерской программе!!! Звоните,подберем выгодный вариант кредитования или рассрочки! Срок сдачи дома – 2027 год. · Конструктивная схема здания – монолитный каркас + силикатные блоки · Этажность – 21; · 3 лифта; Черновая отделка; Входная дверь, из сантехпосуды – унитаз; Установка счетчиков воды и электроэнергии; Стеклопакеты ПВХ...
г. Минск, ул. Минина Кузьмы д. 8
96 729 $  
ЖК «Дубравинский» - Дом №3 Работаем напрямую от застройщика по партнерской программе!!! Звоните,подберем выгодный вариант кредитования или рассрочки! Срок сдачи дома – 2027 год. · Конструктивная схема здания – монолитный каркас + силикатные блоки · Этажность – 21; · 3 лифта; Черновая отделка; Входная дверь, из сантехпосуды – унитаз; Установка счетчиков воды и электроэнергии; Стеклопакеты ПВХ...
г. Минск, ул. Минина Кузьмы д. 8
129 217 $  
ЖК «Дубравинский» - Дом №3 Работаем напрямую от застройщика по партнерской программе!!! Звоните,подберем выгодный вариант кредитования или рассрочки! Срок сдачи дома – 2027 год. · Конструктивная схема здания – монолитный каркас + силикатные блоки · Этажность – 21; · 3 лифта; Черновая отделка; Входная дверь, из сантехпосуды – унитаз; Установка счетчиков воды и электроэнергии; Стеклопакеты ПВХ...
г. Минск, ул. Разинская д. 4
89 000 $  
Продаётся светлая, уютная квартира-студия в центре Минска у метро Грушевка. ЖК «Минский квартал», дом 2024 года постройки. Квартира расположена на 5-м этаже 17-этажного дома. В квартире выполнена новая современная отделка с использованием качественных материалов, грамотно распределено пространство. Имеется зона отдыха, кухня, прихожая и совмещённый санузел. Кухня оснащена всей необходимой...
г. Минск, ул. Минина Кузьмы д. 8
118 048 $  
ЖК «Дубравинский» - Дом №3 Работаем напрямую от застройщика по партнерской программе!!! Звоните,подберем выгодный вариант кредитования или рассрочки! Срок сдачи дома – 2027 год. · Конструктивная схема здания – монолитный каркас + силикатные блоки · Этажность – 21; · 3 лифта; Черновая отделка; Входная дверь, из сантехпосуды – унитаз; Установка счетчиков воды и электроэнергии; Стеклопакеты ПВХ...
г. Минск, ул. Минина Кузьмы д. 8
115 039 $  
ЖК «Дубравинский» - Дом №3 Работаем напрямую от застройщика по партнерской программе!!! Звоните,подберем выгодный вариант кредитования или рассрочки! Срок сдачи дома – 2027 год. · Конструктивная схема здания – монолитный каркас + силикатные блоки · Этажность – 21; · 3 лифта; Черновая отделка; Входная дверь, из сантехпосуды – унитаз; Установка счетчиков воды и электроэнергии; Стеклопакеты ПВХ...
г. Минск, ул. Минина Кузьмы д. 8
92 592 $  
ЖК «Дубравинский» - Дом №3 Работаем напрямую от застройщика по партнерской программе!!! Звоните,подберем выгодный вариант кредитования или рассрочки! Срок сдачи дома – 2027 год. · Конструктивная схема здания – монолитный каркас + силикатные блоки · Этажность – 21; · 3 лифта; Черновая отделка; Входная дверь, из сантехпосуды – унитаз; Установка счетчиков воды и электроэнергии; Стеклопакеты ПВХ...
г. Минск, ул. Минина Кузьмы д. 8
92 592 $  
ЖК «Дубравинский» - Дом №3 Работаем напрямую от застройщика по партнерской программе!!! Звоните,подберем выгодный вариант кредитования или рассрочки! Срок сдачи дома – 2027 год. · Конструктивная схема здания – монолитный каркас + силикатные блоки · Этажность – 21; · 3 лифта; Черновая отделка; Входная дверь, из сантехпосуды – унитаз; Установка счетчиков воды и электроэнергии; Стеклопакеты ПВХ...
г. Минск, ул. Минина Кузьмы д. 8
92 592 $  
ЖК «Дубравинский» - Дом №3 Работаем напрямую от застройщика по партнерской программе!!! Звоните,подберем выгодный вариант кредитования или рассрочки! Срок сдачи дома – 2027 год. · Конструктивная схема здания – монолитный каркас + силикатные блоки · Этажность – 21; · 3 лифта; Черновая отделка; Входная дверь, из сантехпосуды – унитаз; Установка счетчиков воды и электроэнергии; Стеклопакеты ПВХ...
г. Минск, ул. Минина Кузьмы д. 3
115 039 $  
Наличные, кредит, рассрочка! * Услуги по продаже новостроек - бесплатные!!! * Напрямую от застройщика, Вы покупаете по цене застройщика и заключаете договор только с застройщиком! * Выполняем функцию отдела продаж застройщика Очень выгодные предложения! О дополнительных скидках расскажу по телефону! Звоните прямо сейчас за подробной информацией! Планировки и цены актуальны на 03.11.2025....
г. Минск, ул. Минина Кузьмы д. 8
92 592 $  
ЖК «Дубравинский» - Дом №3 Работаем напрямую от застройщика по партнерской программе!!! Звоните,подберем выгодный вариант кредитования или рассрочки! Срок сдачи дома – 2027 год. · Конструктивная схема здания – монолитный каркас + силикатные блоки · Этажность – 21; · 3 лифта; Черновая отделка; Входная дверь, из сантехпосуды – унитаз; Установка счетчиков воды и электроэнергии; Стеклопакеты ПВХ...
г. Минск, ул. Минина Кузьмы д. 8
92 592 $  
ЖК «Дубравинский» - Дом №3 Работаем напрямую от застройщика по партнерской программе!!! Звоните,подберем выгодный вариант кредитования или рассрочки! Срок сдачи дома – 2027 год. · Конструктивная схема здания – монолитный каркас + силикатные блоки · Этажность – 21; · 3 лифта; Черновая отделка; Входная дверь, из сантехпосуды – унитаз; Установка счетчиков воды и электроэнергии; Стеклопакеты ПВХ...
г. Минск, ул. Минина Кузьмы д. 8
115 753 $  
ЖК «Дубравинский» - Дом №3 Работаем напрямую от застройщика по партнерской программе!!! Звоните,подберем выгодный вариант кредитования или рассрочки! Срок сдачи дома – 2027 год. · Конструктивная схема здания – монолитный каркас + силикатные блоки · Этажность – 21; · 3 лифта; Черновая отделка; Входная дверь, из сантехпосуды – унитаз; Установка счетчиков воды и электроэнергии; Стеклопакеты ПВХ...
г. Минск, ул. Минина Кузьмы д. 3
92 160 $  
Наличные, кредит, рассрочка! * Услуги по продаже новостроек - бесплатные!!! * Напрямую от застройщика, Вы покупаете по цене застройщика и заключаете договор только с застройщиком! * Выполняем функцию отдела продаж застройщика Очень выгодные предложения! О дополнительных скидках расскажу по телефону! Звоните прямо сейчас за подробной информацией! Планировки и цены актуальны на 31.10.2025....
г. Минск, ул. Минина Кузьмы д. 3
92 952 $  
Наличные, кредит, рассрочка! * Услуги по продаже новостроек - бесплатные!!! * Напрямую от застройщика, Вы покупаете по цене застройщика и заключаете договор только с застройщиком! * Выполняем функцию отдела продаж застройщика Очень выгодные предложения! О дополнительных скидках расскажу по телефону! Звоните прямо сейчас за подробной информацией! Планировки и цены актуальны на 31.10.2025....
г. Минск, ул. Минина Кузьмы д. 3
129 234 $  
Наличные, кредит, рассрочка! * Услуги по продаже новостроек - бесплатные!!! * Напрямую от застройщика, Вы покупаете по цене застройщика и заключаете договор только с застройщиком! * Выполняем функцию отдела продаж застройщика Очень выгодные предложения! О дополнительных скидках расскажу по телефону! Звоните прямо сейчас за подробной информацией! Планировки и цены актуальны на 30.10.2025....
г. Минск, ул. Либкнехта д. 55
124 900 $  
Продается светлая и просторная двухкомнатная квартира в новостройке! Дом только сдался! Квартира без отделки – прекрасная возможность сделать именно такой ремонт, как нужно вам, а также реализовать свои дизайнерские идеи. - Идеальная планировка – на две стороны дома! - Две большие изолированные комнаты - Просторная кухня - Раздельный санузел - Застекленная широкая лоджия - Везде установлены...
г. Минск, ул. Минина Кузьмы д. 3
129 217 $  
Наличные, кредит, рассрочка! * Услуги по продаже новостроек - бесплатные!!! * Напрямую от застройщика, Вы покупаете по цене застройщика и заключаете договор только с застройщиком! * Выполняем функцию отдела продаж застройщика Очень выгодные предложения! О дополнительных скидках расскажу по телефону! Звоните прямо сейчас за подробной информацией! Планировки и цены актуальны на 30.10.2025....
г. Минск, ул. Минина Кузьмы д. 8
92 160 $  
Жилая многоквартирная застройка «Дубравинский» с объектами общественного назначения на пересечении ул.Железнодорожной и ул.Кузьмы Минина в центре г.Минска. Самый ответственный , качественный и быстрый Застройщик! Срок сдачи июнь 2027 года, вероятная сдача -конец 2026!!! Конструктивная схема здания – монолитный каркас. Наружные стены выполнены из газосиликатного блока с утеплением (минеральная...
г. Минск, ул. Минина Кузьмы д. 3
115 753 $  
Наличные, кредит, рассрочка! * Услуги по продаже новостроек - бесплатные!!! * Напрямую от застройщика, Вы покупаете по цене застройщика и заключаете договор только с застройщиком! * Выполняем функцию отдела продаж застройщика Очень выгодные предложения! О дополнительных скидках расскажу по телефону! Звоните прямо сейчас за подробной информацией! Планировки и цены актуальны на 29.10.2025....
г. Минск, ул. Минина Кузьмы д. 3
115 039 $  
Наличные, кредит, рассрочка! * Услуги по продаже новостроек - бесплатные!!! * Напрямую от застройщика, Вы покупаете по цене застройщика и заключаете договор только с застройщиком! * Выполняем функцию отдела продаж застройщика Очень выгодные предложения! О дополнительных скидках расскажу по телефону! Звоните прямо сейчас за подробной информацией! Планировки и цены актуальны на 29.10.2025....
г. Минск, ул. Минина Кузьмы д. 8
118 048 $  
Жилая многоквартирная застройка «Дубравинский» с объектами общественного назначения на пересечении ул.Железнодорожной и ул.Кузьмы Минина в центре г.Минска. Самый ответственный , качественный и быстрый Застройщик! Срок сдачи июнь 2027 года, вероятная сдача -конец 2026!!! Конструктивная схема здания – монолитный каркас. Наружные стены выполнены из газосиликатного блока с утеплением (минеральная...
г. Минск, ул. Минина Кузьмы д. 3
92 952 $  
Наличные, кредит, рассрочка! * Услуги по продаже новостроек - бесплатные!!! * Напрямую от застройщика, Вы покупаете по цене застройщика и заключаете договор только с застройщиком! * Выполняем функцию отдела продаж застройщика Очень выгодные предложения! О дополнительных скидках расскажу по телефону! Звоните прямо сейчас за подробной информацией! Планировки и цены актуальны на 28.10.2025....
г. Минск, ул. Минина Кузьмы д. 8
129 217 $  
Жилая многоквартирная застройка «Дубравинский» с объектами общественного назначения на пересечении ул.Железнодорожной и ул.Кузьмы Минина в центре г.Минска. Самый ответственный , качественный и быстрый Застройщик! Срок сдачи июнь 2027 года, вероятная сдача -конец 2026 !!! Конструктивная схема здания – монолитный каркас. Наружные стены выполнены из газосиликатного блока с утеплением...
г. Минск, ул. Леонида Щемелёва д. 16
113 279 $  
Работаем напрямую от застройщика по партнерской программе! Выгодное предложение!!! Звоните за более подробной информацией! Стоимость актуальна на дату размещения 10.11.2025. Подробную актуальную информацию уточняйте по телефону. Успейте купить квартиру в доме «Панама-Сити» в жилом квартале «Южная Америка». Возможность бесплатно забронировать квартиру на месяц при продаже своей квартиры через АН...
г. Минск, ул. Жореса Алферова д. 11
122 858 $  
Работаем напрямую от застройщика по партнерской программе (без комиссий)!!! Выгодное предложение!!! Звоните за более подробной информацией! Стоимость актуальна на дату размещения 10.11.2025. Подробную актуальную информацию уточняйте по телефону. Успейте купить квартиру в доме «Брюссель» в жилом квартале «Западная Европа». Возможность забронировать квартиру на месяц при продаже своей квартиры...
375 ... показать телефон Спиридонов Дмитрий
Минская обл. п. Колодищи д. 7
82 496 $  
Ищете современное жилье с уникальными преимуществами? СитиХаус 7.12 — это дом комфорт-класса, который сочетает в себе качество, инновационные технологии и продуманные детали для вашего комфорта. Передовая технология строительства: Дом будет возведен с использованием технологии «Префаб монолит», которая гарантирует высокое качество и долговечность. Контролируемое заводское производство — это...
г. Минск, ул. Леонида Щемелёва д. 18
120 703 $  
Расчет рассрочки, кредита! Работаем напрямую от застройщика по партнерской программе (без комиссий)!!! Выгодное предложение!!! Звоните за более подробной информацией! Стоимость актуальна на дату размещения 10.11.2025. Подробную актуальную информацию уточняйте по телефону. Успейте купить квартиру в жилом квартале «Западная Европа». Возможность забронировать квартиру на месяц при продаже своей...
г. Минск, ул. Леонида Щемелёва д. 16
112 455 $  
Наличные! Кредит! Рассрочка! 1. Услуги по подбору новостроек - бесплатные!!! 2. Напрямую от застройщика, Вы покупаете по цене застройщика и заключаете договор только с застройщиком! 3. Выполняем функцию отдела продаж застройщика Планировки и цены актуальны на 10.11.2025 ООО "Этажи юнайтед" УНП: 193673318 Договор №52/1 от 05.01.24 по 03.01.2026 Лицензия на оказание риэлтерских услуг...
г. Минск, ул. Брилевская д. 54
82 034 $  
Работаем напрямую от застройщика по партнерской программе !!! Выгодное предложение!!! Звоните за более подробной информацией! Варианты оплат: - наличные средства 90% сразу, 10% после сдачи дома - выгодная рассрочка (20% первоначальный взнос) без справок и поручителей. Сделаю расчет, звоните! Бронь на месяц при продаже Вашей квартиры через АН «Этажи юнайтед». Новый формат. Дом — для бизнеса и...
г. Минск, ул. Жореса Алферова д. 11
122 858 $  
Работаем напрямую от застройщика по партнерской программе (без комиссий)!!! Цены и наличие на 10.11.2025г. Продадим Вашу квартиру для покупки этой! Стать владельцем квартиры в Minsk World можно: 1. За собственные средства 2. Кредит от 6% 3. В рассрочку без справок и поручителей (только паспорт!) Все дома в комплексе каркасно-блочные. Скоростные бесшумные лифты импортного производства. Почти...
г. Минск, ул. Леонида Щемелёва д. 18
122 527 $  
Работаем напрямую от застройщика по партнерской программе (без комиссий)!!! Выгодное предложение!!! Звоните за более подробной информацией! Стоимость актуальна на дату размещения 10.11.2025. Подробную актуальную информацию уточняйте по телефону. Успейте купить квартиру в доме «Амстердам» в жилом квартале «Западная Европа». Возможность забронировать квартиру на месяц при продаже своей квартиры...
375 ... показать телефон Спиридонов Дмитрий
г. Минск, ул. Жореса Алферова д. 9
122 527 $  
Работаем напрямую от застройщика по партнерской программе (без комиссий)!!! Выгодное предложение!!! Звоните за более подробной информацией! Стоимость актуальна на дату размещения 10.11.2025. Подробную актуальную информацию уточняйте по телефону. Успейте купить квартиру в доме «Лиссабон» в жилом квартале «Западная Европа». Возможность забронировать квартиру на месяц при продаже своей квартиры...
375 ... показать телефон Спиридонов Дмитрий
г. Минск, ул. Левина д. 1
117 074 $  
Работаю напрямую от застройщика по партнерской программе! Выгодное предложение!!! Звоните за более подробной информацией! Стоимость актуальна на дату размещения 10.11.2025. Подробную актуальную информацию уточняйте по телефону. Возможность бесплатно забронировать квартиру на месяц при продаже своей квартиры через АН «Этажи юнайтед». ДОМ СДАН! Свободная планировка, которая позволяет рационально...
г. Минск, ул. Игоря Лученка д. 2
116 141 $  
Современная квартира в сданном доме от застройщика. Кредит! Рассрочка! Грандиозный жилой комплекс с продуманной инфраструктурой: · школы, детские сады, поликлиники, музыкальная школа; · спортивная арена, теннисные и волейбольные площадки, велодорожки, скейт- и детские зоны; · кинотеатр, развлекательный центр, кафе и магазины. Дома с панорамным остеклением, дизайнерскими лобби, местами для...
Зарегистрируйтесь через ваш аккаунт в соцсетях:
или через нашу форму:
Войдите через ваш аккаунт в соцсетях:
или введите логин и пароль:
Регистрация
Еще можно просмотреть номера телефона.

Для снятия ограничения нужна всего лишь регистрация.

Так мы защищаем информацию клиентов от роботов

Выбери квартиру за 2.99 BYN

  • Мы собираем и обрабатываем для вас информацию с 10 сайтов
  • Звоним по всем объявлениям со всего интернета
  • Задаем уточняющие вопросы
  • Получаем дополнительную информацию

Все это, чтобы вам было проще сделать выбор

Стоимость к этой информации - от 2.99 рублей в месяц

Выбрать тариф
Получите больше просмотров Вашего объявления

Получите х10 показов! Закрепите объявление в ТОПе и выделите его цветом.

Стоимость услуги - 15 рублей за 30 дней или 22 рубля за 60 дней.

Как это работает.

Ваше объявление будет выделено цветом и будет закреплено в результатах поиска под спецпозициями.

Для оплаты через ЕРИП:

Перейдите в раздел "Интернет-магазины/сервисы" -> "H" -> "Hata.by" -> "Оплата по номеру заказа"

Введите один номер заказа - либо , и проведите оплату.

В течение 30 минут мы обработаем оплату в автоматическом режиме и реклама начнет работать.

Получите больше просмотров Вашего объявления

Закрепите объявление в начале первой страницы каталога. Объявление будет находится над простыми объявлениями. Стоимость услуги - 50р. за 2 недели.

Как это работает.

Объявление закрепляется под спецпозициями на первой странице каталога. Бесплатные объявления находятся внизу результатов поиска. Таким образом, посетители сайта увидят ваше объявление в первую очередь.

Для оплаты через ЕРИП:

Перейдите в раздел "Интернет-магазины/сервисы" -> "H" -> "Hata.by" -> "Оплата по номеру заказа"

Введите номер заказа - 0 и проведите оплату.

В течение 30 минут мы обработаем оплату в автоматическом режиме и реклама начнет работать.

Забронировать объект
Ваше имя:
Заезд:
Дата заезда:
Время заезда:
Количество гостей:
Отезд:
Дата отезда:
Время отезда:
Ваш вопрос владельцу объявления:
Больше не выводить для меня
Я хочу сообщить, что данное объявление более не актуально.
Удаление объявления
У Вас есть доступ к номеру +375445089780 куда мы можем прислать код для подтверждения?
Изменить объявление
У Вас есть доступ к номеру +375445089780 куда мы можем прислать код для подтверждения?
Подписаться на изменение цены объекта
Введите ваш email:
Распечатать объявление
Заказать фотографа

Профессиональные фотографии интерьера

Для того что бы отразить все преимущества вашего объекта недвижимости и привлечь больше внимания от потенциальных клиентов, вы можете заказать услуги профессионального фотографа у нас.

Готовые фотографии вы получаете на электронную почту в течении 2-х рабочих дней.

Снимки делаются на широкоугольный объектив.

Заказы принимаются только по городу Минску

Вид объекта/Цена

1-комнатная квартира 60 руб.

2-комнатная квартира 80 руб.

3-комнатная квартира 100 руб.

Другое - Договорная

Для заказа услуг фотографа и консультации свяжитесь с нашими менеджерами по тел.: +375-44-550-45-45

Отображение на карте
Сохраните поиск
Введите Ваш email:
Период рассылки:
Добавить в избранное
Добавить объект в:
Чтобы добавить объект в список, создайте список