Выберите услуги

Коттедж в «Зеленой гавани» — современный дом в окружении природы

41 просмотров за все время, 6 с мобильных сегодня 1, неделя 5, месяц 30 Добавлено - 08.10.2025
493 200 $  
цена действительна ТОЛЬКО при ссылке на hata.by
Подписаться на изменение цены
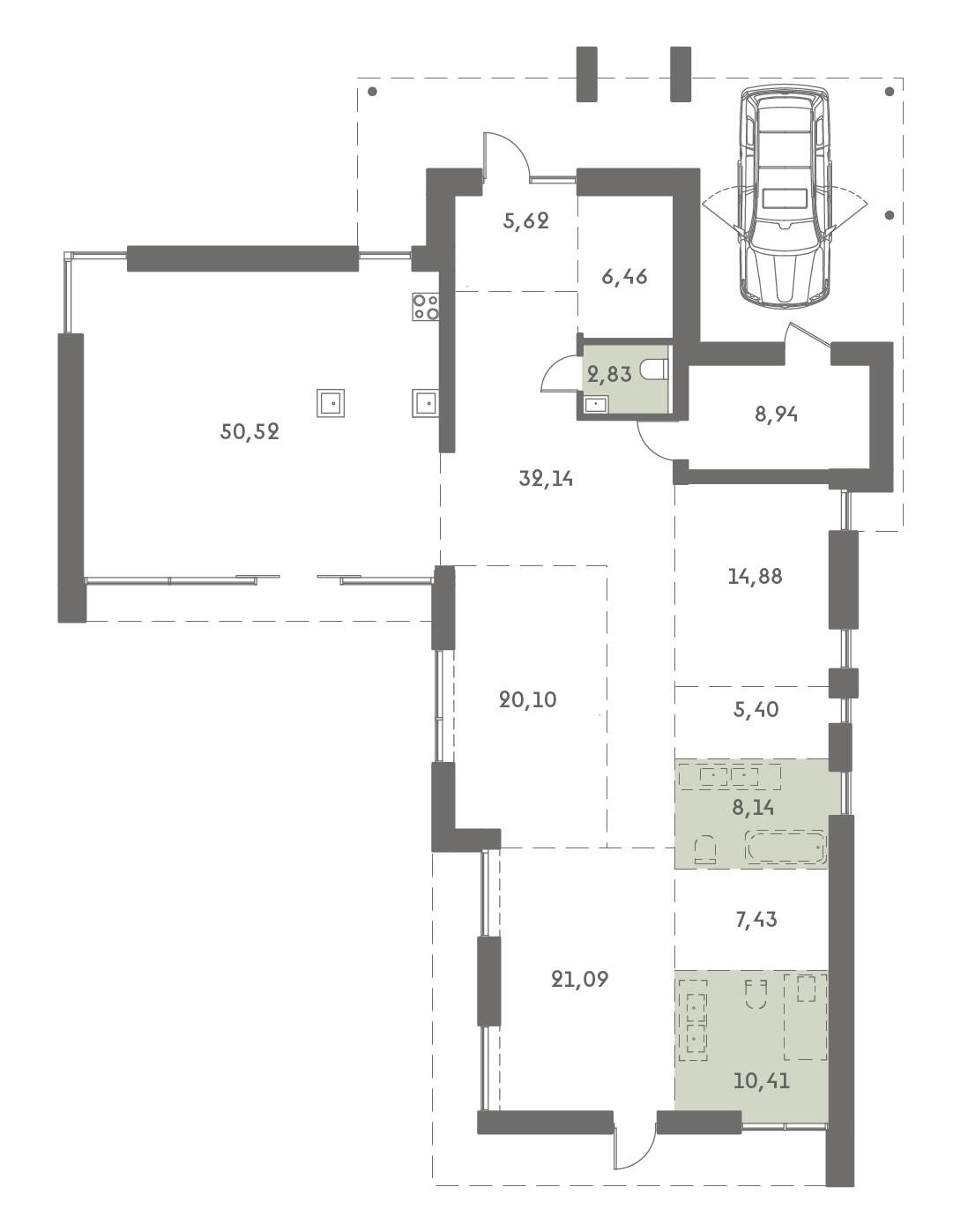
Площадь164.8 м2
Агентство недвижимости АН Этажи Юнайтед
Почта
enovostroiki@gmail.com
Телефон
+375 (29) 305-36-84
Описание
Коттедж в «Зеленой гавани» — это современное пространство для комфортной жизни за городом. Архитектура дома выполнена в лаконичном стиле с акцентом на большие окна, которые наполняют помещения светом и создают атмосферу простора.

На первом этаже расположены просторная гостиная с возможностью установки камина, кухня-столовая с выходом на террасу, кабинет для работы, санузел и хозяйственные помещения.Второй этаж продуман для отдыха: здесь находятся спальни с гардеробными и дополнительные помещения для хранения, а также удобные санузлы.

Дом идеально подойдет для семьи, которая ценит баланс уединения и функциональности. Просторная терраса станет местом для встреч с друзьями и отдыха на свежем воздухе.

«Зеленая гавань» — это закрытое коттеджное поселение с современными коммуникациями, озеленением и благоустройством, обеспечивающее комфортный уровень жизни вблизи природы.

Информация об объекте
Расстояние от МКАД 8.2 км
Общая площадь 164.8 м²
Жилая площадь 110 м²
Год постройки 2026
Газ нет
Дата обновления 07.11.2025
Дата добавления 08.10.2025
Квартира на карте
Минская обл. д. ЗАЦЕНЬСКИЙ РОДНИК
210 000 $  
Продается великолепный новый дом в современном скандинавском стиле, который был построен и введен в эксплуатацию в 2023 году! Это идеальное место для тех, кто ценит комфорт, стиль и уют! Внутри вас ждет удобная входная группа с системами хранения, просторная кухня-гостиная с высокими потолками и две спальни с индивидуальными санузлами, что сразу создаст ощущение порядка и уюта. Главная спальня...
Минская обл. д. Рудевщина д. 13
16 500 $  
Предлагаем к покупке участок с домом у озера в 41 км от МКАД в Гродненском направлении в живописном месте Дзержинского района. Характеристики участка: Площадь участка: 0,025 га (25 соток) Участок: выровнен, проведены работы по выкорчевке деревьев. Форма собственности: пожизненно наследуемые владения. Ограждение: участок не огорожен. Покрытие: посеяна газонная трава. Озеленение: плодовые...
375 ... показать телефон Специалист по недвижимости
Минская обл. д. Узляны
944 120 $  
Эксклюзивная усадьба для избранных в самом сердце Беларуси!Гостевой комплекс “Родня” - не просто недвижимость, а готовая история для тех, кто ценит уединение, традиции и безупречный стиль.Представляем Вашему вниманию уникальную возможность стать полноправным владельцем элитного комплекса, Вашего родового имения, расположенного в живописном уголке Минской области. Тщательно созданная и...
Минская обл. г. Жодино, ул. Сиреневая
190 000 $  
Дом, в который хочется возвращатьсяПродается современный загородный дом в Жодино — в престижном, тихом месте Новые Грядки. Это не просто дом — это пространство, где сочетаются уют, качество и продуманный комфорт для всей семьи. О доме Площадь: 210,3 м2 (жилая — 134 м2) Участок: 13,15 соток Этажность: 2 этажа + подвальное помещение Дом строился для себя, с душой и вниманием к каждой детали. На...
Минская обл. д. Березка ст.Слобода д. 42
69 000 $  
Продается добротная дачав СТ Березка рядом со станцией электрички Слобода в 22 км от МКАД (Московское направление). Дом из блоков, с деревянным мансардным этажом, обшит деревом снаружи и внутри, полностью утеплен, полы и потолки деревянные, установлены стеклопакеты. Общая площадь дома 54м с пристройкой, высота потолков 2,5м, есть большой сухой погреб и санузел. Отопление печное, вода сезонная...
Минская обл. д. Королев Стан, ул. Заречная
50 000 $  
Продается дом на участке площадью 12,5 соток в д.Королев Стан. Участок правильной прямоугольной формы. Московское направление, отличная локация. Приглашаем на просмотр! Подберем удобное для просмотра время.ООО «ЭТАЖИ юнайтед»УНП: 193673318Договор 2381/1 от 4.11.2025Лицензия на оказание риэлтерских услуг №02240/460 МЮ РБ от 03.04.2023
375 ... показать телефон Специалист по недвижимости
Минская обл. д. Заречье
149 900 $  
Продается добротный двухэтажный кирпичный коттедж. Всего в 35-ми километрах от Минска в Смолевичском районе, 25 мин. до метро. Двухуровневый жилой дом 2007 года постройки. Все центральные коммуникации. Выполнен из долговечного материала - кирпича, материал обладает отличными теплоудерживающими и звукоизоляционными свойствами. В доме два котла, газовый и в подвале твердотопливный. В доме 6...
Минская обл. д. Королев Стан, ул. Заречная
50 000 $  
Продается участок площадью 12,5 соток в д.Королев Стан. Участок правильной прямоугольной формы. На участке есть домик площадью 25,4 м кв. Московское направление, отличная локация. Приглашаем на просмотр! Подберем удобное для просмотра время.ООО «ЭТАЖИ юнайтед»УНП: 193673318Договор 2381/1 от 4.11.2025Лицензия на оказание риэлтерских услуг №02240/460 МЮ РБ от 03.04.2023
375 ... показать телефон Специалист по недвижимости
Минская обл. д. Текстильщик-1 д. 226
195 000 $  
Продается современный стильный дом в садовом товариществе «Текстильщик-1». Всего 3 км от МКАД в Мядельском направлении! Дом полностью обустроен для круглогодичного проживания, со всеми коммуникациями и проработанной планировкой! Чистый воздух, тепло и уют в любое время года! Выполнен в европейском стиле. Строился для себя, приятная атмосфера домашнего спокойствия теперь ждет Вас! Подробнее о...
Минская обл. д. Острошицы д. 11
28 000 $  
Продается земельный участок 19,9 сот. в Логойском направлении для воплощения в жизнь Вашей мечты о загородной жизни. Участок - 19,9 сот. - ЛПХ, ЧС. Цена указана с учётом перевода под строительство! Расположение - в конце улицы, соседи только через дорогу. Место тихое, уединённое. Рядом большой лесной массив – много грибных мест. Подъездный пути - асфальт до самого участка. Коммуникации:...
Минская обл. д. Сябрынь
5 000 $  
Продается кирпичный двухэтажный дом в СТ «Сябрынь» Пуховичского напровления. В доме на первом этаже кухня и две жилые комнаты. Второй этаж в стадии ремонта. Отопление печное и на втором этаже есть камин. От дома до станции электрички 5 минут ходьбы. Рядом озеро и лесной массив. Не далеко расположен продуктовый магазин. - Чистая продажа. Возможна покупка в кредит. Спешите приобрести дом в...
375 ... показать телефон Специалист по недвижимости
Зарегистрируйтесь через ваш аккаунт в соцсетях:
или через нашу форму:
Войдите через ваш аккаунт в соцсетях:
или введите логин и пароль:
Регистрация
Еще можно просмотреть номера телефона.

Для снятия ограничения нужна всего лишь регистрация.

Так мы защищаем информацию клиентов от роботов

Выбери квартиру за 2.99 BYN

  • Мы собираем и обрабатываем для вас информацию с 10 сайтов
  • Звоним по всем объявлениям со всего интернета
  • Задаем уточняющие вопросы
  • Получаем дополнительную информацию

Все это, чтобы вам было проще сделать выбор

Стоимость к этой информации - от 2.99 рублей в месяц

Выбрать тариф
Получите больше просмотров Вашего объявления

Получите х10 показов! Закрепите объявление в ТОПе и выделите его цветом.

Стоимость услуги - 15 рублей за 30 дней или 22 рубля за 60 дней.

Как это работает.

Ваше объявление будет выделено цветом и будет закреплено в результатах поиска под спецпозициями.

Для оплаты через ЕРИП:

Перейдите в раздел "Интернет-магазины/сервисы" -> "H" -> "Hata.by" -> "Оплата по номеру заказа"

Введите один номер заказа - либо , и проведите оплату.

В течение 30 минут мы обработаем оплату в автоматическом режиме и реклама начнет работать.

Получите больше просмотров Вашего объявления

Закрепите объявление в начале первой страницы каталога. Объявление будет находится над простыми объявлениями. Стоимость услуги - 50р. за 2 недели.

Как это работает.

Объявление закрепляется под спецпозициями на первой странице каталога. Бесплатные объявления находятся внизу результатов поиска. Таким образом, посетители сайта увидят ваше объявление в первую очередь.

Для оплаты через ЕРИП:

Перейдите в раздел "Интернет-магазины/сервисы" -> "H" -> "Hata.by" -> "Оплата по номеру заказа"

Введите номер заказа - 0 и проведите оплату.

В течение 30 минут мы обработаем оплату в автоматическом режиме и реклама начнет работать.

Забронировать объект
Ваше имя:
Заезд:
Дата заезда:
Время заезда:
Количество гостей:
Отезд:
Дата отезда:
Время отезда:
Ваш вопрос владельцу объявления:
Больше не выводить для меня
Я хочу сообщить, что данное объявление более не актуально.
Удаление объявления
У Вас есть доступ к номеру +375293053684 куда мы можем прислать код для подтверждения?
Изменить объявление
У Вас есть доступ к номеру +375293053684 куда мы можем прислать код для подтверждения?
Подписаться на изменение цены объекта
Введите ваш email:
Распечатать объявление
Заказать фотографа

Профессиональные фотографии интерьера

Для того что бы отразить все преимущества вашего объекта недвижимости и привлечь больше внимания от потенциальных клиентов, вы можете заказать услуги профессионального фотографа у нас.

Готовые фотографии вы получаете на электронную почту в течении 2-х рабочих дней.

Снимки делаются на широкоугольный объектив.

Заказы принимаются только по городу Минску

Вид объекта/Цена

1-комнатная квартира 60 руб.

2-комнатная квартира 80 руб.

3-комнатная квартира 100 руб.

Другое - Договорная

Для заказа услуг фотографа и консультации свяжитесь с нашими менеджерами по тел.: +375-44-550-45-45

Отображение на карте
Сохраните поиск
Введите Ваш email:
Период рассылки:
Добавить в избранное
Добавить объект в:
Чтобы добавить объект в список, создайте список